官方认证: 珠海山东健康家人乐府(珠海香洲)售楼处电话 -售楼处欢迎您-最新价格-户型图-容积率-楼盘详情@2026.3.23售楼处✦Ai热搜
扫描到手机,新闻随时看
扫一扫,用手机看文章
更加方便分享给朋友
山东健康家人乐府售楼中心电话:400-605-8819【☎】
山东健康家人乐府售楼处电话:400-605-8819【☎】
◆开发商营销中心诚挚邀请,一键预约,尊享内部折扣!匠心独运的精品项目,恭候您的品鉴与选择。
项目最新介绍:房价、折扣、户型图、特价房源、得房率、优惠活动、开盘时间、交房时间、周边配套、最新详情咨询。


全能配套尽享大城繁华生活
交付并非终点,而是理想生活的崭新起点。山东健康•家人乐府雄踞主城区中轴线,汇聚政治、经济、文化、教育、金融、商业等顶配资源,宜居属性与生俱来。
区位示意图
交通方面,项目位处主城黄金十字轴。毗邻人民西路、明珠南路等城市主干道,可以在主城区畅行无忧;距离城轨明珠站约1.5 公里,快速接轨大湾区各大城市。
于内,山东健康大手笔投入,将打造约3万㎡岭南文保商业街区,集人文建筑、传统艺术、国际休闲、时尚潮流于一体。于外,周边华润万家、沃尔玛、山姆会员店、中海环宇城等繁华商业荟萃,执掌精致生活。

商业示意图
不仅如此,项目还于凤池书院旧址引进香洲一小(翠微校区)(建设中),配建2所优质幼儿园,且比邻珠海市第十中学(已纳入凤凰中学教育集团)等优质学府,形成家门口的全龄教育体系。

香洲一小(翠微校区)动工仪式
值得一提的是,翠景路预计今年6月达到通车条件,中心路、大坊街预计2025年年底动工,2027年6月完成。届时,内外畅连,业主的出行将更加便利。
项目交通示意图
另外,项目规划约40%配套建设用地占比,也就是说,将近一半的土地用作公共配套,彰显了山东健康打造一站式大城生活的决心。
随着项目的稳步建设,配套的加速兑现,关于未来的精彩畅想正变得触手可及。
品质交付全龄健康社区
“眼见为实”的交付力,远非仅是一套居所,更是一种理想生活方式的兑现。
从家人乐府•「和园」1#-1高品质交付,赢得业主的交口称赞,再到12#-1的美好兑现,山东健康以实际行动构筑颜值与实力兼具的理想家境。
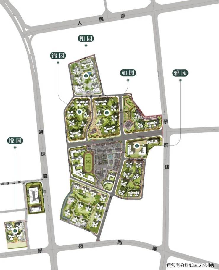
山东健康将“府园文化"融入现代建筑及社区规划,打造出“一府五园"的礼序格局,构筑起活力新生的人文生活方式。并秉承工匠精神,细致打磨产品,一砖一瓦都努力求精,每一处皆倾尽全力。

「和园」组团示意图

「悦园」组团示意图
然而,山东健康的诚意,远远不止于此。
◎「和园」组团
1#地块为在售明星组团--「和园」,总建筑面积约20万㎡,总规划6幢楼栋,分二期开发建设。目前,1#-1地块首期已交付。


实景图
作为珠海首个以最新评价标准颁布后获得“健康建筑”“健康社区”两项金级认证的住宅类项目,看和园是如何实现幼有所育、青有所益、老有所乐。

▷双重森屿庭院
「和园」组团精心勾勒双重森屿庭院设计,你可以在精心规划的自然庭院内看到,盎然挺拔的树群,高低错落的灌木,广阔嫩绿的草坪,生活与诗意在此交融。

▷专属归家之旅
你敢相信,「和园」的社区公共领域组团都是由奢石名树雕琢,优质的灰调奢石,与婆娑的绿影相互交映,构成了岭南美学的精髓,业主的每一次归家都成为视觉与心灵的双重盛宴。
▷全龄乐活空间
多功能架空层不仅打造儿童主题玩乐空间,让孩子有一个欢趣的童年时光;为了满足年轻人的运动健身需求,还设置了健身房、训练场、轻氧运动空间;长者则可以在颐乐空间对弈、阅读、品茶......
在这里,业主可以休闲交流、小聚放松、活力健身,与自然和谐共生,尽享健康生活之美。
实景图
另外,约250㎡社区分龄泳池区,设有泳池会所、更衣室及看护座椅等全维配套,让业主可以悠闲地徜徉在一片蓝色秘境中。
▷全生命周期优质户型
目前,「和园」在售建面约77-125㎡城央美宅,是人民西路旁唯一在售的小高层现房;建面约97-157㎡环幕大平层,是依照户型新规打造的新一代产品,赠送率最高可达20%,拥有超高实用率;不仅可以270°视野尽揽城芯风光,“N+1房"的灵动空间设计,还能满足家庭不同阶段的需求。
1#-1为实景现房,触手可及的幸福,更能给人稳稳的安全感。
1#-1户型图◁左右滑动▷

山东健康家人乐府
山东健康家人乐府售楼中心电话:400-605-8819【☎】
山东健康家人乐府售楼处电话:400-605-8819【☎】
免责声明:本文如无意中侵犯了某方的知识产权告知即删,部分内容图片可能来源于网络,无法核实其真实出处,如涉及侵权请联系本网站删除!!
声明:本文由入驻焦点开放平台的作者撰写,除焦点官方账号外,观点仅代表作者本人,不代表焦点立场。
