◕‿-。热搜优选:湾啟紫荆府售楼处电话(湾啟紫荆府销售中心) -湾啟紫荆府(热盘)-最新价格-户型图-容积率@2025.10.22
扫描到手机,新闻随时看
扫一扫,用手机看文章
更加方便分享给朋友
湾啟紫荆府,位于南山前海深港合作区妈湾15单元02街坊,港城路与航海路交汇处西南侧,前海划分为3个片区桂湾、前湾和妈湾,桂湾是金融区,前湾类似政务区,妈湾是比较纯粹的居住区。
◎位置:听海大道与妈湾一路交汇处西南角
◎容积率:约4.47
◎层数:36-37层
◎梯户比:4梯5户
◎车位数量:595个
◎套数:共485套
◎户型:建面约96/111/122/142㎡3-4房
项目临近前湾公园,虽非一线临河或临海,但前湾公园的建成将形成一条延续性的生态景观长廊,为居民提供浪漫的休闲散步之地。
交通优势:距5号线妈湾站约550m,毗邻听海大道,可短时间通达南山、福田,宝安:规划2条城际轨道+1个海空口岸,快速对接大湾区生活圈。
教育资源:项目配套18班幼儿园(建设中),毗邻九年一贯制学校(规划中)。
商业配套:自贸时代中心商业(建设中),6大商业中心。
生态配套:立足前海核心区最后2.9平方公里临海净地、背衔大、小南山,面环大海,社区无缝连接立体连廊,步行即可通山达海。
『湾啟紫荆府』项目为带精装修交付,居家必备的家具、家电、设施都是交付即拥有,营销中心设置有111㎡-121㎡-142㎡三个展示样板房,具体精装修交付标准及样板房创意展示空间可参考下图:
户型:新规设计、高使用率,规划主力为3-4房产品。
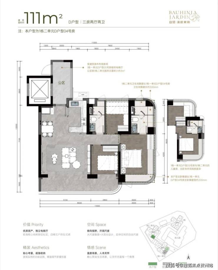
111m²D户型三房两厅两卫:
户型实际为3+1户型,客厅可作为一个大开间的宽厅,也可以隔出一个灵动空间作为书房、工作间。主卧空间南北通透,飘窗也得到了进一步的有效利用。同样是贯通式阳台联通客厅、卧室,阳台的宽度要比96㎡户型大许多,空间尺度提升明显,且有东南、西南两种朝向。
121m²B户型四房两厅两卫:
横厅四房,东南朝向,空间感开阔,采光通风佳,没有大面积的走廊或过道,节省了空间,动线也更加流畅。主卧拥有更加开阔的景观面,大面积的弧形无柱飘窗,将外部的自然光线引入室内,空间更加明亮宽敞。
122m²C户型四房两厅两卫:
双龙抱珠户型,书房分布于客厅另一侧,且难得是双面采光+270°景观视野。主卧南北通透,且拥有十分开阔的景观面。贯通式阳台联通客厅以及靠近动区的次卧,实现长观景阳台。
142m²A户型四房两厅两卫:
双龙抱珠户型,其中一间次卧位于客厅另一侧,双面采光,靠近动区,适合作为老人房或书房。客餐厅南北通透,兼顾横厅与竖厅优点,空间感足,利用率高,动静分离、干湿分离设计合理。贯通式超长宽境阳台,采光舒适度高。
交通配套
周边共规划6条地铁线、2条城际轨道、1条妈湾跨海隧道及1个海空口岸。距离5号线妈湾站约300m,听海大道贯穿前海,可短时间通达南山、福田、宝安,快速链接大湾区生活圈
教育配套
项目周边拥有15所幼儿园、4所义务教育学校,还有荔湾小学和深大附中等学校都在周边。此外项目靠近多所国际学校,拥有3000到5000个名额,包括荟同国际学校、礼德国际学校、英国国王学校(深圳分校)以及深圳哈罗国际学校。临近小区南侧有一块九年制教育用地,但目前未招标。入住早期可能要到妈湾南二外学校或者前湾南二外学校上学。
商业配套
领玺一期项目自带16.7万平商业,加上不远处颐湾府底商,基本可以满足日常生活。印里首期商业(约3万平),去年9月正式开业,会有愈欣书店、SEESAW咖啡、罗森便利店、丘大叔柠檬茶等多个品牌入驻。
休闲配套
项目旁边即是河边公园,周边一个地铁站距离有月亮湾花园、青青世界、大南山公园等,也可快速抵达宝中滨海公园等。
项目效果图
公积金首套:2.6% 二套:3.075%
免责声明:本资料文字、数据和图片仅供参考、不作为要约或承诺,本文如无意中侵犯了某方的知识产权告知即删,部分内容图片可能来源于网络,无法核实其真实出处,如涉及侵权请联系删除!
声明:本文由入驻焦点开放平台的作者撰写,除焦点官方账号外,观点仅代表作者本人,不代表焦点立场。
