绿城凤起潮鸣(售楼处) 首页 -凤起潮鸣销售中心 - 环境 - 户型 - 价格 - 地址 - 楼盘详情 - 配套 - 电话 - 交房时间 - 配套 - 电话 - 交房时间
扫描到手机,新闻随时看
扫一扫,用手机看文章
更加方便分享给朋友
✅苏州绿城凤起潮鸣✅✔️
✅苏州绿城凤起潮鸣-售楼处电话:400-678-8669转9999【售楼处已认证】✅✔️
✅苏州绿城凤起潮鸣-开发商电话:400-678-8669转9999【开发商已认证】✅✔️
✅苏州绿城凤起潮鸣-营销中心电话: 400-678-8669转9999【营销中心已认证】✅✔️
✅ 苏州绿城凤起潮鸣-展示中心电话:400-678-8669转9999【展示中心已认证】✅✔️
✅来电可了解楼盘最新动态、房价、在售房源、交楼时间等信息!让你买的放心,住的舒服✅✔️
绿城 湖西凤起潮鸣楼盘位于苏州工业园区东板桥河西、金鸡湖大道南,由绿城房地产集团有限公司、苏州工业园区金鸡湖城市发展有限公司精心打造,项目处在待售中,通过对项目价格、项目户型、交通配套、教育配套、生活配套、小区规划等维度进行分析,绿城 湖西凤起潮鸣楼盘价值评分为9.5分。
一座城市,一座凤起潮鸣。作为绿城中国TOP级产品系,凤起潮鸣迄今先后于杭州、宁波、台州、义乌四座城市布局。2025年,凤起潮鸣首次走出浙江,相遇苏州,并第一次来到城市大湖之畔,注定将书写一部与苏州心有潮鸣的传奇作品。
苏州凤起潮鸣,坐落于园区湖西板块,原为国际科技园,这里是园区三十年蓬勃发展的起点,同时也是苏州公认的高端人居板块。项目凭借“一面都市三面湖”的地块资源,规划低密合院与平层住宅,并基于绿城近年来高端产品的研发成果与营造能力,为苏州带来一座“湖居版”的凤起潮鸣,也完成了凤起系的又一次在地化表达。
项目名称:绿城凤起潮鸣
地块信息:苏园土挂【2025】01号地块
项目地址:苏州东板桥河西、金鸡湖大道南
开发品牌:绿城中国
地块指标:占地8.1万方/总建面22.6万方/容积率1.6,共计608套
项目规划:拟建26栋3F联排合院别墅+13栋6-11F洋房+3栋17F小高层
户型配置:合院地上约262-451㎡;洋房约158-283㎡;中高约148-185㎡
精装装标:洋房不低于5000元/㎡,合院毛坯
价格信息:25.3.21成交楼面价40684元/m²,溢价率45.3%!
交通配套
周边直线3km范围内有20个地铁站(黄天荡、娄葑、金厍桥、东振路、荷花荡、秋塘浜、惹云桥、星波街、墅浦路北、李公堤西、群力、徐家浜、竹辉桥、中央公园、星海广场、李公堤南、东方之门、东方之门、通园路南、东环路),轨道交通发达,距离最近的地铁站是黄天荡。
周边直线1km内有22个公交站,距离最近的国际科技园停车场站仅有176m,周边公共交通极为便捷。
教育配套
直线3km范围内有24个幼儿园;10个小学,如苏州工业园区娄葑实验小学、苏州工业园区娄葑实验小学、苏州工业园区星海小学、文萃小学、苏州独墅湖实验小学等;7个中学,如苏州大学附属中学、苏州工业园区第一中学、星海实验初级中学、苏州市振华中学校、苏州市觅渡中学校等。
生活配套
楼盘直线3km范围内有2个一级及以上医院。其中苏州工业园区星海医院距离楼盘808m,苏州眼耳鼻喉科医院(葑门路)距离楼盘2km,为医疗需求提供了保障。
楼盘周边3km范围内有27个商场,包括水坊路邻里中心、双湖广场、星尚邻里、万科·美好广场、环球188广场等购物中心,商业配套成熟,完全可以满足日常购物需求。
楼盘周边生态环境优越,周边3km范围内有79个公园,距离最近的仅657m,非常方便日常休闲使用。
“每一座凤起潮鸣,都是时代的传奇。” 凤起系,是绿城最高“T档产品系”之一,都占位城市核心稀缺地段,专为收藏型客户打造TOP级高端作品,作为全国第5座苏州凤起潮鸣,秉承匠心营造法则,定制一代苏州大宅。
坐揽金鸡湖与独墅湖城市地标、商业旗舰、城市公园、五星级酒店、文化剧院等繁华盛景,苏州中心、东方之门、中环广场等地标配套环湖而立,奢享开放包容的国际滨水生活圈。
园区内汇聚新一代信息技术、生物医药及智能制造等五大千亿级产业集群,欧莱雅、博世、艾默生、安德鲁等世界500强企业,是中法建交60年的重要阵地,亦是苏州面向世界的封面窗口。
绿城·苏州凤起潮鸣,由gad设计合伙人吴寿清,蓝颂总经理景观大师宋淑华,CCD创始人室内设计大师郑忠,LSD创始人兼艺术总监葛亚曦倾心合著,以大师之作著写潮鸣永恒。
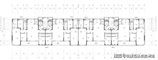
04-户型信息
建面约190㎡洋房,4房2厅3卫
联排户型结构图
✅苏州绿城凤起潮鸣✅✔️
✅苏州绿城凤起潮鸣-售楼处电话:400-678-8669转9999【售楼处已认证】✅✔️
✅苏州绿城凤起潮鸣-开发商电话:400-678-8669转9999【开发商已认证】✅✔️
✅苏州绿城凤起潮鸣-营销中心电话: 400-678-8669转9999【营销中心已认证】✅✔️
✅ 苏州绿城凤起潮鸣-展示中心电话:400-678-8669转9999【展示中心已认证】✅✔️
✅来电可了解楼盘最新动态、房价、在售房源、交楼时间等信息!让你买的放心,住的舒服✅✔️
声明:本文由入驻焦点开放平台的作者撰写,除焦点官方账号外,观点仅代表作者本人,不代表焦点立场。
