锦湖中心项目信息
扫描到手机,新闻随时看
扫一扫,用手机看文章
更加方便分享给朋友
项目概述
锦湖中心为公寓原底商部分,总建筑面积1.7万平方米。项目自2016年开始翻新改造,2017年9月竣工入市,项目改造后以更具创新的经营模式打造高端服务式办公品牌,成为金隅集团旗下排名前列“精品服务式办公”项目。




基本信息
锦湖中心地处东三环姚家园路口,毗邻风景宜人的团结湖公园,紧邻地铁6号线、10号线呼家楼地铁站;10号线团结湖站。项目于2017年9月竣工入市,首层至三层作为服务式办公主要经营区域(配备共享会议室、水吧洽谈区、共享健身房、淋浴间),搭配部分商业(便利店、咖啡、健身),根据建筑结构及人流动线将租赁面积细化拆分,地下一层引入知名联合办公品牌进行专业运营。
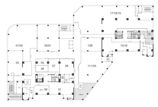
主要户型
锦湖中心注重空间的划分,部分户型利用顶部天井将自然光照引入室内。
户型分布如下:

项目配套
项目周边医疗配套:北京臻齿口腔门诊部、北京京师中医医院、北京妇产医院等
项目周边教育配套:呼家楼中心小学、北京市第八十中学、白家庄小学等
楼盘简介
项目地理位置优越,交通便捷通达,南接CBD商务区、北望燕莎、东临三里屯使馆区。项目设计秉承现代创意理念,为入住企业提供现代时尚、阳光绿色、配套完备的办公环境,满足客户办公会议、商务洽谈、休闲娱乐等全方位需求,让办公变得更加舒适、惬意。




地图交通
项目地处东三环姚家园路口,毗邻风景宜人的团结湖公园,紧邻地铁6号线、10号线呼家楼地铁站;10号线团结湖站。
声明:本文由入驻焦点开放平台的作者撰写,除焦点官方账号外,观点仅代表作者本人,不代表焦点立场。
