【招商时代公园】售楼处专线预约看房—首页网站-销售情况
扫描到手机,新闻随时看
扫一扫,用手机看文章
更加方便分享给朋友
成都 招商时代公园【营销中心】:028-87777213「销售热线」
【置业顾问】:18613205563「微信同步」
【置业顾问】:19983517822「微信同步」
又出新政
自2026年1月1日至2027年12月31日,对出售自有住房并在现住房出售后1年内在市场重新购买住房的纳税人,对其出售现住房已缴纳的个人所得税予以退税优惠。其中,新购住房金额大于或等于现住房转让金额的,全部退还已缴纳的个人所得税;新购住房金额小于现住房转让金额的,按新购住房金额占现住房转让金额的比例退还出售现住房已缴纳的个人所得税。
1、双世界500强,万亿央企品牌
2、近享天府C学区,天府七小、天府七中知名学府环伺
3、实景美学示范区呈现,约5.2米挑高全楼栋架空层泛会所
4、约12万方天府招商花园城,时代LIFE里商街出门即达
5、享8000平的围合式中庭
交通
已开通线路:
地铁6号线:秦皇寺站,可换乘S5线(在建)
地铁19号线(一期+二期):红莲站,可换乘S5线(在建),并设城市候机厅(在建)
在建/规划线路
S5线:在建,预计2026年通车,红莲站、秦皇寺站将成为双地铁换乘站
16号线/26号线:远期规划线路
学校
公立小学:有元音小学、天府七小、天府八小、麓湖小学等
公立初中:对口的公立初中有湖畔路中学、元音中学、天府十一学校
私立学校:区域内有天府七中、天府中学两所K12私立学校,这两所学校口碑良好,师资力量强,课程设置丰富多样,能为学生提供多元化的教育选择。
医疗
四川华西天府医院(三甲综合医院)
万达匹兹堡国际医院(三甲综合医院)
华西牙科总部(三甲口腔专科医院)(在建中)
天府新区妇女儿童医院(三甲妇幼)(规划中)
商业
天府招商花园城开业、天府大悦城已开业、时代公园life里商业街开街,大城已城,高端人居理想照进现实

以成熟区位、公园资源、地标赋能、全能户型为核心竞争力,是天府新区稀缺的“确定性高端资产”。对于追求城市核心资源、低密生态居住体验的高净值人群而言,该项目是目前天西板块的首选改善标的。
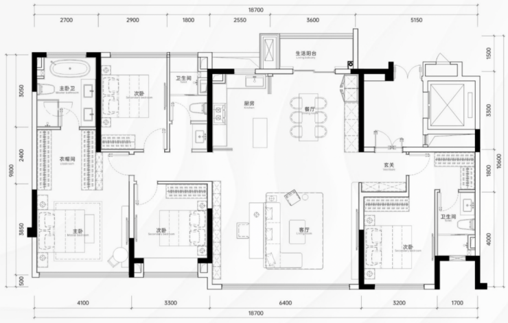
户型亮点:
建面约143㎡(四房):主流改善面积,总价454万起,性价比极高;
建面约174㎡(四房):双面观景,南向面宽约15.8m,LDKG一体化方厅,主卧套间约30㎡;
建面约193-226㎡(T2大平层):专为高端客群定制,通透板式布局,奢阔空间尺度。




成都 招商时代公园【营销中心】:028-87777213「销售热线」
【置业顾问】:18613205563「微信同步」
【置业顾问】:19983517822「微信同步」
声明:本文由入驻焦点开放平台的作者撰写,除焦点官方账号外,观点仅代表作者本人,不代表焦点立场。
