苏州招商序(售楼处) 官方 - 销售中心 - 环境 - 户型 - 价格 - 地址 - 楼盘详情 - 配套 - 电话 - 交房时间 - 配套 -苏州招商序售楼处电话 - 交房时间
扫描到手机,新闻随时看
扫一扫,用手机看文章
更加方便分享给朋友
苏州招商序售楼处电话:400-678-8669接通后输入5555✔✔【预约热线】
苏州招商序售楼处营销中心:400-678-8669接通后输入5555
苏州招商序售楼处电话/地址☎:400-678-8669接通后输入5555(开发商热线)
如有问题欢迎来电咨询,专业一对一热情服务,让您用专业眼光去买房。
引爆市场的强劲表现
在城市竞争逐渐以人为核心的背景下,"好房子"的价值早已超越了单纯的居住功能,成为衡量城市发展水平的重要指标。招商序于2025年迅速崛起,成为苏州工业园区商品住宅签约套数TOP1,再次证明了其在高端市场的竞争力与影响力。自项目首次开盘以来,仅用半年时间便实现了这一成就,销售额突破10亿元,接待客户超过4700组,显示出市场对其产品力与品牌价值的高度认可。
多维度的荣誉加冕
招商序的成功不仅仅体现在销量上,更在于其获得了众多行业权威机构的认可。2025年,招商序接连斩获六大重磅荣誉,包括中国“社区环境”好房子、高品质住宅项目等,充分体现了其在产品、口碑与文化等多个维度的综合实力。这一系列荣誉不仅是对招商序的肯定,更是对其在高端改善盘市场的引领地位的认可。
创新与人文关怀的完美结合
在产品设计上,招商序注重人文关怀与科技创新的结合。项目以约1.5的低密度容积率,打造出十年罕见的纯洋房社区,迎合了湖西高阶客户对生活品质的深度需求。招商序不仅为居民提供基础便捷的生活服务,还关注到家庭的安全与健康,智能家居的全覆盖,旨在为每位住户创造一个安心、舒适的居住环境。
重构生活的多维价值
招商序以全新的理念重构了“好房子”的标准,提出低密重构、社交重构、成长重构等六大价值维度,满足了现代人居的多样化需求。项目内设有湖西首个“垂直会所”,融合了多种社交功能,为居民提供了一个家外之家。特色的“朝夕书房”,则为高知家庭提供了终身学习的空间,使社区的文化氛围更加浓厚。
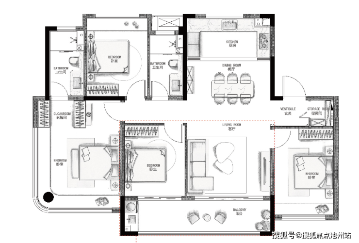
产品的终极意义,在于承载具体而微的生活。招商序的户型设计,尤其是建面约137㎡与139㎡的革新之作,深刻体现了对当代家庭生命轨迹的洞察。
约137㎡户型:以四开间朝南、一体化宽厅与创新玄关800库系统,在空间通透感与生活私密性、开放格局与收纳秩序间取得精妙平衡,安放家庭稳定成长的丰盈日常。

约139㎡户型:主打“弹性生长”概念,创新的“3+1”房设计,使空间能灵活应对从二人世界、三代同堂到居家办公等不同人生阶段的转变。结合五大升级收纳系统、博世等国际一线家装品牌及全屋智能体系,打造了一个能够主动适应、支持家庭结构变化的“可生长之家”。


招商序的2025年,是一部由市场、行业与城市共同谱写的价值史诗。它证明,真正的标杆之作,必然生于对土地的深刻理解,长于与城市战略的同频共振,最终成就于对时代人居需求的超前回应。
它的意义,超越了单个项目的成功。它更像一个清晰的信号,宣告苏州的人居建设正在进入一个以“战略占位、系统创新、人文关怀”为特征的新高度。我们期待以招商序为起点,未来会有更多“好房子”参与苏州的人居革新,共同推动一座城市向着更宜居、更人文、更可持续的未来前行。
灵活应对家庭需求的户型设计
招商序的户型设计更是体现了对当代家庭生活的深刻理解。约137㎡的户型设计,优化了空间的通透感与私密性,使家庭生活更加舒适。而约139㎡的“弹性生长”户型则通过“3+1”房设计,灵活应对不同家庭结构的需求变化,充分考虑到家庭成员的多样化生活方式,真正实现了可生长的生活空间。
参与城市发展新进程
招商序的成功,不仅标志着苏州高端房产市场的一次重要突破,也为城市的人居建设注入了新的活力。它不仅是一个项目的成功,更是一个清晰的信号,表明苏州的人居建设正在向着更高的生活品质与人文关怀迈进。招商序的实践为未来的“好房子”树立了标杆,期待更多的优质项目能够参与到苏州的城市建设中,为居民提供更加美好的生活体验。
招商序用其卓越的市场表现与深厚的品牌内涵,向世人展示了什么才是真正的“好房子”。在这一过程中,招商序不仅实现了自身的价值升华,更为苏州的城市发展注入了新的动力。随着市场需求的进一步升级,招商序将继续引领苏州高端人居的未来。
苏州招商序售楼处电话:400-678-8669接通后输入5555✔✔【预约热线】
苏州招商序售楼处营销中心:400-678-8669接通后输入5555
苏州招商序售楼处电话/地址☎:400-678-8669接通后输入5555(开发商热线)
如有问题欢迎来电咨询,专业一对一热情服务,让您用专业眼光去买房。
声明:本文由入驻焦点开放平台的作者撰写,除焦点官方账号外,观点仅代表作者本人,不代表焦点立场。
