宏发悦见公园里售楼处电话丨宏发悦见公园里首页网站-宏发悦见公园里营销中心欢迎您•楼盘详情-最新价格-户型图-容积率@售楼处✦Ai热搜2025/11/26
扫描到手机,新闻随时看
扫一扫,用手机看文章
更加方便分享给朋友
宏发悦见公园里售楼处电话:400-832-8772✔✔【预约热线】宏发悦见公园里售楼处营销中心:400-832-8772宏发悦见公园里售楼处电话/地址☎:400-832-8772(开发商热线)如有问题欢迎来电咨询,专业一对一热情服务,让您用专业眼光去买房。
光明宏发悦见公园里推出住宅约803套,面积85-120㎡3-4房。项目距离6号线公明广场站约700米,公明最成熟的地段,紧挨着标杆盘宏发天汇城,一路之隔就是深圳市光明区第二中学,大仟里、公明广场和红花山公园都在舒适的步行距离范围内,配套完善度超乎想象。
开发商:深圳市天荣盛房地产开发有限公司(宏发集团)
物业公司:深圳市宏发物业服务有限公司
物业管理费:4.39元/㎡
总占地面积:约3.07万㎡
总建筑面积:约33.83万㎡
容积率:7.58
绿化率:40.01%
产权年限:2021.12-2091.12年(70年)
总户数:1203户,可售商品房803户
总栋数及楼高:2栋4个单元,36-46层。
梯户比:3梯6户
层高:3米
停车位:1784个
车位占比:1:1.48
交房时间:2025年6月
交付标准:精装修
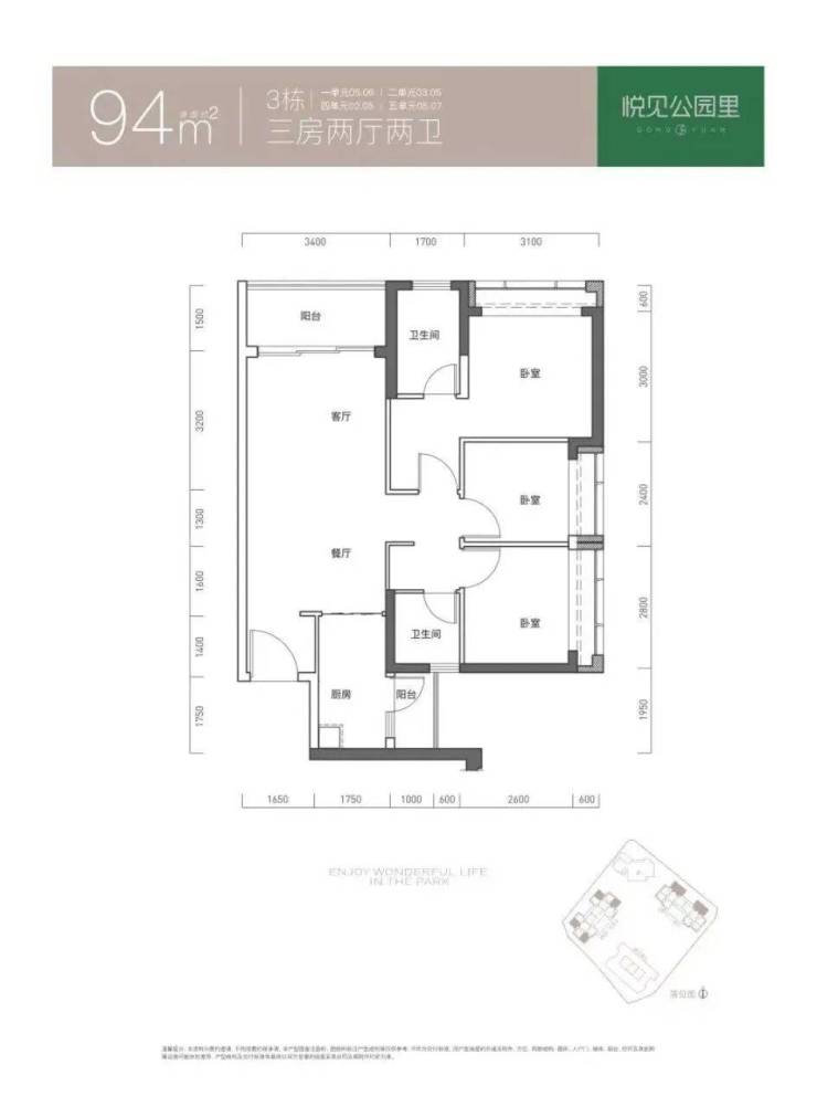
户型图
3房2厅1卫85㎡
3房2厅1卫88㎡
3房2厅2卫91㎡
3房2厅2卫94㎡
3房2厅2卫95㎡
3房2厅2卫97㎡
3房2厅2卫110㎡
学校配套:项目自带有1所9班制幼儿园,东北面规划有1所18班小学,根据2024年光明区教育局学区划分,小学学区划分在公明第一小学、公明第二小学、合水口实验学校小学部、东宝纪念小学、宝滨小学、明达小学、深圳教科院实验小学(光明),初中学区划分在公明中学、合水口实验学校初中部。
在2024年的学校录取积分中,除了深圳教科院实验小学(光明)录取积分是第四类62.25分,其它学校都是第八类录取,包括公明中学也仅第八类29.5分,按照光明的学校录取积分政策,第八类属于非深户学区租房,所以由此也能看出该片区的学校生源是比较宽松的。
交通配套:悦见公园里毗邻主干道松白路,周边双地铁口,6号地铁线红花山站距离约700米,6/13号地铁线公明广场站距离约500米,4站到凤凰城,6站到石岩上屋,11站到西丽留仙洞。
深圳13号线作为光明区的生命线,也是深圳3条快线之一,设计时速120公里,纵贯宝安区、光明区、南山区,将重新定位光明科学城通往南山核心区域的距离,其中一期已经在空载试运行,二期计划在2025年开通。
宏发悦见公园里售楼处电话:400-832-8772✔✔【预约热线】宏发悦见公园里售楼处营销中心:400-832-8772宏发悦见公园里售楼处电话/地址☎:400-832-8772(开发商热线)如有问题欢迎来电咨询,专业一对一热情服务,让您用专业眼光去买房。楼盘项目全面介绍(包含楼盘简介,均价,房价,现房,期房,别墅,叠墅,大平层,价格,楼盘地址,户型图,交通规划,备案价,备案名,项目配套,样板间,开盘时间,认筹时间,楼盘详情,售楼处电话,最新消息,最新详情,周边配套,一房一价,最新进展等详情咨询)楼盘详情丨价格丨更多优惠丨机不可失丨欢迎致电丨诚邀品鉴!售楼处位置丨特价房丨工抵房丨剩余房源丨户型图丨最新消息
配套设施是反映楼盘生活便利程度的重要因素,包括小区内的运动场所、停车场、公共设施等。物业服务则直接关系到居住者的生活品质,包括安保服务、保洁服务、设备维护等。具体到街道、区域名称,临近交通线路、自驾路线。商业、教育、医疗等配套设施分布,总占地面积、总建筑面积数据,容积率,绿化率,得房率,梯户比,物业费,小高层、洋房、高层、独栋别墅、叠加别墅、联排别墅,总户数、楼层分布,面积范围,均价/总价。首付比例、贷款政策,精装交付,含中央空调、地暖等系统,70年住宅产权,物业公司及资质,预计交付时间或施工进度
声明:本文由入驻焦点开放平台的作者撰写,除焦点官方账号外,观点仅代表作者本人,不代表焦点立场。
