起点高、房价高却面临发展“失速”,今年唐镇还能再大爆发吗?
扫描到手机,新闻随时看
扫一扫,用手机看文章
更加方便分享给朋友
新房空窗了有一段时间的唐镇今年会有什么新房入市呢?这是很多想在浦东置业的朋友非常关注的问题。
随着年前华侨城项目的开工,唐镇今年的新盘都蓄势待发,将有大动作!

华侨城项目工地实景图
唐镇的规划定位是上海第4个国际住区,今年至少有4000套+新房将入市,预计能让600-1000万购房预算的浦东客户解渴~

要知道,远离地铁的大名城、仁恒、浦发三兄弟今年的二手房挂牌价已经纷纷突破10w大关,真实成交价也站稳了8-9w。
普通的刚需客群,着实买不动唐镇二手房了,只能期盼新房的出现。
据可靠消息,融创·上海东郊已经在搭建营销团队,预计上半年就会启动;华侨城项目确定备案名为“侨盈欣苑”,预计在下半年入市。

地块位置图
1
华侨城·侨盈欣苑
唐镇镇北社区PDP0-0404单元D-04-06地块早在2016年就曾经公开出让过,因为意外中止出让而一直“雪藏”,长达4年之后的故地重开,由华侨城竞得。

目前该地块已确定了备案名为侨盈欣苑。目前正热火朝天施工中~

工地实景图
商品住宅部分由8栋16F住宅、1栋15F住宅和5栋14F住宅组成,预计将供应788套房源。

地块规划图
地块东至诚礼路(东方幼儿园诚礼部),南至姚泾港(大名城紫金九号二期),西至中心河/顾唐路,北至德淳路(大名城紫金九号一期)。距离地铁2号线唐镇站直线距离约1.6km。
从平面设计图可以看出,基本上为一梯两户的设计(注:这里的梯指的是楼梯,不是电梯;电梯疑似为1梯1户),每个单元都从北侧进入,会有一个入户大堂设计;以7#楼西单元为例,从结构上推测户型:

项目规划图
该项目将推出建面约94-152㎡的户型产品,满足刚改及改善家庭的需求。
项目优势:
和周边已经成型的三兄弟无缝衔接,继续打造高品质社区氛围
项目劣势:
和三兄弟一样缺乏配套设施,出门只能依赖自驾,到地铁距离有点远,约1.6km的直线距离!

地块位置图
项目周边将构建约2万方的邻里中心,设有菜场等,方便周边居民购物。周边最近的大型商业中心有阳光城MODO、恒生万鹂广场等。

阳光城MODO实景图
2
融创·上海东郊
融创地块是唐镇接下来较大供应的新盘,位于2号线创新中路和华夏东路站中间,直线距离地铁创新中路站约1km。

地块规划图
据消息,项目案名为融创·上海东郊,目前该项目已经在搭建营销团队,预计上半年会正式启动~

地块规划图
融创·上海东郊1个项目几乎占据唐镇未来发展的半壁江山,这话真算不上有多夸张。

网传项目效果图
整个项目并不是走的招拍挂,而是孙老板在2015-2016年间分5次收购用54亿收购来的。
当然不管项目背后的故事有多少,让上海融创来完整打造一个百万方级别的高档住宅社区确实是让人非常期待的。我觉得这里至少很有可能成为未来浦东版的古美社区。
网传售展中心已经造好,非常有设计感~


网传售展中心实景图
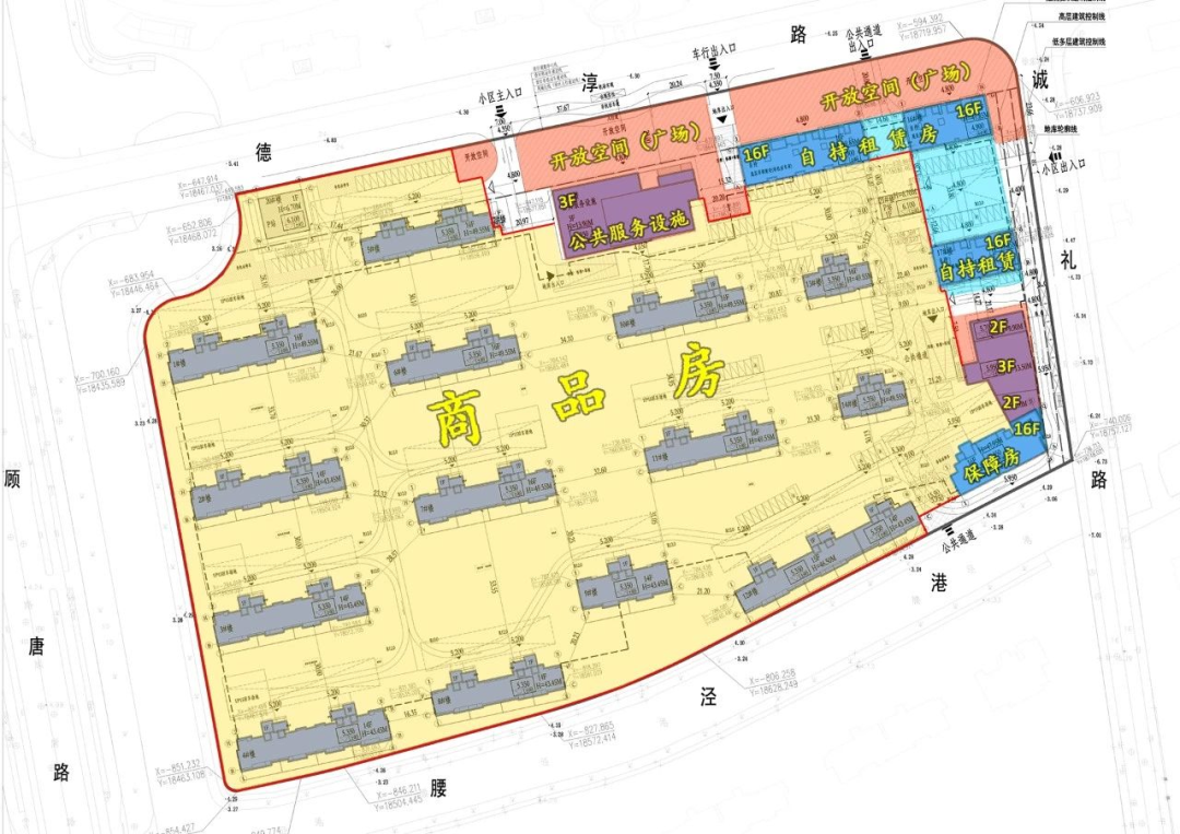
从先公示的融创三大地块规划来看,这三个地块应该都是建的纯商品住宅小区,没有保障、自持。
融创13A-01地块总面积48108.24㎡,容积率1.8,是三个地块中规模最小的。

地块规划图
该地块共由5栋14层住宅组成,此外还有居委配套用房、室外活动场地,以及配电站、垃圾房等配套设施。
融创13B-01地块容积率1.8,总建面87218.74㎡,项目主入口、车库入口在诚礼路,看上去是人车分流的。

地块规划图
该地块由7栋14层住宅组成,值得一提的是小区内有两处会所。
其中靠近西侧诚礼路的为小会所,建筑面积约800㎡,地上一层、地下一层;位于小区东侧玉盘南路的为大会所,建筑面积约3800㎡,地上两层,地下两层。两个会所都有下沉式庭院。
另外沿着玉盘南路也会有沿街商业。
融创13C-01地块容积率1.77,总建面119264.26㎡,项目人行出入口小区南侧、西侧、北侧,其中南侧和北侧都设计有景观门头;车行入口分布在小区南侧和西侧。

地块规划图
该地块共由13栋14层住宅组成,小区内配有室外泳池、健身场地、儿童活动区等配套设施。
据悉,小区外西南角规划有一处约建筑面积为3600㎡的邻里广场,将配置生鲜超市,便利店等日常生活配套;小区外北侧规划一处配置2条线路的公交首末站;小区外东侧至华东路之间为绿化防护带。
另外,西侧有三栋商业裙房,应该为沿街底商。
据悉,内部有四个户型的样板展示间已经造好了,但目前没有开放的节点,预计未来三个月会有具体开放时间,首批房源有望在今年入市。

售展中心实景图
从目前资料来看,项目定位偏中高端,适合品质改善型客户(maybe~)。
3
浦发创新中路站上盖项目
浦发创新中路上盖项目由C-13B-04和C-13C-01地块组成(下文中简称B地块、C地块),是以TOD模式开发,类似万科·天空之城。
项目步行可及的范围内,未来就能享受到公园、体育馆、商业、三甲医院、轨交枢纽,并且附近还规划有从幼儿园到初中,覆盖12年的教育配套(幼儿园、初中已经在建)。
浦发项目自带约6w方商业,整个片区全部建成后预计最终商业面积将超过20w方,大大提升唐镇的商业配套水准。




网传商业效果图
虽然与前滩、大宁等当红辣子鸡仍有不小差距,但至少使得唐镇的商业配套有机会一举赶超张江了。
目前浦发项目的C-13C-01地块方案已经对外公示,住宅部分将由6栋14F住宅组成。


地块规划图
据小道消息,项目的主力面积段为85-155平3-4房,三房、四房户型都非常方正。

网传住宅部分效果图
从网上流出的住宅户型图来看,项目确实没有辜负好地段。户型设计比较考究,小户型上建面约85平就做到了3房2卫;150平大户型大横厅设计,想必尺度会非常舒适。
感觉适合首次置业和改善置业者~




网传户型图(具体请以开发商实际公示为准)
4
浦发虹湾项目
至于靠近金融家的两块浦发虹湾开发的城中村项目,因受限于板块定位及资源的不同价格更偏刚需。

地块效果图
项目目前由2块土地组成,设计方案都已公示。
W09-06地块的商品住宅部分由6栋16F与6栋3-4F或5-6F多层住宅组成,有可能打造为叠加产品,这对于唐镇这个公寓与独栋之间缺少中间选项的板块来说,应该会非常有吸引力。

地块规划图
W15-01地块的商品住宅部分则由3栋16F住宅,以及4栋5-6F多层住宅组成。同样也有可能打造为叠加型产品。

地块效果图
据悉,根据土地出让要求,住宅全装修比例 50%(不包含保障性住房等),保障房装修比例 100%,中小套比例 60%。
周边还有三块住宅用地,尚未完成动迁。城市界面肯定不如前面几块地。
5
小结
唐镇板块位于浦东新区的中心地带,西面是张江高科技园区,南面是迪斯尼核心区,北面是上海重点打造的金融信息服务产业基地,东面为金桥出口加工区(南区)。
目前板块内已暂无一手商品房在售,而2021年唐镇八大地块的集中供应,将掀起唐镇新房的新一轮热潮。
唐镇的起点非常高,起步于龙东大道的独栋别墅群,2010年左右的绿城又奠定了板块内高端公寓的基调,是外环旁非常难得的高端商品房集聚区。
但近几年来唐镇发展却比较缓慢,鲜少有大动作。
不过2021年我们终于要见到随着关键性项目的启动,唐镇终于将进入下一个发展阶段。大家期待吗?
声明:本文由入驻焦点开放平台的作者撰写,除焦点官方账号外,观点仅代表作者本人,不代表焦点立场。
