温州西派澜廷(售楼处) 首页 - 温州西派澜廷销售中心 - 环境 - 户型 - 价格 - 地址 - 温州西派澜廷楼盘详情 - 配套 - 电话 - 交房时间
扫描到手机,新闻随时看
扫一扫,用手机看文章
更加方便分享给朋友
✨✨温州西派澜廷售楼处电话:400-678-1582转接8888【已认证】
✨✨温州西派澜廷售楼处位置:400-678-1582转接分机号8888【楼盘认证】
➤➤➤➤VIP贵宾置业〢欢迎来电咨询,售楼处认证电话400-678-1582转接8888【已认证】
☎为您安排楼盘现场销售全程接待并讲解,给您更贴心的看房体验!
温馨提示:如需楼盘最新在售户型和价格,请致电咨询最新详情,1对1专业销售顾问服务!
在12日,位于西部新城的西派澜廷二期江御就要开盘了!这一回,温州市区楼市首次迎来了没有高低配的“纯-四代宅-大盘”。

▲项目鸟瞰效果图示意
毛坯均价约2万/㎡,实际得房率如何?哪些房源有性价比?一起来看看……
首先,咱们来看看实际得房率——
A
实际得房率
以下为本次开盘推售房源实际得房率:

▲根据房管网数据测算,未计飘窗和安置设备的设备平台。或有误差,以实际为准
需要说明的是,我们这里的计算,和开发商宣传口径不一样。一是仍然做设备放置使用的设备平台,并不是室内空间的拓展,不算作“赠送面积”;二是飘窗,无论按照何时的容积率计算政策,正儿八经不能敲掉的飘窗都可以设计,也不算“赠送面积”;三是西派澜廷的电梯前室设计与其他项目不同为开放式,“走廊”面积按一半计算,且可被业主利用,算作“赠送面积”。
说完得房率,来看看吃瓜群众最关心的“价格”——
B
价格分析

▲房源为毛坯交付,普惠93折。开盘期间,部分房源特惠低至91折。仅供参考,以实际和案场为准。
开盘期间,江御澜庭部分房源低至91折,折后均价约为2.14万元/㎡。同面积段下,与西派一期地块的价格差不多。
▲楼栋分布图示意
其中:
10#为一线看江楼栋。跃层160方91折惠后(下同)均价约2.4万/㎡;
118-130方平层惠后均价在1.95-2万/㎡,中高楼层看江房源则在2-2.36万/㎡之间;
6#的105方看江视线较弱,惠后均价约1.97万多元/㎡。
✨✨温州西派澜廷售楼处电话:400-678-1582转接8888【已认证】
✨✨温州西派澜廷售楼处位置:400-678-1582转接分机号8888【楼盘认证】
➤➤➤➤VIP贵宾置业〢欢迎来电咨询,售楼处认证电话400-678-1582转接8888【已认证】
▲项目北侧江景面实景图示意,高度约70米
这个价格贵吗?咱们就以105方为例,参照隔壁玉锦麟二手房价格进行对比。

▲根据房管网数据测算,未计飘窗和安置设备的设备平台。或有误差,以实际为准
玉锦麟商品房零星成交,近期商品房成交价约2.0-2.4万/㎡(装修标准约2195元/㎡),扣除装修标准后,毛坯保守以2万/㎡计,如果以可利用面积折算,西派澜庭·江御的105方还是有一定的价格优势的。
下面来看看项目详情——
C
开盘楼幢
本次预售《江御澜庭(一期)》,预售范围如下(依照地名办标注):6幢、10幢,建筑面积 18382.02平方米, 152套 。
▲楼栋分布图示意
本项目预计于2026年7月份主体全部结顶,计划于2027年11月份竣工验收, 于2027年12月底交付,具体以实际情况为准。
D
区位分析
西派澜廷·江御 (即C-08地块) 鹿城区双屿街道中央涂牛三角路与望江西路交汇处,即 新希望·玉锦麟西侧 。

▲地块相对位置示意。/浙江省土地使用权网上交易系统
项目北侧为望江西路、沿江公园及瓯江;
东侧为广润嘉苑、玉锦麟、东瓯大桥等;
南侧为昆仑路(规划)、二中西部新城校区及其附属小学(在建)、鞋都大道、5050购物中心等;
西侧为美特斯邦威大楼、西部新城核心区(规划在建)“茶榕”地标建筑等。
这两年,随着大拆大整、大建大美,城西中央涂一带周边新建商品房密集交付,城市界面和软环境明显改善。
目前不少拆改腾挪出来的地块现状还是空地。主要规划了商办为主的西部新城。买房看规划,最怕的就是“画饼”。从规划效果图上来看,逼格挺高。当前,西部新城核心区多宗商办地块已经出让,部分已在动工。。

✨✨温州西派澜廷售楼处电话:400-678-1582转接8888【已认证】
✨✨温州西派澜廷售楼处位置:400-678-1582转接分机号8888【楼盘认证】
➤➤➤➤VIP贵宾置业〢欢迎来电咨询,售楼处认证电话400-678-1582转接8888【已认证】
▲中心绿轴方案阶段效果示意图。来源:省建筑设计研究院
不过,考虑到当前房地产市场不景气,政府地方债压力较大、财政紧张,加之商办空置率持续走高。而西部新城规划以商办为主,与城东核心区相比没有太多优势,后期实施的进度和力度或存在较大不确定性。
从配套上来看,项目周边舒适的步行距离内,可以到沿江景观带散散步,可以到二中西部新城校区及附属小学(在建,预计2027年投用)接送孩子,也可以到5050购物中心吃喝玩乐。

▲项目周边配套相对位置示意。有误差,供参考,步行车行时间有误差仅供参考
▲二中西部新城效果图示意
▲沿江景观带实景图示意
从区位条件来看,周边临近鞋都大道、翠微大道、瓯江路西延线和东瓯大桥等。距离温州西收费站、BRT公交站也不远。
✨✨温州西派澜廷售楼处电话:400-678-1582转接8888【已认证】
✨✨温州西派澜廷售楼处位置:400-678-1582转接分机号8888【楼盘认证】
➤➤➤➤VIP贵宾置业〢欢迎来电咨询,售楼处认证电话400-678-1582转接8888【已认证】
再来看看项目产品——
C
布局设计
西派澜庭·江御开发商为 中铁建。可以说,这是温州市区首个没有采用高低配的“四代宅”大盘。
地块容积率2.18,绿地率35%,由11幢住宅组成,其中3幢24层一类高层、8幢16-17层二类高层,南低北高。项目拥有住宅约7.56万方,住宅约662户。

▲项目效果图示意
为了更大程度利用江景面,西派澜庭·江御楼栋交错布置,二三排部分房源也有一定江景面。

▲项目江景视线示意
小区外立面为大面积浅色铝板+玻璃幕墙立面,以及局部外墙涂料。


▲效果图
项目的公区、园林、架空层及会所,可以查看相关文章,本文不再赘述,可点击链接跳转阅读:
无法想象!市区单价2万/m²左右“四代宅”楼盘,居然也要做“顶壕配置”……

▲设计过程稿,仅供参考,最终以实际交付为准
▲设计过程稿,仅供参考,最终以实际交付为准
D
间距和日照
西派澜廷·江御(西侧地块)住宅为南偏西约11.6°左右,建筑实际正南向楼间距会略大于图注的楼间距。

▲西派澜廷楼间距,东侧为一期地块,西侧为二期地块即本案,仅为示意,以销售口径和实际为准
本期预售的6#和10#,日照遮挡格局比较相似,南侧、西南侧均有住宅楼栋形成遮挡,因此6#和10#低楼层的几套房日照条件会比较差,而中高楼层日照整体不错。
下方日照模型仅供参考:模拟2026年1月20日(大寒日)日照时长。



▲累计日照时长。未考虑南侧、西侧等地块建筑影响,可能有误差,仅供参考,下同
✨✨温州西派澜廷售楼处电话:400-678-1582转接8888【已认证】
✨✨温州西派澜廷售楼处位置:400-678-1582转接分机号8888【楼盘认证】
➤➤➤➤VIP贵宾置业〢欢迎来电咨询,售楼处认证电话400-678-1582转接8888【已认证】
▲西派澜廷·江御模拟日照,仅供参考,可能存在较大偏差。未考虑南侧、西侧等影响。
E
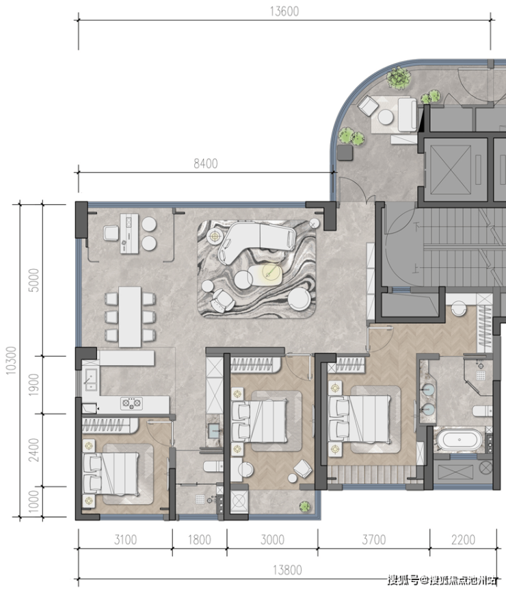
户型分析
本次开盘,共推出4个户型,分别是平层105方、118方、130方,以及跃层160方。标准层层高约3.15米,架空层挑高约6米。
我们曾详细分析过这四个户型,此处不再赘述,可点击链接跳转阅读:
卧踢!“第四代宅”刚“露脸”,更新迭代又在“发货的路上”……
---平层105方:

---平层118方:

---平层130方:

---跃层160方:

▲有奇偶层两个户型
✨✨温州西派澜廷售楼处电话:400-678-1582转接8888【已认证】
✨✨温州西派澜廷售楼处位置:400-678-1582转接分机号8888【楼盘认证】
➤➤➤➤VIP贵宾置业〢欢迎来电咨询,售楼处认证电话400-678-1582转接8888【已认证】
声明:本文由入驻焦点开放平台的作者撰写,除焦点官方账号外,观点仅代表作者本人,不代表焦点立场。
