低调许久的 嘉佰道·徐汇 终于公布了户型图,预计将打造建面约100-122㎡艺术高定私邸,以及建面约315-430㎡当代洋房墅居。
【嘉佰道·徐汇】售楼处电话:400-000-0460转6666
预计2026年yi'j上市

效果图
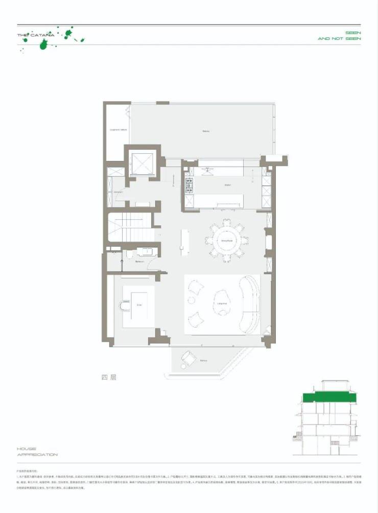
最新户型图如下:





















去年12月30日,徐汇龙华地块(S030501单元N06-22地块)经过101轮竞价,最终由宸嘉发展以438240万元总价竞得,溢价率40%,装修标准高达7000元/㎡!整体楼板价12.6万/㎡,可售住宅楼板价更是高达 13.3万/㎡ ,成为绿城徐汇滨江地块后的 徐汇新地王!
该地块位于徐汇内中环,强生花苑南面,龙华西路东侧,上海师大附中附属龙华中学西侧。
出让面积达2公顷,容积率1.59,土地为商品住宅用地性质。
11号线和23号线地下贯穿,地块东侧还有龙华烈士陵园和龙华寺。


项目整体采用“高低配”方案,产品包括 洋房、高层、叠加、联排 !项目呈左高右低布局,西侧为6层洋房+16层高层,东侧为叠加+联排。

产品亮点 :
延续了宸嘉一如既往的高水准,非常值得期待!
其中别墅采用约 13米超大楼间距 ,保证了别墅业主的日常人居隐私。
突破了市场常规的 超高窗墙比 ,大面积的玻璃外立面让室内每一寸都熠熠生光。
小区还配置了顶奢酒店级的无边际感 露台泳池, 家门口就有极致奢享!

效果图

效果图

效果图
在建筑设计和园林景观方面,聘请了国内顶级团队——“GOA大象建筑”陆浩x“植弥加藤”皇家园林单位组合。
外立面上——采用 石材、防铜色铝板、不锈钢 和 曲面玻璃 的质感组合,以 "S"形弧线 和 "C"形檐口 等工艺,打造徐汇乃至上海的艺术地标。
园林方面——灵感汲取宋代名画《溪山行旅图》,抽离出"六境园林",为仅60席别墅业主定制"知行"巷境,深度借鉴苏州"狮子林"的造园精髓,结合江南人文风貌、禅宗文化底色和地块本身的低密度特点,打造"隐幽、梵音、守拙、不朽、释倦、知行"六大园境。


周围规划上,西岸金融城的180万方规划 、数字谷与传媒港的产业集群,正在将这片土地锻造成 “黄浦江畔的硅谷” 。
高能级产业的入驻,不仅带来高净值人群的聚集,更催生了一种“磁石效应”——这里的每一栋建筑,都在吸附全球资本与顶尖人才的目光。
这种“产-住-商”一体化布局,更使区域成为上海少数兼具商务价值与居住舒适度的顶级板块。

【嘉佰道·徐汇】售楼处电话:400-000-0460转6666