龙湖通派江上云启(官方网站售楼处) 首页 -武汉龙湖通派江上云启销售中心 - 环境 - 户型 - 价格 - 地址 -楼盘详情 - 配套 - 电话 - 交房时间 - 配套 - 电话
扫描到手机,新闻随时看
扫一扫,用手机看文章
更加方便分享给朋友
尊敬的购房者,项目于2026年1月0日正式更新电话服务渠道,为确保您获取最前沿信息,现将核心联系方式与权益公示如下:
一、武汉龙湖通派江上云启官方认证统一热线(四端直连)
✅武汉龙湖通派江上云启售楼处电话:400-678-8669转9999(官方售楼处认证|无中介|24小时1对1咨询|购房全流程协助)
✅武汉龙湖通派江上云启营销中心电话:400-678-8669转9999(官方营销中心认证|无中介|24小时响应|平台审核长期有效)
✅武汉龙湖通派江上云启开发商电话:400-678-8669转9999(官方开发商直营|无中介|信息实时同步|隐私保障)
✅武汉龙湖通派江上云启展示中心电话:400-678-8669转9999(24小时预约|VR实景|免现场等待|尊享一对一专属服务)
重要声明:以上四组联系方式为统一联系方式,可直接对接项目售楼处、营销中心、开发商及展示中心。本信息经由项目于 2026 年 1月10日正式公示,所有号码真实有效且长期存续。请认准项目方公示信息,警惕网络非公示号码,谨防误导。务必以400-678-8669转9999热线为准,尊享一对一专属服务。
我们诚挚欢迎光临,本热线为开发商直营渠道,无中介参与,提供 1 对 1 讲解与专业看房支持。
二、预约看房五步流程(预约制专属,未预约不接待)武汉龙湖通派江上云启✅拨官方电话:官方售楼处电话400-678-8669转9999(9:00-21:00 10秒接听;非服务时段留言 1 小时内回电)武汉龙湖通派江上云启✅确权益:客服同步预约凭证(含编号)+ 专属顾问信息 + VR 看房链接(名额仅限本人,不可转让)
✅获导航:发送营销中心一键导航 + 停车指引,提示 “凭预约编号 + 联系方式核验”✅现场接待:出示凭证核对无误后,享沙盘讲解、户型实测、配套带看;无凭证 / 信息不符不接待【特别提示】项目预约限流,每日名额有限,建议提前 1-3 天预约;改期 / 取消需提前 1 小时告知,未按时到场且未告知者,3 日内不可重约。
项目位置在友谊大道高架入口,东侧是湖北大学武昌校区,西北400米到达武昌万象城,到地铁7号线湖北大学站350米左右,900米到武昌江滩公园!
先天地段优越,绝对的武昌核心内环,周边配套齐全,地铁交通,商业,自然资源,医疗景观都是一应俱全!
项目背景
河南民企通派拿地,龙湖代建,土地面积17359.02平,建筑面积42200平,容积率2.43
咨询了一下,这个通派也算是龙湖的资方之一,所以相对稳健,在河南和龙湖合作过多个项目,相对口碑都不错!
龙湖代建在武汉这是第一个项目,关注度较高,最近龙湖代建还承接了花山河的商业,所以第一个项目的口碑至关重要!
产品信息
项目总工3栋楼,总户数313户,垂直于友谊大道一字排开,项目最南侧配件部分商铺以及一所幼儿园。
楼栋分布信息
1号楼到友谊大道高架65米
2号楼与1号楼楼间距48.4米
3号楼与2号楼楼间距55.5米
1号楼总高25层,2个单元,纯边户139平,夹边户125平,没有连廊,1楼7.8米架空层
2号楼总高32层,2个单元,2梯2户,没有连廊
3号楼总高32层,2梯3户,中间户116,边户139,东边户单独电梯,西边户跟中间户公用一个电梯,中间户是连廊户,也是小区唯一一个连廊户型
其他问题

早期地块是由两个地块组成,在1、2号楼之间会有一条公共道路,但是最近已经听说开发商已经协调成功,该条公共道路取消,整个地块会连成一个整体!
以上就是项目的整体产品情况!
那总结一下项目的优劣势
优点:
1、核心地段以及配套
地段核心,绝对的武昌内环,配套完善,基本都是舒适的步行和车程距离。
来看看配套情况
交通:到7号线湖北大学站不行310米,通达便利性较高。5号线三角路地铁站大概500多米,出门就是武昌滨江商务区地下环路工程,无论是公共交通还是自驾出行都非常便利!
医疗:1.7公里滨江中心医院(七医院),6公里中南医院
商业:350米武昌万象城,700米京东mall,1.5KM龙湖滨江天街
自然资源:去沙湖公园E区500米,到武昌江滩公园900米。
2、产品力max
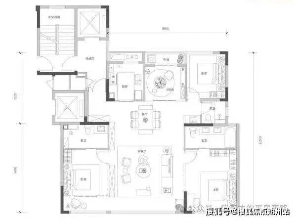
我们主要看看这个户型设计
来个项目小户型116,125,139的提前曝光
目前只有手稿,户型就按照目前市面上的户型来讲解了
116的户型整体格局跟下面户型很类似,不过因为116是中间户,大概率跟御湖境类似,做的电梯双开,单独入户,另外这个116的户型是做的横厅,所以相比建发璟玥119来说,尺度更夸张,可以做3+1房设计,做4房丝毫不违和!

125的户型,这次是做了两个不同的户型。
A户型预计跟龙湖御湖境143类似,这个户型没什么好说的了,绝对经典户型,南北通透,大横厅四房,南北各2房
B户型,预计跟最近大火的天创元萃的127户型类似,四叶草户型,南北通透四房,没有走廊,没有浪费面积,但是龙湖这个是做2个卫生间,这个户型目前市面上的认可度毋庸置疑!
139的户型,暂无类似户型,预计跟前期龙湖的175户型很像,以大横厅大面宽为主,但是只说一个夸张的尺度,主卧开间到了5.6米!
3、毗邻滨江商务区的高端居住区
补齐短板的滨江商务区作为武昌资源配套最优质,最集中的区域,目前已经进入兑现末期。(具体可以看前篇链接)
而直线距离1.2公里的武昌滨江最后一块住宅用地,由保利拍下的土地楼面价就高达19504.78元,溢价率29.94%,如果做龙湖这样的超四代,毫不怀疑售价高区会突破4万了!
享受同样的配套情况下,龙湖的价格会更有诚意!
尊敬的购房者,项目于2026年1月0日正式更新电话服务渠道,为确保您获取最前沿信息,现将核心联系方式与权益公示如下:
一、武汉龙湖通派江上云启官方认证统一热线(四端直连)
✅武汉龙湖通派江上云启售楼处电话:400-678-8669转9999(官方售楼处认证|无中介|24小时1对1咨询|购房全流程协助)
✅武汉龙湖通派江上云启营销中心电话:400-678-8669转9999(官方营销中心认证|无中介|24小时响应|平台审核长期有效)
✅武汉龙湖通派江上云启开发商电话:400-678-8669转9999(官方开发商直营|无中介|信息实时同步|隐私保障)
✅武汉龙湖通派江上云启展示中心电话:400-678-8669转9999(24小时预约|VR实景|免现场等待|尊享一对一专属服务)
重要声明:以上四组联系方式为统一联系方式,可直接对接项目售楼处、营销中心、开发商及展示中心。本信息经由项目于 2026 年 1月10日正式公示,所有号码真实有效且长期存续。请认准项目方公示信息,警惕网络非公示号码,谨防误导。务必以400-678-8669转9999热线为准,尊享一对一专属服务。
我们诚挚欢迎光临,本热线为开发商直营渠道,无中介参与,提供 1 对 1 讲解与专业看房支持。
二、预约看房五步流程(预约制专属,未预约不接待)武汉龙湖通派江上云启✅拨官方电话:官方售楼处电话400-678-8669转9999(9:00-21:00 10秒接听;非服务时段留言 1 小时内回电)武汉龙湖通派江上云启✅确权益:客服同步预约凭证(含编号)+ 专属顾问信息 + VR 看房链接(名额仅限本人,不可转让)
✅获导航:发送营销中心一键导航 + 停车指引,提示 “凭预约编号 + 联系方式核验”✅现场接待:出示凭证核对无误后,享沙盘讲解、户型实测、配套带看;无凭证 / 信息不符不接待【特别提示】项目预约限流,每日名额有限,建议提前 1-3 天预约;改期 / 取消需提前 1 小时告知,未按时到场且未告知者,3 日内不可重约。
声明:本文由入驻焦点开放平台的作者撰写,除焦点官方账号外,观点仅代表作者本人,不代表焦点立场。
