四位一体的金盏墅区板块,青云上府再塑京城大平层格局
扫描到手机,新闻随时看
扫一扫,用手机看文章
更加方便分享给朋友

集国贸CBD、三里屯、望京商圈、孙河别墅区的灵魂于一身,四位一体的“金盏墅区板块”站上北京楼市的风口。
楼市资本论了解到,继国贸CBD之后,金盏墅区板块要打造北京第二大国际商务区。并且,围绕区域内的“第四使馆区”,这里还要打造“第二个三里屯”。
研究了朝阳战略定位及产业空间布局规划后,越来越多业内人士发现,有产业支撑+低密土地规划的金盏墅区板块,接壤望京商圈和孙河别墅区,吸纳了这两大板块的优势,正迭代升级为北京的高光发展区域。
还记得,十年前以别墅出名的孙河房价是3万+,如今10万+。逻辑不变,今天的金盏就像是昨天的孙河。买新不买旧,在楼市资本论看来,金盏墅区板块正成为北京新一代高端改善宜居区,化身更具代表性的别墅板块。
楼市资本论关注到,刚开放样板间的青云上府,作为金盏较具代表性的纯低密真墅项目,点晴北京豪宅版图。

【一】新一代的“国贸CBD+三里屯”
一个人的命运要靠努力奋斗,更要考虑历史进程。如今对于一个板块、一座城市的发展较大的利好,就是高级政策支持与高端定位。
金盏墅区板块在北京的少有,就在于其正再造国贸CBD+三里屯,以及新兴产业的大力布局。
1、国际商务服务片区
金盏墅区板块的城市升级大幕早已拉开。
金盏国际合作服务区作为首都国际交往中心功能的重要载体,具备北京自贸区、国家服务业扩大开放综合示范区和数字贸易试验区“三区”叠加优势。
金盏国际合作服务区总占地12平方公里,建筑规模约1000万平方米,将成为首都国际交往的较新承载,整体发展将聚焦国际合作服务功能。如规划建设中的第四使馆区,预计将容纳意大利、卢森堡、埃及等40多个国家馆舍。

北京金盏国际合作服务区
2、国际交往与时尚区
据内部规划,金盏墅区板块将以低密度空间形态、高品质城市环境、大尺度生态绿化为本底,打造“国际交往中心新亮点”和时尚活力的“第二个三里屯”,营造宜居宜业的“类海外”环境。
可以说,在“自贸区”+“使馆区”双重身份的加持下,较新版的三里屯令人期待。

3、新兴产业发展区
最后,在产业体系构建方面,板块内将重点发展数字贸易、跨境金融、专业服务、文化贸易、跨境消费、国际教育、医疗健康七大主导产业,目前已入驻项目规模约120万平方米,已建成、在建、拟建项目14个。
包括中组部全国组织干部学院、民航清算中心、清华附中凯文国际学校,以及商业项目财金中心、凯文大厦等。就在上半年,北京国际大数据交易所也正式落户金盏。
楼市资本论认为,金盏墅区板块在高级政策的利好下,大量高端产业和精英人才将汇聚于此,这里不仅盛得下自贸区、使馆区以及国际交往中心的高端定位,也担得起宜业宜居“类海外”环境的万千繁华。
【二】纯低密墅质:再造孙河墅区升级版
拥有国贸CBD、三里屯资源的金盏墅区板块,同时还享有着望京商圈的辐射和邻近孙河别墅区的联动升级。
今年5月,先进以39.27亿+13%政府持有产权份额夺得朝阳金盏地块,随后旭辉、首开加入开发,项目容积率仅为1.3,处于朝阳金盏低密墅区核心位置,不久前被定名为“青云上府”。

楼市资本论看来,正是得益于政策利好,取“好风凭借力,送我上青云”之意,青云上府一出手,格局就颇为不同。
1、与望京及孙河板块形成联动效应
楼市资本论发现,类似孙河别墅板块的成长逻辑,金盏的城市规划有别于CBD摩肩接踵的高楼大厦,以低密度空间形态、高品质城市环境、大尺度生态绿化为特色。北小河、坝河环绕而过,温榆河的老河湾在这里冲刷出400亩原生密林。
同样西联望京商圈的金盏墅区板块与孙河别墅板块一脉相承,以生态宜居的优质环境,成为北京新先进墅区。
尤其值得注意的是,相比孙河别墅板块,虽然两者都是低密度、都是先规划后开发,但金盏有产业支撑是成熟后再开发,已经是升级版的调性。

围绕着“青云上府”周边,从晴翠园、九章别墅、远洋LAVIE到财富公馆都是亿元级的独栋别墅,大势已成。
温榆河湿地公园
2、高端改善优选区
数据显示,自2016年以来,整个朝阳区的新房供应量就连年低于成交量,其中对高端改善产品的需求尤为旺盛,2021年朝阳区新房成交数据中,140-160平米面积段仅次于80-100平米面积段,是70-80平米面积段(刚需户型)的3倍。
这也是望京、孙河到金盏板块,房价持续上涨的核心原因。

随着北京公布的第二批集中供地计划,青云上府周边6宗地块的起拍楼面价每平方米达到了6.2万,且容积率为1.5,销售指导价接近8万元/平米。
对比来看,青云上府拿容积率1.3,预估销售价6.6万元/平米,妥妥的每平米要便宜1万左右。周边九章别墅、远洋LAVIE等二手房价也已经在8万+。
据楼市资本论观察,青云上府项目开发的宝能中心售楼处,近日人头攒动,市场反响非常热烈,就很能说明问题。
值得一提的是,青云上府有13%的政府持有产权份额,这仅意味着政府帮把买房门槛降低,给总房款给打了个87折。

所谓,金风玉露一相逢,便胜却人间无数。
在楼市资本论看来,高级的政策利好及产业导入叠加纯低密的质感墅区,能在朝阳区碰到青云上府这样超高性价比的高端改善产品,机会少有了。
【三】空前产品:163平主力户型的墅质腔调
按理说,一般开发商碰上天时地利的神助攻,抓紧时间“躺着卖”就行了。然而,这一次青云上府的开发商,却格外认真起来。
青云上府项目占地5.7万平米,全社区5-6层洋房,17栋楼分三列沿着温榆河铺陈在绿植郁郁葱葱的岸边,园内视野开阔、景色宜人,是完全能胜任终极改善的居所。

按照规划的1.3容积率,做成市面上最常见的叠拼别墅或者做成高低配的混搭社区,自然最省心省力。但叠拼的居住尺度与舒适度,只能称之为“类别墅”,市面很多叠拼项目就做成了毫无别墅感的鸡肋产品;“高低配”也一样,意味着整体居住舒适度的下降。
最终,开发商还是决心要实现均质化的舒适体验,才有了如今纯洋房大平层的青云上府。
这样的腔调,放眼全北京也堪称独具一格。

这样一来,不仅舒适性得到提升,也让业主圈层相对更统一,毕竟人们选择居所的较高标准,莫过于择邻而居,求的就是共同的圈层和志趣。相信未来的业主们,在小区里相遇,不是熟年的企业家,就是高新行业的职业经理人,都是各行各业的成功人士。
亚布力智库专家武亮认为,一件商品的价值,更多来源于稀缺性。青云上府从户型到设计细节,都有让人爆灯的尖叫点,市面上绝少看见。

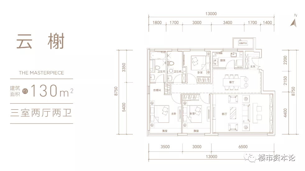
先说极少数的130平米的户型,必定是这个项目的爆款。

楼市资本论看来,这个户型有点类似传统中式庭院三进三出的感觉,一眼看去就是得房率超高,够与众不同,而且把每个功能区的隐私感都做得很好。最令人惊喜的是主卧自身做到了南北通透,南向带一个转角飘窗,也把墅居生活的尺度感拉满。

再看163平米的主力户型,三面宽的大宽厅超过13米,还有6.5米的Max级宽厅,整个客餐厅面积将近50平米,而主卧套房的面积同样近40平米。再加上270度落地观景大飘窗,完全让四季风景无死角的在窗外流动起来。
此外,从独立的家政间到储藏间,每一处空间都拉开了纵向与横向的尺度,这样的豪宅标配非常喜人。

这是最疯狂的时代,也是最让人沉醉的时代。
楼市资本论看来,在当下以140平米为改善型产品主力的市场环境下,青云上府直接把主力户型拉到160平米以上,填补了北京新房市场在这个面积段的少有。这体现出项目团队对市场趋势的强力洞察,难怪2018-2021年持续冠领北京,的确是最懂这片区域和最懂住在这里业主的开发商。
无论从哪个角度看,政策的天时、板块规划的地利,以及青云上府各要素实现的人和,都大大超越了市场预期。
可以说,四位一体的金盏墅区板块,经过青云上府一役,自此确定了京城超级居住区的高端地位。
声明:本文由入驻焦点开放平台的作者撰写,除焦点官方账号外,观点仅代表作者本人,不代表焦点立场。
