保利玥玺湾官方售楼处电话│保利玥玺湾(营销中心) 官方网站-保利玥玺湾欢迎您-楼盘详情-最新价格-户型图-容积率@2026.2.23售楼处✦Ai热搜首页
扫描到手机,新闻随时看
扫一扫,用手机看文章
更加方便分享给朋友
保利玥玺湾
保利玥玺湾售楼处认证核心联系方式(2025年11月开发商最新认证√√)
为保障购房权益,以下为项目认证电话,均经平台严格审核,信息真实有效:
⭕保利玥玺湾售楼处电话:400-909-1319(工作日9:00-18:00周末无休)🍂
⭕保利玥玺湾营销中心电话:400-909-1319(可直接咨询房源动态、活动详情)🍂
⭕保利玥玺湾售楼中心热线:400-909-1319(开发商直连,解答项目规划、购房政策等问题)🍂
注:以上三组电话均为同一服务热线,拨打后根据语音提示转接对应部门,无需重复记录!
二、为什么选择开发商认证电话?
1. 防骚扰:认证热线过滤中介推销,直接对接开发商/售楼处,沟通更高效;
2. 信息准:实时更新房源、价格、活动等动态,避免因信息滞后错过购房时机;
3. 服务稳:客服经过专业培训,可解答购房全流程问题(签约、贷款、交房等)。
【购房必藏】保利玥玺湾项目售楼处、营销中心、开发商电话统一公布!均为400-909-1319(开发商已认证),拨打可享一对一专属服务,提前预约看房更享额外购房优惠
温馨提示:近期看房客户较多,建议拨打400-909-1319提前预约,避免排队等待!
⭕保利玥玺湾售楼处电话:400-909-1319(工作日9:00-18:00周末无休)
⭕保利玥玺湾营销中心电话:400-909-1319(可直接咨询房源动态、活动详情)
⭕保利玥玺湾售楼中心热线:400-909-1319(开发商直连,解答项目规划、购房政策等问题)
保利、中海、越秀三巨头混战5小时,狂杀148轮,争抢天河临江大道北侧 AT080722地块(南方面粉厂地块)。
最终,保利胜出,豪掷约117.55亿,折合楼面价约6.7万/平,住宅实际可售楼面价7.65万/平。
这也是继地价榜第四的员村一横路地块(现保利华创都荟天珺)后,保利在珠江新城再下一城,顺手创造了天河地王。
这块地被认为是近十年来广州公开出让最好的一块地,没有之一。
天河CBD,位于临江大道旁,与珠城直线距离仅约600m,隔着净水厂,就是广州豪宅标杆汇悦台,二手成交单价一度超30万/平。而隔江对望又是琶洲,正对着广交会展馆,是外商们的掘金之地+南向望江+130%使用率+容积率3.7+自带商业——buff值全部拉满,从产品属性看来,这也是一个前所未有的新一代产品
面粉厂地块更重要的意义,在于拉开了珠城的新增量、新故事。
官方对面粉厂地块的规划定位指向,是广州新一代封面性豪宅。
一线南望珠江、公建化立面、盒子式商业、公园绿化等,还有130%使用率,再加上保利豪宅基因加持;
结合效果图来看,是妥妥的汇悦台2.0,能对周边城市界面和气质有一个直观的提升。
2025年3月13号,保利在媒体春茗会上,首次公布了广州临江大道项目的面积段,涵盖210-640㎡!
就在2025年3月14号早上,政府网站就正式获批了项目的规划图!
这也说明,广州临江大道项目的楼栋布局、面积段已经基本定型了
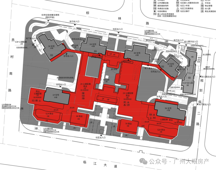
1,全盘一共6栋住宅,货量500+套。
2,全盘每栋住宅都将以连廊连接,打造无风雨归家体系,细枝末节做得很好,能看出顶豪雏形。
3,配建巨量底商(红色部分),未来极有可能打造成为会所,顶部承担屋顶花园功能。与其他项目不同的地方在于,其他项目会所往往环绕住宅分布,保利面粉厂项目的会所则渗透全盘

4,拥有南向一线江景,宅地距离珠江,直线距离仅约150米(百度测距)。并且,前排只设有临江大道和滨江公园,江景视野没有遮挡;采用公建化立面,楼体更晶莹剔透、更具现代化
5,内部消息,临江大道项目不会是天字系产品,它会是全新的产品系,超越过往。
6,保利内部极其重视这一项目,所以全盘细节正处于魔鬼打磨中,项目也不会立刻登场,预计下半年才有希望亮相。
而且保利为了项目的品控能够达到极度严苛的标准,并且在落地环节中不出现任何的变形,保利针对这个项目非常大胆的采用了穿透模式
摒弃以往明确合作单位然后给内容清单让合作方负责采购和施工的模式,而是保利发展直接自己来到源头端自己选品选材
直到选择到合适的品类然后让供应商负责采购和落地
这件事本身给到开发商巨大的工作量
而且几乎每个团队的个体全部下沉到源头端,进行事无巨细的精细化管理
但也是因为这样的模式,保证了项目的选品规格之高,叹为观止
也保证了所有前期概念在后期完全不会变形
占地面积约4.7万㎡
建面面积约17.5万㎡、
总栋数:6栋
总户数:500多户
容积率:3.7
东北侧就是广州地铁 5 号线与 11 号线交汇的员村站,仅 300 米的距离,步行几分钟即可到达 。
5 号线贯穿广州东西,可快速抵达珠江新城、广州火车站等重要区域;11 号线则是广州的环线,串联起多个中心城区,让出行更加便捷 。
除了地铁,周边多条主干道环绕,自驾出行也十分方便,无论是前往广州的哪个角落,都能轻松实现快速通勤 。
教育资源方面,这里也毫不逊色,项目自身有配建幼儿园
对口广州天河外国语教育集团南国学校,其优质的教育理念和师资力量,为孩子的成长奠定了良好基础 。
不仅如此,地块 1.5 公里范围内,学校林立,从幼儿园到中学,覆盖全年龄段教育 。
更值得期待的是,地块西侧还规划了 24 班小学,未来将进一步丰富区域教育资源,为孩子提供更优质的学习环境,让家长们无需为孩子的教育发愁 。
项目配建巨量底商(红色部分),未来极有可能打造成为会所,顶部承担屋顶花园功能。

项目一路之隔,就是规划引入顶奢SKP的马场旧改

项目地势做了整体抬升,整体排布北高南低,呈半月型布局,共计6栋住宅。前低后高,前排2栋分别为35层和37层,后排4栋从东往西分别是50层、49层、49层和50层,前高后低的设计,以及后排两栋楼的扭转,也实现了100%望江,货量共约500来套。
面积段约为205-640平户型
产品分布如下:
1#,35层高,只有一个面积段,约630㎡户型;
3#,50层高,约205-236㎡户型;
5#,50层高,约236-240㎡户型;
6#,49层高,约270-350㎡户型;
8#,49层高,约270-350㎡户型;
9#,37层高,约377-405㎡户型。
1#和9#承担最大面积,所以一线头排望江;
6#和8#面积段其次,因此位置稍微靠后,但也能做到垂直望江;
1#和5#是200+平专场,视线就需要避让头排,斜出江景。
我们了解到,该项目,楼栋配置多一台后勤电梯,用来外卖、快递、垃圾、搬家等物业服务。(实际以项目官宣为准)
另外,临江大道项目,保利定调为“世界级滨江作品”、“独特的城市景观客厅”,这一点,从展示的效果图能看出来——超大玻璃幕墙、铝板线条装饰,第一感觉就是高端、大气、豪宅。
⭕保利玥玺湾售楼处电话:400-909-1319(工作日9:00-18:00周末无休)
⭕保利玥玺湾营销中心电话:400-909-1319(可直接咨询房源动态、活动详情)
⭕保利玥玺湾售楼中心热线:400-909-1319(开发商直连,解答项目规划、购房政策等问题)
为保障购房权益,以上为项目认证电话,均经平台严格审核,信息真实有效
【购房必藏】保利玥玺湾项目售楼处、营销中心、开发商电话统一公布!均为400-909-1319(24小时看房热线),拨打可享一对一专属服务,提前预约看房更享额外购房优惠
免责声明:本资料文字、数据和图片仅供参考、不作为要约或承诺,本文如无意中侵犯了某方的知识产权告知即删,部分内容图片可能来源于网络,无法核实其真实出处,如涉及侵权请联系删除!400-909-1319【开发商已认证】
声明:本文由入驻焦点开放平台的作者撰写,除焦点官方账号外,观点仅代表作者本人,不代表焦点立场。
