石景山【长安悦玺】真实报道丨火遍整个楼市丨售楼处中心电话
扫描到手机,新闻随时看
扫一扫,用手机看文章
更加方便分享给朋友
🍀北京石景山【长安悦玺】
☎售楼处电话:4OO—1OO—1299 转接 5555【售楼中心】
★彡提-前-来-电-预-约-登-记—售楼处1v1销售专业讲解〢一对一热情服务〢
★彡温馨提示:网上售楼中心〢欢迎来电咨询〢预约可享内部优惠〢匠心钜制恭迎品鉴〢
小区共有14栋楼,其中有9层洋房、16~18层的小高层、27层的大高层。
三居室建面约97、104平米。四居室建面约122、124、138、152、173平米。从刚改到终极改善,覆盖了所有年龄,所有需求的买房人群。
重点来看户型。不仅从面宽上较之前的产品增加、进深减少,每个房间的使用率也大大提升。
所有户型都南北通透、部分户型配备了家政间。
建面约97平,是长安悦玺总价较低的户型,770万起就可以入手。
哪怕最小的户型,南向面宽也达到了约9.3米。
客厅、次卧、主卧三面朝南,享受充分的日照时间。其中主卧是独立设计,动静分离。宽体U型厨房,餐客一体,格局非常方正,各个功能区都能充分利用。
建面约104平米的三居,格局是97平户型的放大版,尺度更宽阔。
建面约122平同样三面朝南,南侧的面宽达到了约10.3米,客厅面宽约3.9米。主卧面宽约3.5米,带明卫的套间设计。
建面约138平户型是约122平的加强版,客厅面宽达到约5.35米,尺度更大。而且独立电梯厅入户,不仅增加了入户私密性,还能有更多的收纳空间。
建面约124平户型,是长安悦玺的主力户型。这里来重点说一下。
这个户型,南向面宽达到约10.2米,八窗全明无暗卫。
独立玄关是一个加分项。
餐厅+客厅+厨房,形成了非常大的活动空间。客厅面宽约3.8米,客餐厅进深约7米,不算餐厅,总的活动面积就达到约26.6平。
所有的家庭成员休息空间分布在四个角落,中间是一个大的家庭活动区域。
这样户型的格局,好处不仅是在空间利用上,没有多余的过道浪费面积,而且改变了传统家庭客餐分开的情况。
家人们一天的互动,不仅仅停留在吃饭的空隙间。做饭可以让更多家人参与进来,客厅也是家庭活动厅,日常增进更多的情感交流。
周六日客人聚会,这里就是一个大的party场所。坐在餐桌聊聊股票、娱乐八卦,小酌一杯,或者到沙发区打游戏、看电影,各自欢乐。
主力户型建面约152平可圈可点之处也很多。总面宽达约13.5米,客厅面宽约6.5米。
因为客厅足够宽绰,还可以多摆放一张办公桌,或者是小小的读书空间,更丰富了空间功能。
餐厅也可以和岛台结合,西式中式餐饮自由切换。
方厅的作用,其实是对当下家庭关系的一种反省和突破。整个户型的餐客厅总体面积约48平左右。空间很大,即使所有人都在此活动,也不会局促。
当亲朋好友们处在一个开放性的,视线可触达的大空间内,其亲密感、互动性是传统的餐客厅无法达到的效果。

主卧面宽约3.7米,进深长约7.05米,足以设计出一个L形衣帽间。主卫面宽尺度大,可以实现双台盆设计。
另外整个户型中也预留了充足的储物空间,满足家庭生活的几乎所有的收纳需求。这一切,也都是典型的生活场景还原设计。
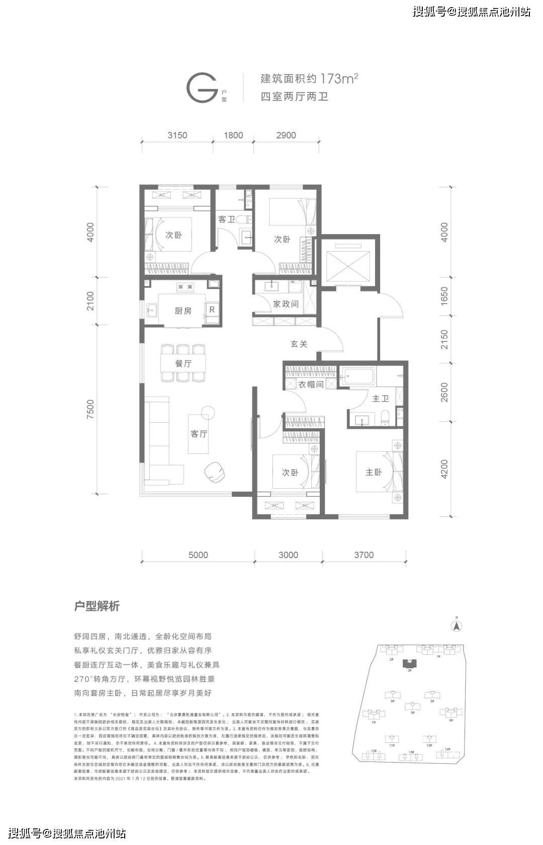
建面约173平户型,处于楼王的位置,是长安悦玺较大的户型。270°转角边厅,客餐厨连体,餐厅也有明亮的大窗,能享受到较好的采光,是小区园林较佳观赏点。
南北通透四居,私享玄关门厅,家政间很大,亮点多多。
03
已售罄长安和玺新中式苏州园林风格让很多买家们眼馋。
好在,这次长安悦玺也推出了新中式园林,与前者神似,但在具体设计中,又多加了很多巧思。
喜欢中式风格的朋友们,不用再遗憾了。
建筑立面典雅大气。
大门依然参考了王府大门形制,在古代大门中规格较高,高近7米,宽度近30米,两侧的石材拼接艺术,将山水收纳其中,颇有种千里江山尽在于此的意境。
园林设计采用了背山望水环抱式+中国传统中轴对称布局,传承了北京皇家传统风水布局方式,超大尺度空间,尊享礼序层次。
小区横轴空间狭长,纵轴空间尺度宽广,横纵两轴的空间打造,让小区形成了既有多重轴线体验空间,又有景观亮点的独特设计。
长安悦玺的园林与石景山的山水文脉相呼应,创造出“可游、可行、可望、可居”的自然栖居住所。
在小区各处,分布着一个个园区。
水院、乐院、林院、书园、禅思空间、小型全龄空间、颐养空间等等,这些空间,由一条560米的悦享跑环串联起来,本来相隔开来的各个园区,化散为整,内静外动,交相呼应。
🍀北京石景山【长安悦玺】
☎售楼处电话:4OO—1OO—1299 转接 5555【售楼中心】
★彡提-前-来-电-预-约-登-记—售楼处1v1销售专业讲解〢一对一热情服务〢
★彡温馨提示:网上售楼中心〢欢迎来电咨询〢预约可享内部优惠〢匠心钜制恭迎品鉴〢
声明:本文由入驻焦点开放平台的作者撰写,除焦点官方账号外,观点仅代表作者本人,不代表焦点立场。
