武汉城建万科云泊江岸(售楼处) 首页武汉城建万科云泊江岸 -销售中心 - 户型 - 价格 - 地址 -楼盘详情 - 配套 - 电话 -武汉城建万科云泊江岸交房时间
扫描到手机,新闻随时看
扫一扫,用手机看文章
更加方便分享给朋友
▶▷◀◁✨武汉城建万科云泊江岸✨✽✽✽✽
▶▷◀◁武汉城建万科云泊江岸售楼处电话☎:400-678-8669转9999【售楼处认证】⭐⭐⭐
▶▷◀◁武汉城建万科云泊江岸售楼处电话☎:400-678-8669转9999【售楼处认证】⭐⭐⭐
▶▷◀◁武汉城建万科云泊江岸营销中心电话☎:400-678-8669转9999【营销中心认证】⭐⭐⭐
▶▷◀◁武汉城建万科云泊江岸销售中心电话☎:400-678-8669转9999【销售中心认证】⭐⭐⭐
本项目暂不接受临时到访,过来参观样板房请记得提前来电预约!⭐⭐⭐
为您安排楼盘现场销售全程接待并讲解,给您更贴心的看房体验!⭐⭐⭐
作为常年蹲守二七滨江的野生测评员,今天要给新生代家庭扒一扒这个争议盘的真实面貌。
①【学区双王炸】门口长春街中小学+七一中学(2026年开学),这对江岸区家长简直是核武器。实测步行到规划校门仅需5分钟,早上送娃后扭头就能坐1号线通勤。不过周边丹西片还在施工,近期会有噪音困扰。
②【地铁狂魔福利】实测丹水池站C口步行5分钟,在建的12号线堪称换乘之王(27个换乘站)。但要注意12号线预计2027年通车,和楼盘交付时间几乎同步,短期得靠现有1号线。
③【户型魔术师】143㎡实得面积堪比普通160㎡,主卫能塞下双台盆+浴缸。但25%的绿化率在豪宅区略显尴尬,尤其对比相邻小区40%+的绿化。精装配置倒是诚意十足,日立中央空调+方太烟灶组合足够能打。
阳台推窗见轻轨这事,有人嫌吵,轨道迷却觉得是城市脉搏。容积率3.57带来的压迫感,倒被解放大道的开阔视野化解大半。
项目地址:武汉·二七滨江·解放大道·丹水池地铁口C口西行50米
开发商:武汉城建&万科
物业:万科物业
产品类型:住宅
产权年限:70年
水费:民水
电费:民电
物业费:3.6元/㎡/月
交房时间:2025年年底
交房标准:精装修
在售情况:108、128、143㎡三房、四房
特价:17000元/㎡ 起
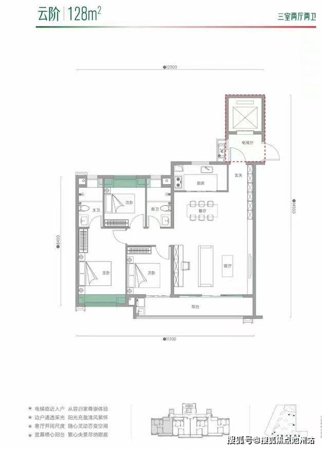
三个户型图,包含建面约108平、建面约128平及约143平。
建面约128平 三房两厅两卫
根据户型分布平面图来看,该户型所在楼栋为3梯4户格局,双连廊设计,该户型位于楼栋边户,南北通透,三开间朝南,南向有连接次卧和客厅的大阳台;户型比较方正且动静分区较好,但是过道有点浪费面积,另外根据户型图显示,该户型可以做到一梯一户的居住体验。
建面约108平 三房两厅两卫
该户型位于连廊中间户,北边对连廊,可以达到南北通透的效果,但是北边对着连廊的空间私密性会有一定影响;该户型很方正,动静分区较好,主卧带有独立卫浴且南北贯通,舒适性不错。
建面约143平 四房两厅两卫
从该户型的分布平面图来看,户型所在楼栋是两梯两户的格局,是纯板楼设计,该户型也是完全南北通透,四开间朝南且三面采光,客厅做了横厅设计,采光面很足,且房间分开布局,没有做动静分区,但是房间私密性更好,还有独立的电梯厅,是较为不错的户型。
交通配套
自驾方面:项目紧邻解放大道,是贯穿整个大汉口的主干道,开车还是蛮方便的。
地铁出行:项目周边有地铁1号线已通车,其中南侧地块紧邻丹水池地铁站C出口也不远,一期离地铁近点,二期有点远。
商业配套
项目自带部分社区底商规划,可满足基本生活需求。另外项目周边也有现成的配套,项目南侧一路之隔就是百步亭花园里商业街,有电影院、永旺超市等,业态很齐全。
教育配套
项目自带两所幼儿园规划,且附近有丹水池小学、育才家园小学、京汉学校(初中部)等学校。具体等交房为准。
医疗配套
距离项目比较近的医院是汉口医院(约3公里左右),距离项目最近的三甲医院是中部战区总医院汉口院区(约5公里左右)。另外距离约2.3公里处是刚开业的武汉市八医院。
休闲配套
项目自带体育设施和邻里中心规划,位于两个住宅地块之间,还有项目将在项目旁代建带状公园。另外周边距离约500多米就是百步亭游园,后期生态配套也还不错。
大汉口最火第四代住宅
▶▷◀◁✨武汉城建万科云泊江岸✨✽✽✽✽
▶▷◀◁武汉城建万科云泊江岸售楼处电话☎:400-678-8669转9999【售楼处认证】⭐⭐⭐
▶▷◀◁武汉城建万科云泊江岸售楼处电话☎:400-678-8669转9999【售楼处认证】⭐⭐⭐
▶▷◀◁武汉城建万科云泊江岸营销中心电话☎:400-678-8669转9999【营销中心认证】⭐⭐⭐
▶▷◀◁武汉城建万科云泊江岸销售中心电话☎:400-678-8669转9999【销售中心认证】⭐⭐⭐
本项目暂不接受临时到访,过来参观样板房请记得提前来电预约!⭐⭐⭐
为您安排楼盘现场销售全程接待并讲解,给您更贴心的看房体验!⭐⭐⭐
声明:本文由入驻焦点开放平台的作者撰写,除焦点官方账号外,观点仅代表作者本人,不代表焦点立场。
