#✦2025玺玥麓坊『售楼处』电话-首页网站-玺玥麓坊『售楼处』--对口学校-房价/公园-户型图/小区环境/@售楼处电话
扫描到手机,新闻随时看
扫一扫,用手机看文章
更加方便分享给朋友
4001027902
4001027902
4001027902
项目信息
开发商:深圳市宏正达房地产开发有限公司
物业公司:宏发物业
占地面积:9662.66㎡
建筑面积:约7.97万㎡
物业类型:公寓(40年)
总房源:529套
车位数:529个
容积率:6.43
绿化率:30%
交房时间:2024.03.30
在售户型:44-71㎡(公寓)
物业费:7.8元/㎡/月
项目地址:宝安区创业二路与新安三路交汇处
世界前海核芯版图,擎领湾区增长极
大湾区国际门户枢纽地位,对标世界超级城市,大前海总体发展规划,共推区域统筹、功能统筹、陆海统筹、岸线统筹,共建全球先进城区,宝安中心区成为国际化城市新中心,宝安都芯强势崛起,全面接轨前海标准。
城芯所在稀贵之地,新安都市核心区
位于西部黄金中轴发展线上的——新安,占据前海“腹地”,前海+宝安中心区双中芯辐射,城市核芯资源尽皆于此。
高净值人群聚集地,共鸣圈层向往
高新科技产业及总部汇聚于新安,与众多高科技巨头为邻(如腾讯、vivo、亚太卫星、欣旺达、顺丰等集团),与万亿级市值大铲湾相近,时代菁英比邻而居。
项目交通
临靠5号线洪浪北地铁站D出口,向南3站到达宝安中心站,6站到达前海湾站,向北2站到达留仙洞总部基地,7站到达深圳北站;15号线(规划中),联通大铲湾、南山西丽和科技园片区。
除地铁外,项目周边还拥有发达的车行交通网络,构建“三纵一横一环线”的快速路交通体系,三纵为宝安大道、广深公路、前进路,一横为创业路,同时连接北环大道与深南大道,直通南山、福田核心区,一环线为新安环线,环绕整个宝安核心区,交通便捷,可快速到达宝安国际机场、后海深圳湾、南山(高新园)、龙华、福田中心。
项目配套
内部:与住宅区形成互联互通的围合式花园,全龄活动空间—空中景观、绿色休闲步道、儿童天地、休闲架空层、露天游泳池等公配设施,让生活温度融汇于玺玥之间。
另有3200㎡幼儿园、1800㎡公交首末站、600㎡老年人日间照料中心、1000㎡社区健康服务中心、5000㎡地下商业满足生活需求。
商业:与前海共同打造湾区商业中心,沿创业一路、二路,串起欢乐港湾、壹方中心、大悦城、中洲购物中心、万达广场深圳首店等重大城市综合体及商务中心,打造创业路“宝安中央商务带”。
教育:宝安中学、灵芝小学、宝民小学、孝德学校、宝安外国语学校。
休闲:纵享宝中的休闲配套,如海滨广场、宝安体育馆、宝安图书馆、宝安青少年宫、欢乐港湾等地方休闲娱乐。
生态:灵芝公园、新安公园、洪浪公园、宝安公园和尖岗山公园等生态绿境。
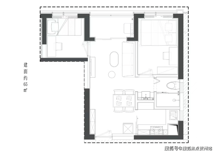
户型鉴赏

44㎡1房

53-56㎡1房


63-65㎡2房2厅1卫


71㎡2房2厅1卫




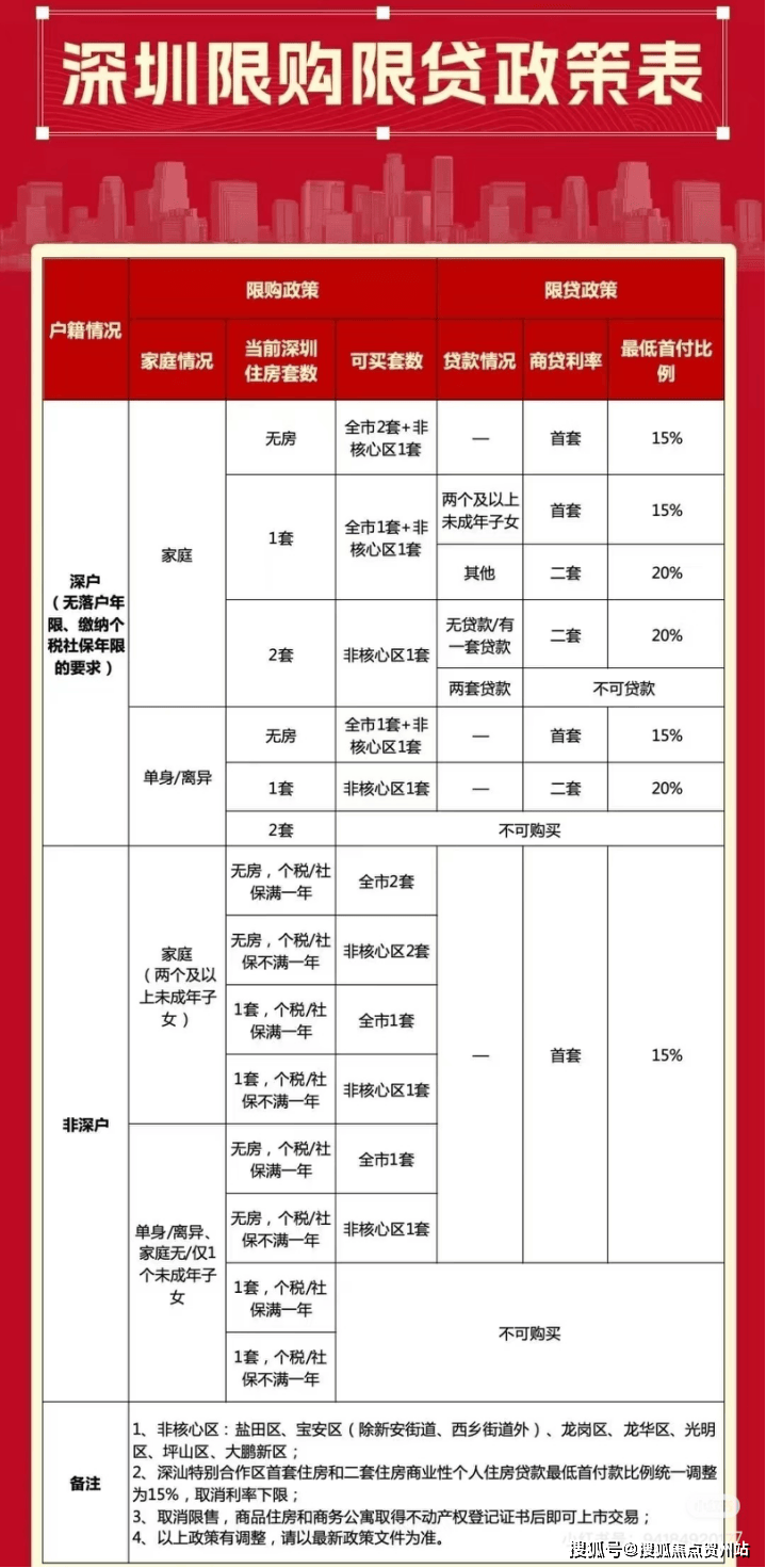
深圳提高住房公积金贷款额度最高额度提高至231万元
财联社3月16日讯,深圳市住房公积金管理委员会3月16日发布《关于〈深圳市住房公积金贷款管理规定〉的补充规定》《关于我市住房公积金利息补贴有关事项的通知》两项文件,两项文件自2025年3月24日起开始实施。
一是调整最高(基础)额度:个人申请最高额度从50万元提高至60万元;家庭申请最高额度从90万元提高至110万元。
二是调整最高额度上浮情形和比例:购买本市首套住房上浮比例从20%提高至40%。多子女家庭购房上浮比例从10%提高至50%。该政策适用于有两个及以上子女的家庭,未成年和成年子女均计算在内。全国范围内有公积金贷款记录的成年子女不计入。新增购买本市保障性住房上浮情形,上浮比例为20%。
同时符合多种上浮情形可累加上浮比例,最高上浮110%,即个人最高可贷126万元,家庭最高可贷231万元。按照往年数据,首套房上浮政策可覆盖90%以上贷款申请职工。
可贷额度提高至账户余额16倍
在前期意见征集阶段,有近10%的意见涉及提高住房公积金可贷额度的账户余额倍数。
为切实回应群众诉求,并充分考量我市住房公积金资金流动性状况,文件将住房公积金贷款可贷额度从原本账户余额的14倍提高至16倍,同时不超过上述最高额度。
可贷额度还需要结合职工的还款能力、还款期限等因素综合计算,最终额度以审批结果为准。
此项调整将进一步保障中低收入家庭、工作年限较短的青年人等住房公积金账户余额相对较少的职工群体,助力他们更多、更快获得住房公积金贷款。
调整最低首付款比例
为充分满足职工刚性和多样化改善性住房需求,重点支持职工购买保障性住房,文件明确,调整我市住房公积金贷款最低首付款比例。
广州打响一线城市配售型保障房申购“第一枪” 1336套房源价格仅为市场价六折
①广州打响了一线城市配售型保障房申购第一枪;
②广州推出首批1336套配售型保障房房源,价格基本上为周边在售商品房价格的六折左右,但将实行3年期封闭管理。
3月21日,广州正式启动首批配售型保障房的申购意向预登记工作。此次广州推出首批1336套配售型保障房的房源,分别位于黄埔区的萝岗和苑(936套)和白云区的嘉翠苑(400套),销售基准价分别为15800元/平方米、17300元/平方米,均为现房认购。
“这是广州推行配售型保障性住房制度以来,首批面市的产品。广州正式启动首批配售型保障房申购意向预登记工作,成为全国首个推出此类住房措施的一线城市。”广东省住房政策研究中心首席研究员李宇嘉表示。
“从本次将推出的配售型保障房项目来看,价格基本上为周边在售商品房价格的六折左右,这对于在广州工作的普通工薪群体具有较大吸引力。”中指院华南分院研究主管陈雪强表示。
虽然在价格上具有较强吸引力,但同样需要注意的是,广州配售型保障性住房是面向本市户籍住房困难家庭和各类引进人才等工薪收入群体销售的保障性住房,并实行3年期的封闭管理,禁止以任何方式违法违规将其变更为商品房流入市场。
其共有两种模式退出:一是回购模式,回购价格为建设运营机构按照原购房价格每年扣减1%计算;二是内部流转模式,出售(对象为合资格申购者)价格不得高于原购房价格。
就价格问题,分析师指出,这部分房源对商品房市场冲击比较小。
“这其中的原因在于,从现有购买群体来看,即便这部分人群不去购买配售房,也不会去买商品房。同时配售房的户型面积较小,大部分房源面积都低于90平方米。购买配售房以后,可以降低他们的住房消费成本,以低成本体面的方式在广州扎根,也为后续购买商品住房,以及实现住房消费升级奠定了基础。”李宇嘉称。
一位房地产分析师表示,广州在配售型保障房方面,具有较为丰富的土地及房源支持。按去年披露的信息,广州配售型保障房项目供应,在土地及房源方面至少有三类来源,包括存量转换、新开工和“按需定建”,充分体现了“人房地钱”几项要素在相应机制运作下,支撑配售型保障房的导向。
声明:本文由入驻焦点开放平台的作者撰写,除焦点官方账号外,观点仅代表作者本人,不代表焦点立场。
