唐镇新盘「华侨城·纯水岸」预计本月开放售楼处!项目效果图曝光
扫描到手机,新闻随时看
扫一扫,用手机看文章
更加方便分享给朋友
新房空窗了有一段时间的唐镇今年会有什么新房入市呢?这是很多想在浦东置业的朋友非常关注的问题。
唐镇的规划定位是上海第4个国际住区,今年至少有4000套+新房将入市。

较新消息,唐镇华侨城项目确定推广名为“华侨城·纯水岸”,预计在下半年入市。
唐镇镇北社区PDP0-0404单元D-04-06地块早在2016年就曾经公开出让过,因为意外中止出让而一直“雪藏”,长达4年之后的故地重开,由华侨城竞得。

目前该地块已确定了推广名为华侨城·纯水岸。预计4月开放售楼处!
较新效果图曝光👇






效果图
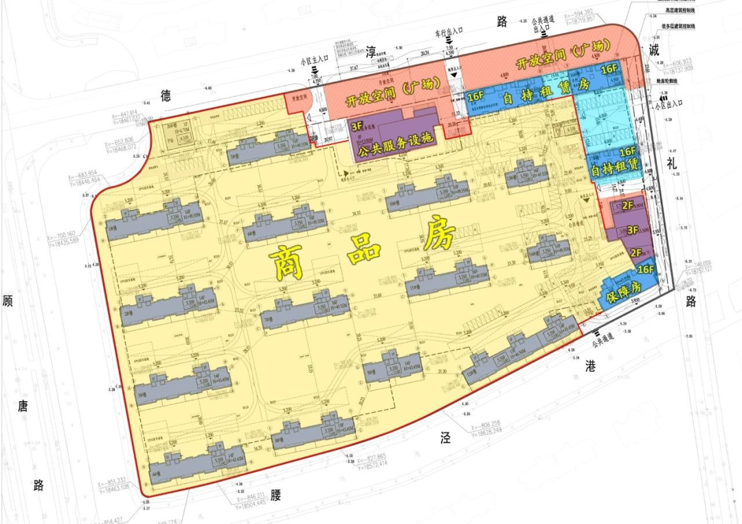
商品住宅部分由8栋16F住宅、1栋15F住宅和5栋14F住宅组成,预计将供应788套房源。

地块规划图
地块东至诚礼路(东方幼儿园诚礼部),南至姚泾港(大名城紫金九号二期),西至中心河/顾唐路,北至德淳路(大名城紫金九号一期)。距离地铁2号线唐镇站直线距离约1.6km。
该项目将推出建面约94-152㎡的户型产品,满足刚改及改善家庭的需求。
建筑面积约94㎡3房2厅2卫👇
建筑面积约118㎡3房2厅2卫👇
建筑面积约133㎡3房2厅2卫👇
建筑面积约152㎡4房2厅2卫👇
项目优势:
和周边已经成型的三兄弟无缝衔接,继续打造高品质社区氛围
项目劣势:
和三兄弟一样缺乏配套设施,出门只能依赖自驾,到地铁距离有点远,约1.6km的直线距离!

地块位置图
项目周边将构建约2万方的邻里中心,设有菜场等,方便周边居民购物。周边最近的大型商业中心有阳光城MODO、恒生万鹂广场等。
阳光城MODO实景图
声明:本文由入驻焦点开放平台的作者撰写,除焦点官方账号外,观点仅代表作者本人,不代表焦点立场。
