【嘉实紫玥观宸】售楼处电话—嘉实紫玥观宸百科详情【嘉实紫玥观宸售楼部24H预约热线】—实时动态--最新价格-嘉实紫玥观宸户型图-容积率
扫描到手机,新闻随时看
扫一扫,用手机看文章
更加方便分享给朋友
⭐嘉实紫玥观宸
⭐嘉实紫玥观宸售楼处电话☎:400-681-7288转接1111【售楼处已认证】
⭐嘉实紫玥观宸开发商电话☎:400-681-7288转接1111【售楼处已认证】
⭐嘉实紫玥观宸营销中心电话☎:400-681-7288转接1111【售楼处已认证】
✅本项目暂不接受临时到访,过来参观样板房请记得提前来电预约!
✅为您安排楼盘现场销售全程接待并讲解,给您更贴心的看房体验!
紫玥观宸位于高铁片区青年创业园区范围内,属于裕华区。具体位置位于建通街与仓裕路交口西北角,与紫玥一期隔建通街相望。目前这里建设的不错,路宽人少,交通便利,通达性高。

用地四周围了一圈城市绿地或者绿化带,这倒是不错的。可地块挨着建通街和南二环(会有噪声影响,尤其南二环),但是真正的贴临道路的边却很短。这样一来会有一个问题,交通组织不便,未来出行可能会有局部的压力。

地块周边万科紫台、紫院、紫玥一期、盛邦花园、塔谈等等,加上高铁片区修路、各种建设。周边居住氛围还是很成熟的,区域配套算可以吧。城市界面也不错,整体周边情况良好。(据说受某某事件的影响,学校不如一期了是吧?那就再不要学区,纯居住的情况下,还是很不错的选择的)
项目用地面积5.2万平,总建面14.17万平,住宅地上面积10.2万平。容积率2.0,规划户数828户(2484人)。共设计7栋15/18层高层,10栋7到11层洋房,共17栋住宅楼。(因为主打性价比,在单价不会过高的情况下,典型的尽量多出洋房,利用洋房高层的差价尽可能产生更多的货值)(比一期贵了又是另一方面了,要是能保持一期的价格那就更香了,毕竟少了个学校了啊,社区规模啥的倒是更成熟了)


用地形状不规则但是整体算他方正吧。至少这个形状对于总图布局来说,还算不错的,没那么膈应人。通过总图可以看出来,刚才说的临路面太少的问题。南边一小段(约100米)对着仓裕路,其他都不临路了,除了西侧有条20米宽规划路。不过也还好,周边道路都是互通的。主入口和有耳环入口在南侧仓裕路,次入口在西侧规划路。地库入口两条路一边一个(也没得选)。另外这个小区在南侧主入口前规划了30辆地面停车位,我觉得这样挺好的,地面上有几个临时停车的地方,总归是方便,哪怕是访客车位都挺好,主要是方便。但是后续项目地面停车都不允许了,都要求全部地下停车了,地面上倒是干净了,但是有个朋友亲戚来,或者自己临时停个车,总感觉不太便利。(当然有车位你也不一定抢的上这另说啊)
刚才说到了小区离南二环、建通街太近,可能有噪声,所以规划上就在北边和东边规划了高层住宅,作为屏障,隔绝噪声。内部全是洋房,这也算一种应对策略吧。
装配式是2#、3#、5-8#共6栋。
立面之前放过,移步这里→项目对比之石家庄新楼盘立面大比拼,谁才是你心中那个TA?
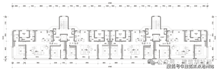
户型上说两句。这个项目户型有赠送,但是时间早,只有设备平台和飘窗赠送,没有入户花园。而且高层户型是那种每个单元一个电梯,14层中间有一个连廊那种(仅14层,之前也说过这种交通核)。这种交通核特点就是牺牲14层中户两户,造福全楼(公摊小),但是就一个电梯,万一坏了不好整,爬14层?但是我还是认可这种交通核的,之前说过现在不多说了。户型放两个吧,126和159+129,还是那句话,有需要再单独问吧。户型整体不错,但是毕竟不如后来那一批最新政策下催生的产品,谁又能比得过政策呢。



⭐嘉实紫玥观宸
⭐嘉实紫玥观宸售楼处电话☎:400-681-7288转接1111【售楼处已认证】
⭐嘉实紫玥观宸开发商电话☎:400-681-7288转接1111【售楼处已认证】
⭐嘉实紫玥观宸营销中心电话☎:400-681-7288转接1111【售楼处已认证】
✅本项目暂不接受临时到访,过来参观样板房请记得提前来电预约!
✅为您安排楼盘现场销售全程接待并讲解,给您更贴心的看房体验!
声明:本文由入驻焦点开放平台的作者撰写,除焦点官方账号外,观点仅代表作者本人,不代表焦点立场。
