佘山曼荼园售楼处电话是多少?售楼处火了位置及详情?较新价格!
扫描到手机,新闻随时看
扫一扫,用手机看文章
更加方便分享给朋友
上海松江<<佘山曼荼园>>
☎☎售楼处电话℡:400-100-1299 转接 9999
81栋建筑-81件艺术品
81种风格-81页风景
81个外观专利-栋栋不同
件件传世 让家变成艺术之家
佘山正南-画境园林-大师独墅
依山傍水-静驻时光的臻藏
在售房源3套 定金200万
总价约:4782~6800万
项目基础信息
【建筑面积】约316-667㎡
【花园面积】约1317-1515㎡
【产品类型】独栋别墅,70年住宅
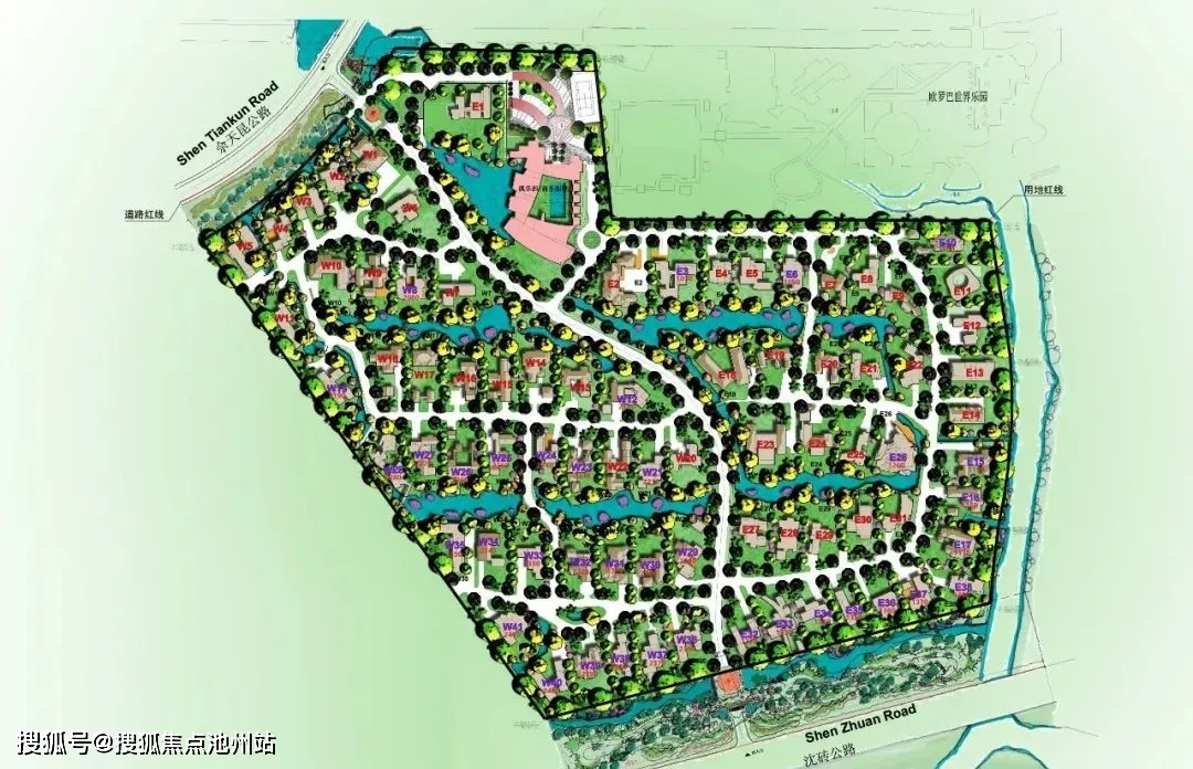
【总共户数】81栋(首推 栋)现房
【绿 化 率】78%
【容 积 率】0.2
【单价约】8—10万元/㎡
【总价约】4782-6800万
【车位】自带地面车库,可停2-3个车位
【交付标准】毛坯
【交房时间】现房-款清交房
【物业公司】恒豪基业
【物 业 费】11.8/㎡/月(产证面积全额)
【开 发 商】嘉凯城集团
81件人居艺术藏品
谨献81位贵胄人士
【曼荼园】由79幢别墅、2幢商务别墅构成,建筑面积约61715平方米,积率仅为0.2。它集合了全球十家著名建筑师事务所100多位设计师巧思,100%原创,历时8载,设计费用达1.5亿,从设计到建造的过程,每一步都精雕细刻,每一个元素都讲究原创性和少有性,更有建筑外观专利保证;81件人居艺术藏品,谨献81位贵胄人士品鉴。
【曼荼园】被称为可以居住的艺术品,它不仅仅只是一处住宅,更是一处值得珍藏和流传的艺术品,而它的艺术价值绝非偶然,而是集人文、自然之精华所成。
【曼荼园】是佘山核心区最后一个上市的别墅项目,是抢占佘山山水资源的最后机会
在世界范围内严格甄选的10家全球优秀设计师事务所,100多位世界先进设计师
100%尊重原创:为了确保建筑原创设计的艺术精髓,曼荼园建筑施工中的每个细节都会经过精细计算,有时就是一片瓦,也要与设计师经过11次确认之后,才会使用
【曼荼园】的建筑和景观设计是同步的——在设计中,设计师将景观设计领域的方法、技术、工艺融入到建筑设计中去,并进行全方位的空间整合——从宏观到微观,从大尺度的意象整合到小尺度的细部呼应,建筑与景观都应协调地融合于一体,并共同处于一个稳定的有机系统中
为了一片适合建筑原创设计的瓦片,曼荼园工作人员四处寻找相关的制作工艺,并邀请专业技术人员进行科研开发;
三重安防,滴水不漏的高科技安保系统——整个园区周围的围墙和景观带均布置了红外线对射系统,而在天然河域,更以无形的的电波形成一道高科技防线,此外在河岸的山体(如南山)上还设置了微波对射系统
项目实景拍摄及户型图
项目实景拍摄如下所示:
项目周边配套
佘山之所以成为上海富人区,周边配套是其中重要因素之一。艾美五星级酒店,天马高尔夫球场、佘山高尔夫球场、深坑酒店、月湖温泉酒店、艾美精品酒、月湖温泉酒店、索夫特大酒店等高端配套环绕四周,月湖雕塑公园、欢乐谷、辰山植物园三大公园尽享休闲与娱乐,这些都使佘山成为富豪名流的向往之地,中凯曼荼园则是佘山富人区中的精品别墅,只为懂得的人。
【交通方面】三横G50-G318-G60 三纵:G15-G1503-嘉松南路
交通地铁:9号线洞泾站约3.2公里、佘山站约3.5公里;
公交:嘉松线(佘山地铁站)、松江92路(佘山地铁站);
交通干道:沈砖公路、佘天昆路、沪青平高速公路、嘉松公路、沪杭高速、A8、A9。
【商业配套】江秋休闲广场 佘山天地休闲广场 开元地中海 松江万达等
【医疗资源方面】松江排名前列人民医院,中山医院天马山分院,松江妇幼保健院,佘山镇社区卫生服务中心
【教育资源方面】 青浦协和双语 松江第二实验小学 宋庆龄国际学校 包玉刚学校 上海赫德双语学校
【周边文旅配套】佘山国家森林公园 广富林遗址公园 月湖雕塑公园 辰山植物园 欢乐谷 玛雅水上乐园 佘山高尔夫等。
上海松江<<佘山·曼荼园>>
☎☎售楼处电话℡:400-100-1299 转接 9999
声明:本文由入驻焦点开放平台的作者撰写,除焦点官方账号外,观点仅代表作者本人,不代表焦点立场。
