三孩生育政策来了,今后买4房成标配?
扫描到手机,新闻随时看
扫一扫,用手机看文章
更加方便分享给朋友
今年六一送给儿童最特别的“礼物”
是“三孩生育政策”空降!
虽然大家对“三孩政策”的争议不少,
但政策毕竟是以自愿原则为前提,
有条件的适龄夫妻算是多了一个选择。
对于大多数不想生的人实质影响并不大。
图片来源于网络
而引发的一系列话题中,
“如何解决居住问题”是焦点之中的焦点,
一条“上海最适合三孩的户型”话题悄然诞生,
房姐本着好奇的心态点进去一看:好家伙!
这不就是曾经火上热搜,
荣登“当日较佳笑点”的奇葩户型嘛!
图片来源于网络
喏~ 就是这个被调侃为“宿舍”的户型,
除了排排站的房间,迷你到不行的卫生间,
还有很长很长的过道,近20㎡浪费面积,
是从厨房端着碗到客厅,饭都凉了的距离。
如今回头看这个户型,确实也有不少优点!
6开间朝南,南北通透,动静分离,
客厅厨房双景观阳台,客厅面宽达到4.5米,
不仅是全明户型,而且采光好到不行,
一条过道就有5个窗户!良心了有木有!!
示意图
最主要的是,这个户型它相对公平啊,
老人一间、父母婴儿一间,两个大娃各一间,
不用权衡谁去睡北边的房间,
也不用考虑谁的空间大了谁的空间小了,
倒也算是蛮贴心的了……吧?!
不管怎么样,政策一出,
上海大户型楼盘营销有了新方向!
今天房姐就为大家精选了些目前上海
拥有4房户型的新房楼盘!
(不完全统计,仅为精选)

1
融创青云壹号
虹口内环内「融创青云壹号」二期已经过会,备案均价10.5万/㎡!二期推出4、5、6三栋高层,建面约103-178㎡高层,共270套。其中建面约163㎡、178㎡为4房户型。

项目效果图
4房户型参考图👇


2
中粮瑞虹·海景壹号
虹口内环内「中粮瑞虹海景壹号」二批次房源已过会,备案均价11.5万/㎡,主推建面约138-192㎡3-4房。
中粮瑞虹海景壹号位于虹镇老街和新港路的交汇处,在“和平公园”正南面。

项目效果图
4房户型参考图👇


3
瑞虹新城·瑧庭
瑞虹新城项目第十期也是最后一期「瑧庭」本批次未轮到,预计7月份取证。
售楼处已经正式开放,户型建筑面积约90、105、114、140、156、170平2-4房,可售套数609套。

项目效果图
约170㎡ 四房两厅两卫👇

4
九庐三期
陆家嘴滨江「九庐」三期还剩152套房源待入市!

实景图
推出建面约90㎡和156㎡各40套、272㎡38套 400㎡32套,另有超级顶复688㎡2套。
4房户型参考图👇




九庐,陆家嘴滨江金融城的住宅部分,由9栋滨江高层景观住宅组成,位于银城路滨江大道路口。
北向距离黄浦江仅百米,距离上海中心、上海环球金融中心和金茂大厦约1.2公里,距离东方明珠约1.5公里,区位优势明显。
5
金鼎首府
浦东金桥板块九宫格内金鼎天地全新住宅「金鼎首府」售楼处已经开放,预计下半年入市。

项目效果图
项目将推509套房源,约90㎡/130㎡/160㎡洋房。
建面约160㎡4房户型参考图👇
6
华侨城纯水岸
“我们这个盘肯定能触发计分制,预估积分可能比较高,65分以下的基本没戏了”。
最近,唐镇的全新盘「华侨城·纯水岸」案场人气火爆,据说7月可能要取证入市了。

售楼处实景图
打听下来销售说累积的客户已经很多,目前看下来项目入围的分数可能要65+!
毫无疑问,这又是一个抢手盘。如果分数比较低的房姐就不建议大家过去凑热闹了...
首批将推出建面约94-152㎡户型,户型面积比较全面,有功能性三房也有改善型四房。
建面约150㎡4房户型参考图👇

7
融信旭辉·世纪古美
项目是目前闵行古美板块内少有的待售新盘,好多购房者都在等这个盘。本次备案均价为8.25万/㎡。
项目南北有9号线、12号线、东侧有1号线、西有嘉闵线,加之中环、外环、沪闵三高架的九星,其交通能级和产业物流能量吊打前滩,也丝毫不逊色于北外滩。

位置图
项目首批建筑面积约89㎡-147㎡的住宅。
建面约147㎡4房户型参考图👇

8
蟠龙天地·云庭
上海蟠龙天地位于大虹桥主城区国际墅区核心位置,紧贴17号线蟠龙路站,进站1站即可到达国家会展中心,2站路即可到达虹桥火车站,然后换乘2号线可直达传统中央商务区静安寺、人广、陆家嘴等地!

项目位置图
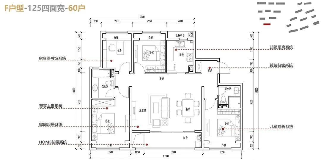
二期「云庭」等待入市,即将推出建面约95-130平2-4房。
建面约125㎡4房户型参考图👇

过程稿,请以开发商实际释出户型图为准
9
万科天空之城·虹之森
大虹桥TOD红盘「万科天空之城」5期虹之森将加推256套建面约110-160㎡3-4房,项目已过会,备案均价约5.86万/㎡。
天空之城5期位于4期「光之丘」北侧,共规划6栋住宅,目前正在施工建造。
此外,4期「光之丘」还有两栋高层尚未入市,因此项目2021年首批次房源将由5期三栋住宅+4期剩余两栋住宅一同入市。

项目效果图
建面约160㎡4房户型参考图👇

10
南山虹桥领峯
嘉定江桥全新盘「南山虹桥领峯」已过会!均价57525元/㎡,即将认购!将推出建面约95-143㎡3-4房.

项目效果示意图
项目地块性质为商住结合,住宅建面占比80%,商业20%,项目规划建设10幢16-18层高层住宅、1幢商业用房和1幢邻里中心。
建面约125㎡4房户型参考图👇
(户型最终户型以开发商公布为准)

声明:本文由入驻焦点开放平台的作者撰写,除焦点官方账号外,观点仅代表作者本人,不代表焦点立场。
