仪征万晟裕源售楼处电话—售楼中心地址—24小时电话—楼盘详解
扫描到手机,新闻随时看
扫一扫,用手机看文章
更加方便分享给朋友
◆◆扬州仪征【万晟裕源】
☎☎℡TEL:400—763—1618 转接67600【售楼中心】
★★网上售楼中心——欢迎来电咨询〢——匠心钜制恭迎品鉴!
◆◆——网上售楼中心—— 欢迎来电预约尊享Vip一对一服务!
配套设施:
1.交通:公交仪征308路(开往谢集客运站至谢集客运站) 仪征309路 仪征19-1 仪征19-2 仪征K30路(开往谢集客运站至市委党校北门) K35路(开往金牛湖地铁站,开往京华城公交首末站)
自驾: 高铁仪征北站毗邻125、353省道可畅达仪征扬州主城 G40沪陕高速到达长三角各地
高铁:本案距离金牛湖地铁S8号线约20分钟; 金牛湖——泰山新村
北沿江高铁:本案距离仪征北站约5分钟;始发站上海宝山区抵达合肥南站
宁扬城际轻轨:本案距离工农路站约18分钟;仙林湖站至扬州西站
2.商业配套;入则宁静,出则繁华,约1公里享3.6万方民国风情商业街,政府规划招商,民生商业,老百姓的新“集市”。约1.2公里直达月塘老街,尊享一站式体验。
3.生态环境;坐拥4A级捺山地质公园景区,紧邻登月湖,尹家河生态公园,天乐湖,约15分钟可达园博园,自然景观资源丰厚。
4.教育资源:月塘中学 月塘幼儿园 谢集中学 谢集小学
5.医疗配套:约5分钟月塘卫生院 约8分钟扬州苏北分院
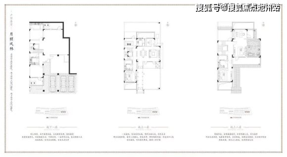
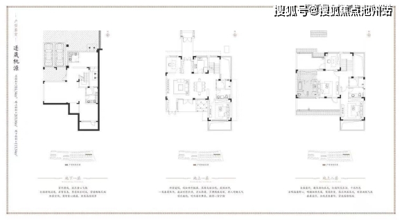
6.户型:约310平-450平(约100㎡-150㎡左右院子)
价格:约290-390万
交付方式:毛坯交付
开发商:万晟地产
物业公司:天乐湖物业
声明:本文由入驻焦点开放平台的作者撰写,除焦点官方账号外,观点仅代表作者本人,不代表焦点立场。
