。◕‿◕。热搜房源:汇城茗苑售楼处电话(汇城茗苑销售中心) -汇城茗苑(热盘)-最新价格-户型图-容积率@2025.10.30
扫描到手机,新闻随时看
扫一扫,用手机看文章
更加方便分享给朋友
最新消息:深圳南山楼盘【汇城茗院】推出最后50套约116㎡全南4房及275/311㎡的楼王顶复,层高7.2米!
超低容积率+地铁口物业+一手现房,按备案价8.9万出售,单价7.8万起,顶复价格需面谈。如需了解更多详情,欢迎咨询汇城茗院开发商售楼处咨询/预约电话:400-880-7297(官方发布)中介请勿扰,过来我们营销中心看房务必记得提前来电预约,预约看房的话最终的价格还能更加优惠。
汇城茗院备案价
汇城茗院位于南山西丽片区,距离7号线西丽湖站不到200米,西北处紧挨着西丽湖。
由4栋高层住宅和12栋联排别墅组成,共380套。其中,112-195㎡住宅348套,约210-300㎡双联别墅28套,楼王复式4套,南北朝向。
图源网络
项目容积率2.6,停车超1:1,三梯四户。高层分布于1栋2单元、2栋2单元。其中112平和120平的户型是3+1房,195平的户型是4+1房。
高层景观不错,南向看大沙河,北向可望西丽湖。遗憾的是高层住区花园不大,社区内的公共配套较为缺乏。
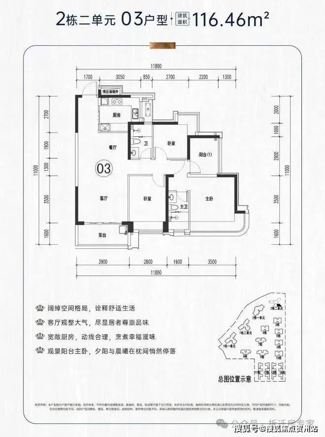
汇城茗院户型图
116㎡全南4房
汇城茗院一期2021年入市,共推出124套,开盘日光,今年4月已经交房。面积段为112-120-195㎡,备案均价8.4万/㎡左右。
二期去年入市,共推124套116平毛坯现房,均价9万/㎡,单价区间7.84-10.32万/㎡,总价区间912-1207万/套。
项目优势:1、距离7号线西丽湖站不到200米:2、2.6的低容积率,居住舒适度高;
3、现房,铝板+玻璃幕墙,品质很高;
4、周边山湖环绕,高层可看湖景、山景。
周边配套情况
教育资源
对口的小学有平山小学,平山小学在2016年被南山区第二外国语收归,不过生源和教学都很一般,中学方面有深圳大学城丽湖实验学校,同样属于中下水平。
交通资源
离7号线西丽湖站不到200米,步行时间4分钟左右。
商业资源
周边缺少大型商场,日常需求依靠自带约2000㎡商业及周边项目底商。另外片区内有超30万平商业集群,离1公里左右有益田假日里5万㎡的集中式商业。
文娱休闲
有麒麟山、阳台山及塘朗山三山景观,及约13.7公里大沙河,距离1.5直线距离外还有西丽湖水库。
声明:本文由入驻焦点开放平台的作者撰写,除焦点官方账号外,观点仅代表作者本人,不代表焦点立场。
