上海宝山区【美兰天地】售楼处电话丨售楼处地址丨24小时电话
扫描到手机,新闻随时看
扫一扫,用手机看文章
更加方便分享给朋友
上海宝山区【美兰天地】
售楼处电话℡:400—763—1618 转接 67600【售楼中心】
网上售楼中心〢欢迎来电咨询〢预约可享内部优惠〢匠心钜制恭迎品鉴〢

(效果合成图)
上海2035规划宝山纳入主城区,随着历史更迭进行结构调整、重新洗牌
新一批划时代意义的城市发展极,由此诞生
未来宝山将全力构筑创新主体活跃、创新人才集聚、创新功能突出、创新生态优良的上海科创中心主阵地。
大力发展大学科技园,全面推进新兴产业创新发展、产城融合创新发展,谱写全面建设更高质量的人民城市新篇章。

(示意图)
天赋热土 | 势启城市新篇
上海作为远东繁华中心,百年来一直走在时代发展前沿,在发展中不断突破城市边界。2035规划,静安北扩,中环北抬,宝山将作为新的城市发展极,承载主城区功能,以北为贵时代即将到来。
产城融合 | 赋能区域进阶
·世界邮轮城
宝山把创新作为引领发展的排名前列动力,坚持打造战略性新兴产业发展新高地、产城融合新示范。以亚洲排名前列、世界第四邮轮母港——世界邮轮港为抓手,通过邮轮母港的功能升级和产业延伸,转型为产城融合的世界邮轮城。
·500亿产业园
宝山坚持以创新引领发展,打造战略性新兴产业发展新高地、产城融合新示范。落址于宝山工业园区核心区域的北郊未来产业园,占地面积达7.4平方公里,是上海市排名前列块出让的研发总部类用地,智能制造、新材料、移动互联网和健康产业等四大产业为支柱产业。目前投入300亿元,今后5年的投资将达350亿元,预计5年内建设完成,建成后的预计年产出将达500亿元。
双强联袂 | 共鸣城市新篇
·上置集团 上海本土企业,成立于1993年,深耕上海多年,业务布局覆盖伦敦、旧金山、香港、悉尼、北京等,1999年港交所上市。
(示意图)
·鸿坤集团 总部位于北京,19年地产开发经验,开发运营项目50+,中国房地产开发企业品牌价值TOP39,连续7年稳坐中国房企百强。

(实景图)
多维配套 | 荟萃沪上精彩
(区位示意图)
本区位图是截止至2021年6月周边规划的大致展示,与现状存在一定差异,仅展示项目的位置关系,不反映各部分之间的距离,受图片大小所限,各部分的比例不完全一致。本区位图系对不特定人群的要约邀请,所有信息及文字仅供参考识别之用,本公司对区位图内容不提供任何承诺和保证,并保留对此区位图修改的权利,敬请留意较新资料。
·商业配套 宝龙城市广场、龙湖北城天街、世纪联华、大润发、美兰湖小镇9万余方风情商业街、国际会议中心,与待进驻的高端酒店
(示意图)
·高端休闲 占地约2000亩,由18次大满贯的世界球王尼克劳斯精心设计的上海主城内的36洞USGA标准球场,拥有“金熊”球王国际高尔夫球场、国际PGA标准球场的美誉
(实景图)
·医养健康 上海美兰湖妇产科医院、华山医院北院(三甲)、罗店医院、罗店镇社区卫生服务中心、罗南社区卫生中心
(实景图)
·轨道交通 1轨(7号线美兰湖站)、1脉(沪太路)、5高速(S7、S20、G1501、S5、S6)
(示意图)
美兰天地 | 中国·上海·美兰湖高尔夫
美兰天地,坐落于旅游景区美兰湖畔,紧邻高尔夫球场,私享城市风光,打造一方水岸秘境。项目运用大面积玻璃墙体,打造无切割方正空间,3-5层玻璃建筑群落,以约0.4容积率散落湖畔。270°寰幕空间设计,置身其中,宛如驾御于果岭之上,是时代层峯人物理想的城市商务行宫。
·项目概况
(效果图)
物业类型:商业办公
用地面积:约153149㎡
建筑面积:约92882㎡
主力户型:177㎡、300㎡、550㎡
容积率:约0.4
绿化率:约50%
产品系:都市系
装修情况:毛坯
车位总数:682
车位配比:1:1.8
(售楼处效果图)
(售楼处实景图)
(售楼处实景图)
项目理念 | 现代极简无界空间
项目规划的设计理念是“心无界,藏天地”。
采用现代极简建筑风格,外立面采用大面积玻璃,做到270°的景观视野,给到客户“室内随心设计,室外无界景观”的独特感受。
项目以极简的设计,自然的渗透,优质的细节打造优质的建筑与景观,以玻璃体的晶透,打破视觉上的隔离,形成一种无界空间,无限延伸的视觉场景,将建筑与环境,融为一体。
(产品效果图)
(实景图)
户型品鉴 |建筑面积约 160--550㎡光之空间
(样板间实景图)
(样板间实景图)
(样板间实景图)
(样板间实景图)
(样板间实景图)
(样板间实景图)
以上图片仅为装修效果展示。软装、家具(或部分家具)、家电(或部分家电)等设施设备非开发商交付标准。买卖标的、户型、实际交付标准(包括但不限于墙纸、吊顶、背景墙等)、设施设备配置等以买方与开发商签订的《上海市商品房预售/出售合同》约定为准。开发商在法律规定的范围内保有解释权。
A产品|整栋建筑面积约560㎡
(效果图)
(效果图)
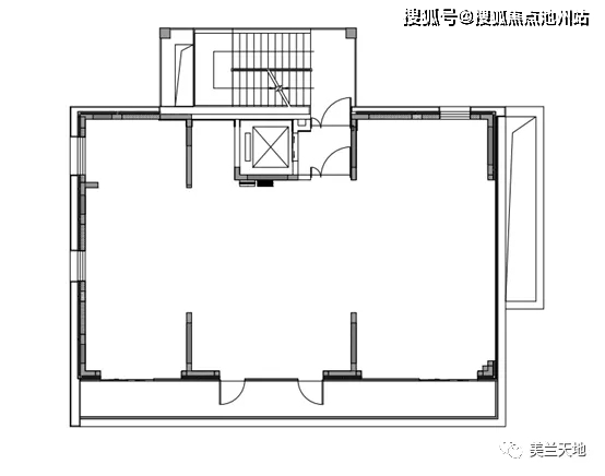
A产品一层平面图|建筑面积约168㎡
(户型平面图)
此户型对应编号为137幢56号1F,具体户型会因装修、楼栋、楼层、单元、朝向等差别,使局部结构、面积、部分窗扇位置及大小、墙壁大小及电器安装位置等略有不同。实际交付标准以买方与开发商签订的《上海市商品房预售/出售合同》约定为准。
A产品二层平面图|建筑面积约194㎡
(户型平面图)
此户型对应编号为137幢56号2F,具体户型会因装修、楼栋、楼层、单元、朝向等差别,使局部结构、面积、部分窗扇位置及大小、墙壁大小及电器安装位置等略有不同。实际交付标准以买方与开发商签订的《上海市商品房预售/出售合同》约定为准。
A产品三层平面图|建筑面积约194㎡
(户型平面图)
此户型对应编号为137幢56号3F,具体户型会因装修、楼栋、楼层、单元、朝向等差别,使局部结构、面积、部分窗扇位置及大小、墙壁大小及电器安装位置等略有不同。实际交付标准以买方与开发商签订的《上海市商品房预售/出售合同》约定为准。
C产品五层平面图|建筑面积约173㎡

(效果图)

(户型平面图)
此户型对应编号为150幢 86号5F,具体户型会因装修、楼栋、楼层、单元、朝向等差别,使局部结构、面积、部分窗扇位置及大小、墙壁大小及电器安装位置等略有不同。实际交付标准以买方与开发商签订的《上海市商品房预售/出售合同》约定为准。
D产品四层平面图|建筑面积约161㎡

(效果图)

上海宝山区【美兰天地】
售楼处电话℡:400—763—1618 转接 67600【售楼中心】
网上售楼中心〢欢迎来电咨询〢预约可享内部优惠〢匠心钜制恭迎品鉴〢
声明:本文由入驻焦点开放平台的作者撰写,除焦点官方账号外,观点仅代表作者本人,不代表焦点立场。
