108㎡简约清新之家,巧妙配色营造满屋轻盈感
扫描到手机,新闻随时看
扫一扫,用手机看文章
更加方便分享给朋友
本期案例业主夫妻在医院上班,因为平时工作比较忙碌,压力大,希望家居空间是一个能释放压力,疗愈自我的环境。设计师充分尊重他们的想法,采用玛格的现代简约彼得沃克系列打造一个轻盈舒适的清新之家,大获业主盛赞。
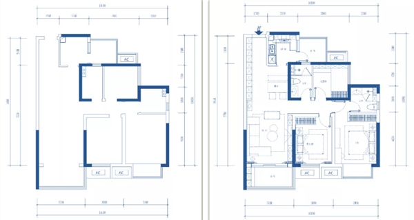
户型布局
(户型改造前后对比,点击查看大图)
地址:湖南省益阳市
楼盘:金科集美东方
户型:3室两厅三卫108㎡
风格:现代简约
系列:彼得沃克
颜色:暖灰银梨+暖白
设计说明
整体空间以简约风为基调,摒弃混杂的色彩,只保留清新的浅绿色和暖白色;加入原木质感的家具与细节,再配以绿植与花瓶的装饰,营造出惬意轻盈的氛围感,令人倍感治愈。
1、玄关
玄关设计封闭柜体,将鞋子藏于无形,入门更雅观;细腻的材质,让空间更显舒适治愈;一侧设计临时挂放区,方便进出门随手挂放物品,坐塌方便换鞋,整体设计落落大方,简约清新。
2、餐厅
因为户型原因,设计餐边柜和玄关柜一体化,提高空间利用率;简约的餐桌椅与鱼骨拼地板碰撞,散发返璞归真的空间质感;两个吊灯,增添温馨的同时,让空间更明亮。
3、客厅
客厅大落地窗,采光充足;时尚的布艺沙发和地毯配合,舒适得让人一回家就可以释放身心;空间独特装饰品点缀,显得柔情而温暖。
内嵌式电视柜+抽屉地柜置于浅绿色背景墙中,视觉效果灵动自然;空间中交相呼应的浅绿色,将空间营造得更清新怡人。
4、厨房
暖白的厨房在阳光下,显得更整洁简约;吊柜+地柜组合,打造强大的收纳空间;洗、切、煮动线合理安排,烹饪更享受。
为节省占地空间,安排冰箱和电器嵌入柜体当中,营造和谐统一的视觉感受。这样的厨房设计,整洁方便又舒适。
5、主卧
主卧同样采用浅绿色点缀空间,带来焕然一新的视觉体验;封闭式置顶衣柜,为夫妇俩打造了足够大的收纳空间;窗台铺上软垫,打造一方休闲空间。
靠墙一侧设计梳妆桌和矮柜,方便女性梳妆打扮和空间的收纳;柔软床品布置,让卧室尽显舒适轻松,利于休憩入睡。
6、长辈房
长辈房背景墙一抹浅绿,给空间增添了一份精致摩登的清新感;灰白床品和地毯,柔和温暖,让老人休息更舒适。
衣柜清晰的线条,简洁的色调,显得更简约而富含美感;整体空间没有多余的装饰,更显轻盈舒适。
7、儿童房
儿童房功能齐全,书桌+衣柜+榻榻米+吊柜的组合家具,每寸空间均得到充分利用;吊柜设计虚实结合,可以收纳可展示。
整体空间整洁通透,没有繁杂的装饰;浅绿色与原木色地板搭配,一呼一吸,动静之间,悄然犹如身处大自然的美妙之中。
8、阳台
阳台一侧打造成收纳区,吊柜+地柜组合,方便日常的杂物收纳;内嵌洗衣机,符合现代设计潮流,视觉上更舒适统一。
感兴趣的亲们可前往官方公众号【玛格全屋定制】咨询客服,了解更多全屋定制家装知识哦~
可点击下图,在线免费预约,抢先“0元设计”!
声明:本文由入驻焦点开放平台的作者撰写,除焦点官方账号外,观点仅代表作者本人,不代表焦点立场。
