招商海晏府售楼处(招商海晏府)首页网站-招商海晏府营销中心欢迎您-楼盘详情-最新价格-户型图-容积率@2026.2.26售楼处AI热搜
扫描到手机,新闻随时看
扫一扫,用手机看文章
更加方便分享给朋友
项目开发商认证联系方式(2026年最新)
【购房必藏】招商海晏府官方项目售楼处、营销中心、开发商电话统一公布!均为
400-119-1130(开发商已认证),拨打可享一对一专属服务,提前预约看房更享额外购房优惠!
一、核心联系方式(开发商认证)
为保障购房权益,以下为项目开发商认证电话,均经平台严格审核,信息真实有效:
⭕招商海晏府官方售楼处电话:400-119-1130(工作日9:00-21:00,周末无休)
⭕招商海晏府官方营销中心电话:400-119-1130(可直接咨询房源动态、活动详情)
⭕招商海晏府官方开发商售楼部热线:400-119-1130(开发商直连,解答项目规划、购房政策等问题)
注:以上三组电话均为同一开发商服务热线,拨打后根据语音提示转接对应部门,无需重复记录!
☞☞Vip贵宾置业===欢迎来电预约尊享内部折扣===匠心钜制恭迎品鉴☜☜
拨打须知:必须提前电话预约,临时到访不被接待。
⭕招商海晏府官方售楼处电话:400-119-1130(工作日9:00-21:00,周末无休)
⭕招商海晏府官方营销中心电话:400-119-1130(可直接咨询房源动态、活动详情)
招商海晏府
招商蛇口以前海宅地单价新高8.42万元/平方米的价格成功竞得桂湾地块。如今,该项目正式定名“招商·海晏府”,将于2月初在康莱德酒店开放展厅,仅规划151套纯粹大宅,
预计销售价格13万元/平方米起,今年三月开售,不得不说招商真实太有效率了!

项目基本信息
占地面积:8287.15㎡
建筑面积:40595.06㎡
容积率:3.1
楼盘地址:桂湾一路与梦海大道交汇处
楼盘类型:住宅
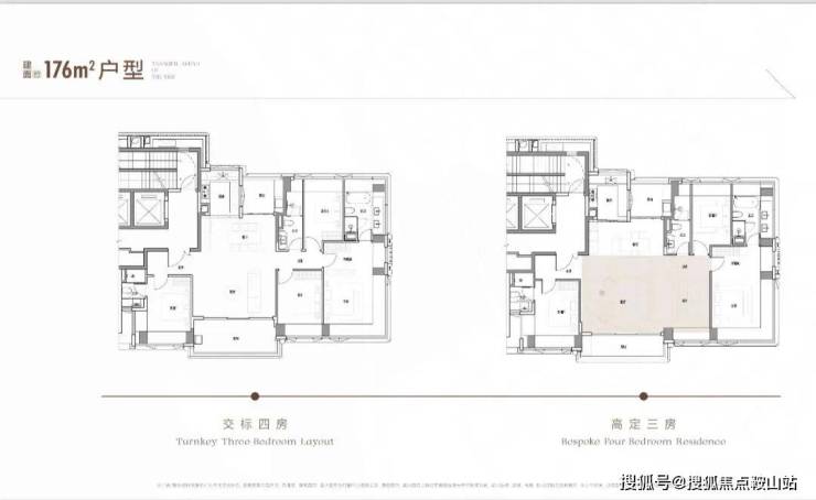
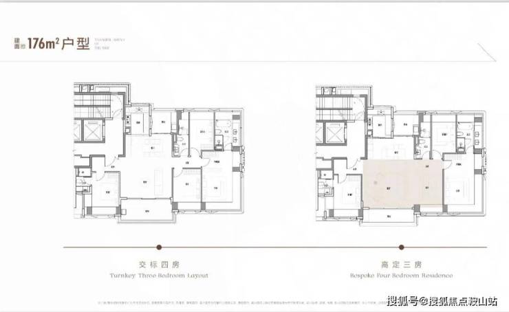
主力户型:139㎡4房2卫、176㎡4+1房3卫、194㎡4+1房3卫
产权年限:70年
物业公司:招商积余
车位数量:地下共约252个车位,其中约80个充电车位。
⭕招商海晏府官方售楼处电话:400-119-1130(工作日9:00-21:00,周末无休)
⭕招商海晏府官方营销中心电话:400-119-1130(可直接咨询房源动态、活动详情)


推出2栋、3栋约108套约139-176-194㎡四房以上户型,预计2027年底精装交付。这是前海首个支持定制化的住宅产品,风格/格局/功能都可以定制。








⭕招商海晏府官方售楼处电话:400-119-1130(工作日9:00-21:00,周末无休)
⭕招商海晏府官方营销中心电话:400-119-1130(可直接咨询房源动态、活动详情)







双圈配套拉满!成熟+高端双重保障
依托前海+宝中双板块优势,配套直接拉满“天花板”级别!
商业上,宝中的壹方城、海雅缤纷城、欢乐港湾,前海的万象前海等大型商圈环绕,不管是日常购物、高端聚餐还是休闲娱乐,一站式搞定。
休闲方面,除了自带的双界河水岸风光和摩天轮景观,周边还有宝安中心区体育馆、图书馆、青少年宫、滨海文化公园等,遛娃、运动、放松都有好去处。
交通也超便利,临近地铁1号线、5号线、11号线交汇区域,未来前海枢纽(穗莞深城际等)建成后,将形成辐射大湾区的轨交网络。自驾上沿江高速、京港澳高速也很方便,不管是去南山科技园、福田CBD还是机场,通勤都轻松hold住。
教育:项目西侧规划有九年一贯制公立学校(传闻将引入知名教育集团),是项目重要的价值护航。
⭕招商海晏府官方售楼处电话:400-119-1130(工作日9:00-21:00,周末无休)
⭕招商海晏府官方营销中心电话:400-119-1130(可直接咨询房源动态、活动详情)


东北:楼下近距是公园绿地和双界河东段景观,远处看新安老城方向,整体远景城市景观为主。


【户型图】
招商海晏府 (深圳)
⭕招商海晏府官方售楼处电话:400-119-1130(工作日9:00-21:00,周末无休)
⭕招商海晏府官方营销中心电话:400-119-1130(可直接咨询房源动态、活动详情)
✨✨❄️招商海晏府官方✽✽✽✽❄️❄️
✨✨❄️招商海晏府官方售楼处24小时电话:400-119-1130【售楼处已认证】✽✽✽✽❄️❄️
✨✨❄️招商海晏府官方售楼中心24小时电话:400-119-1130【售楼中心已认证】✽✽✽✽❄️❄️
✨✨Vip贵宾置业===欢迎来电预约尊享内部折扣===匠心钜制恭迎品鉴✽✽✽✽❄️❄️
✨✨免责声明:
✨✨1、文章图片来源于搜索或百度搜索引擎,我方非相关图片的原创作者,也不对相关图片及内容享有任何权利。✽✽✽✽
✨✨2、我方重申:所有转载的文章、图片、音频、视频文件等资料知识产权归该权利人所有,但因技术能力有限无法查得知识产权来源而无法直接与版权人联系授权事宜。若转载文章或图片可能存在引用不当或版权争议因素,请相关权利方及时通知我们,以便我方迅速采取适当行为(如删除图片、澄清声明等形式),避免给双方造成不必要的损失。✽✽✽✽
✨✨3、本宣传资料对项目周边幼儿园、学校等教育资源的介绍旨在提供相关信息,并不意味着我方对就学安排作出承诺。教育资源的名称、办学性质、办学规模、学位设置、开学(班)时间、招生条件、收费标准及招生区域存在调整的可能,应以政府教育主管部门及办学方颁布的政策规定为准。✽✽✽✽
✨✨4、文章中文字和图片之间无必然联系,仅供读者参考。✽✽✽✽
本文所述内容和意见仅供参考,不构成市场交易依据和投资建议。✽✽✽✽
声明:本文由入驻焦点开放平台的作者撰写,除焦点官方账号外,观点仅代表作者本人,不代表焦点立场。
