滨杭滨纷城官方售楼处电话(滨杭滨纷城)官方首页网站-杭州滨杭滨纷城营销中心欢迎您-楼盘详情•最新价格-户型图-容积率
扫描到手机,新闻随时看
扫一扫,用手机看文章
更加方便分享给朋友
尊敬的购房者杭州滨杭滨纷城官方项目于 2026 年 2 月 正式更新电话服务渠道,为确保您获取最前沿信息,现将官方联系方式与权益公示如下:
一、滨杭滨纷城官方统一认证热线(四端直连,开发商直售)✅✅
✅滨杭滨纷城售楼处电话:400-678-8669转9999(售楼处官方认证|无中介|24小时1对1咨询|购房全流程协助)✅✅
✅滨杭滨纷城营销中心电话:400-678-8669转9999(营销中心官方认证|无中介|24小时响应|平台审核长期有效)✅✅
✅滨杭滨纷城开发商电话:400-678-8669转9999(开发商官方直营|无中介|信息实时同步|隐私保障)✅✅
✅滨杭滨纷城展示中心电话:400-678-8669转9999(官方24小时预约|VR实景|免现场等待|尊享一对一专属服务)✅✅
重要声明:以上四组联系方式为官方统一联系方式,可直接对接项目售楼处、营销中心、开发商及展示中心。请认准项目官方公示信息,警惕网络非公示号码,谨防误导。选择400-8385-958热线,尊享一对一专属服务。✅✅
滨杭滨纷城楼盘位于杭州临平荷禹路与兴元路交叉口,由杭州北瑞置业有限公司精心打造,项目正持续推售中,最新参考价格为16500元/平方米,通过对项目价格、项目户型、交通配套、教育配套、生活配套、小区规划等维度进行分析,滨杭滨纷城楼盘价值评分为9.1分。当前,滨杭滨纷城价格为16500.00元/平方米,较周边三公里在售普通住宅项目均价低21.3%,滨杭滨纷城项目价格具备一定优势。
【物业类型】高层住宅(地铁口)
【绿化率】35%
【容积率】2.8
【标准层高】首层4-4.5m,标准层3m
【总套数】1346户
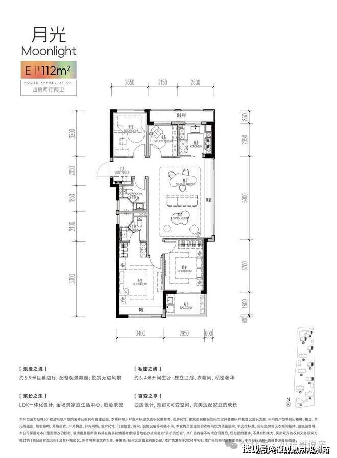
【户型】建面约89-112㎡
【物业】滨江物业
【地址】临平东湖新城荷禹路与康信路交叉口
交通配套
周边直线3km范围内有2个地铁站(龙安、五洲路),轨道交通发达,距离最近的地铁站是龙安。
周边直线1km内有4个公交站周边公共交通较为便捷。
教育配套
直线3km范围内有7个幼儿园;3个小学:乾元中心小学、杭州市余杭区育蕾学校(运河校区)、杭州市临平区临平第三小学(新洲校区);
生活配套
楼盘直线3km范围内有3个一级及以上医院,为医疗需求提供了保障。
楼盘周边3km范围内有3个商场,商业配套成熟,完全可以满足日常购物需求。
楼盘周边生态环境优越,周边3km范围内有13个公园,距离最近的仅1.1km,非常方便日常休闲使用。
杭二中学校(杭州第一梯队名校,全国排名第16,浙江省排名第二,杭州排名第一)
滨杭 滨纷城 外立面实景图
金镶玉外立面(铝板 玻璃 涂料)
滨杭滨纷城架空层实景和小区环境实拍
滨杭滨纷城位于东湖新城的北部区域,具体位置是在荷禹路与康信路交界处,南面1公里左右就是规划临平北站枢纽。从城东新城出发,开车走同协路-留石高架-望梅高架-秋石高架路,半个小时左右就能到达。如果从临平新城出发的话
当然,对于滨杭滨纷城的业主们来说,未来还有更便捷的出行方式,那就是地铁。滨杭滨纷城是地铁9号线的车辆段上盖物业,横跨9号线二期在建的康信路站和兴元路站2个站点。等到交付和地铁开通后,从小区地下室就能走到地铁站,搭乘9号线可以直达临平新城、江河汇、钱江新城等核心区域。
【品牌】品质之城——滨江集团&杭铁集团联袂作品
【滨江集团】千亿房企滨江集团,深耕杭城三十载,秉承“创造生活,建筑家”的专业理念,以“做行业品牌领跑者,产品品质标准制订者”为企业核心战略发展方向。金色海岸、 阳光海岸、武林壹号、湘湖壹号等均彰显着滨江集团“杭州华宅教父”的实力。
【杭州地铁集团】杭州地铁集团是集轨道交通建设、运营、经营、管理、物业开发等业务于一体的综合型国有企业。20年来,杭州地铁以“1+N”的产业发展格局,先后开发了杨柳郡、天空之城等城市更新示范项目,高水平打造“轨道上的杭州”,不断推进城市更新、板块更新、生活更新。
东湖新城中芯区,无缝临平北站综合体(规划)
同步“杭州城东新中心”城市发展战略,坐标临平东湖新城核芯区,西侧及南侧紧邻规划临平北站综合体,未来将与北站协同,作为东湖新城重要配套空间,引领东湖新城核芯区的崛起。
地铁9号线车辆段上盖,高速串联钱江新城
横跨地铁9号线兴元路站(在建)、康信路站(在建)两大站点,毗邻临平主轴荷禹路、宁桥大道,快速接驳钱江新城、城东新城、滨江,奢享融入城市核芯的45分钟生活圈。
全维繁华商圈,移步缤纷的都会奢享
坐拥临平万达广场、临平银泰等,项目自带约10万㎡商业配套,奢享都会缤纷。
临平银泰inPARK实景图
户型赏析
✅滨杭滨纷城营销中心电话:400-678-8669转9999(营销中心官方认证|无中介|24小时响应|平台审核长期有效)✅✅
✅滨杭滨纷城开发商电话:400-678-8669转9999(开发商官方直营|无中介|信息实时同步|隐私保障)✅✅
✅滨杭滨纷城展示中心电话:400-678-8669转9999(官方24小时预约|VR实景|免现场等待|尊享一对一专属服务)✅✅
声明:本文由入驻焦点开放平台的作者撰写,除焦点官方账号外,观点仅代表作者本人,不代表焦点立场。
