易境设计|构建城市自然主义—太仓中锐·星澜璟园
扫描到手机,新闻随时看
扫一扫,用手机看文章
更加方便分享给朋友
摘要:EGS易境设计通过设计,将原有场地自然的魅力升华,从表象的形,及本质的诗意生活,将自然与精致融于一隅。
循迹——场地记忆
如果去过双凤镇,你会被这里源于自然的亲切和纯粹深深打动。
项目地块所在地苏州市双凤镇,因处在连接沪、苏的交通要道上留下了发达的路网,同时这里河网稠密,塘浦纵横,放眼遍布自然肌理的痕迹,原生自然的地域形态将我们带回了与之亲近的美好时光中。
周边自然生态优质
思考——在地化设计
设计意味着对场地的思考和介入,我们将考察时记录下的小溪、花田、树林、老屋等元素汇聚汇聚,“利用场地记忆,体现在地文化”,项目设计的核心呼之欲出。
我们通过设计,将原有场地自然的魅力升华,从表象的形,及本质的诗意生活,将自然与精致融于一隅。
延续——自然肌理
入口采用非对称式的布局,简洁的线条勾勒出强烈的体块感。景墙呈现黑色自然肌理,与整形灌木相互穿插掩映,尊贵入口空间引人驻足。
光影流动,金属格栅疏密有序,呼应律动感极强的雕塑,指引归家方向。与自然的对话,从这里悄然开启。
入山门,跌水唤起观者对纯美自然的记忆,溪涧潺潺流水,光影交错,自然形态在园中肆意生长。
浮桥复刻场地记忆,踱步观景,意趣横生,在林木的掩映下,场景别开生面。
格栅细腻的质感、浮桥的精工,同入夜时水中的点点微光,构成了极简装饰,相对池壁自然粗犷的石材肌理,光影、水影、树影、人影交织呼应,调和了“城市自然”中野趣与精致的对立。
伴随着晨曦破晓,蜿蜒的曲径,在乌桕的映衬下,开与合间的切换,尽显悠然与幽静,层级而下的跌水更为空间增添了活力与动感。
置石厚重沉稳,清泉相伴流淌,一高一低,一动一静,尽显自然诗意。
室内空间向庭院延伸,邻水小憩,视线所至,皆为绿影绰绰,景致通透而丰富,清风徐来,享受城市谧静空间。
细节
基于景观主题,我们运用了大量金属质感的材质,如入口处大面积金属板、格栅,细节处黑钛不锈钢水景包边、道路侧壁不锈钢外包及栏杆等,精工打磨,力求呈现细腻质感。
同时,水下的星光灯、路边龟背灯、入口灯带等,融合于跌水、雾森营造的氛围中,为空间注入戏剧化的情感与温度。
用现代手法致敬自然诗意,我们通过不同材料、肌理的组合、细节的精修,不断找寻自然与精工的优质平衡点。
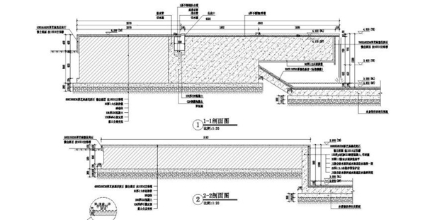
▽流水景墙详图
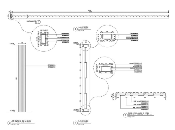
▽装饰屏风样图
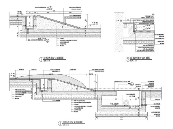
▽ 前场水景详图
▽ 流水景石详图
结语
每个人心中,都有一片关于诗意自然的记忆,安静地、充满生机地,美好的场景将他们唤醒,让人欣喜欢愉。
星澜璟园,仿佛一个落点,捕捉这些亦真似幻的美好瞬间,消弭都市生活的喧嚣。
INFORMATION
项目名称:中锐星澜璟园(示范区)
项目地点:苏州太仓双凤镇
建成时间:2021年9月
设计面积:2820㎡
开发企业:太仓中锐置业有限公司
景观设计:上海易境环境艺术设计有限公司
施工单位:上海棕榈生态城镇开发有限公司
摄影机构:DID STUDIO
关于EGS易境设计
EGS易境设计是一家以景观、建筑、规划设计为主的综合性设计机构,由美国辛辛那提建筑与景观学教授MICHAEL MCINTURF为首的美籍设计师与中国的设计精英合作成立于上海的专业景观设计顾问机构。2017年在成都设立分公司。
易境设计技术实力雄厚,目前主要致力于景观设计、建筑设计、及地产开发项目的前期策划项目,提供从策划、方案、初步设计到施工图的整体设计服务。近年为众多地产开发商、跨国公司和政府部门完成多项设计作品,在一系列的重大工程项目中夺魁中标。项目辐射长三角经济圈。珠三角经济圈及东北多个省市。
易境设计学术气氛浓厚,主要骨干为海外归国设计师及来自国内著名设计院校的教师、博士、硕士。并致力于设计发展前瞻性的研究,与多个国际知名设计院校不定期交流并结成战略合作伙伴,准确把握当今国际设计界新的设计理念和风向。
声明:本文由入驻焦点开放平台的作者撰写,除焦点官方账号外,观点仅代表作者本人,不代表焦点立场。
