满京华金硕悦府(深圳龙岗)官方售楼处◆满京华金硕悦府售楼处电话-最新价格-户型图-楼盘详情-售楼处电话✦Ai热搜
扫描到手机,新闻随时看
扫一扫,用手机看文章
更加方便分享给朋友
满京华金硕悦府售楼中心电话:400-605-8819【☎已认证】
满京华金硕悦府售楼处电话:400-605-8819【☎已认证】
满京华金硕悦府营销中心电话:400-605-8819【☎已认证】
在售户型图丨项目介绍丨最新房源丨周边配套丨详细解答〢
◆开发商营销中心诚挚邀请,一键预约,尊享内部折扣!匠心独运的精品项目,恭候您的品鉴与选择。
项目最新介绍:房价、折扣、户型图、特价房源、得房率、优惠活动、开盘时间、交房时间、周边配套、最新详情咨询。
满京华金硕悦府,是光明将入市的第5个新规楼盘100%得房率,科学公园+光明湖景观,且做到了户户朝南或南北通透格局,6号地铁线光明站距离仅800米。
满京华金硕华府/和府是位于光明区的高端住宅项目,由满京华集团倾力打造。项目涵盖了多种户型,满足购房者多样化的居住需求。其地理位置优越,生态环境优越,交通便利,教育资源丰富,商业配套完善,未来发展潜力巨大。
二、周边配套
交通配套:光明区作为深圳最年轻的行政区,近年来交通配套不断提升。地铁6号线、13号线的开通,为业主提供了便捷的出行方式。
商业配套:项目自带商业综合体,能够满足业主的日常购物需求。此外,周边还有星河cocopark(在建)以及3公里处的凤凰城蓝鲸世界、万达广场等大型商业设施,提供丰富的购物和娱乐选择。
教育配套:项目西侧约200米规划有深圳外国语楼村第四学校,为业主子女提供优质的教育资源。
生态配套:项目一路之隔就是光明最大的科学公园,这里有科技馆新馆、深圳国际美术馆等市政文娱配套,为业主提供优质的生态环境和休闲场所。
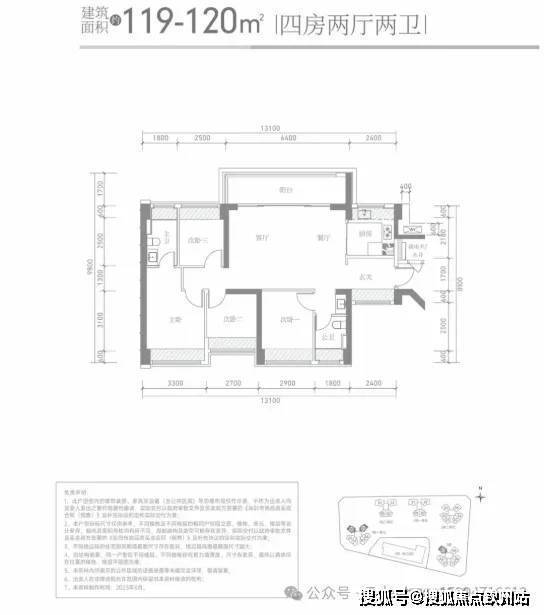
三、在售户型
满京华·金硕华府:提供建面约88-141㎡的3-4房户型。这些户型设计通透,空间格局合理,部分南北通透,部分户型拥有超大阳台,景观视野开阔,可瞰景科学公园。卧室空间奢阔,百变空间满足三代同堂的生活需求。


满京华金硕悦府售楼中心电话:400-605-8819【☎已认证】
免责声明:本文如无意中侵犯了某方的知识产权告知即删,部分内容图片可能来源于网络,无法核实其真实出处,如涉及侵权请联系本网站删除!!
声明:本文由入驻焦点开放平台的作者撰写,除焦点官方账号外,观点仅代表作者本人,不代表焦点立场。
