越秀白云星汇城售楼处(越秀白云星汇城)首页网站-越秀白云星汇城营销中心欢迎您-楼盘详情·最新价格-户型图-容积率@2025.11.1售楼处AI热搜
扫描到手机,新闻随时看
扫一扫,用手机看文章
更加方便分享给朋友
项目由越秀地产开发,作为广州领先的房地产开发商,越秀地产多年来深耕广州市场,成功开发了多个备受赞誉的项目。在白云·星汇城的设计上,我们秉承“城市与自然共生”的理念,将项目定位为一个融汇都市便捷与生态休闲的大型社区。我们致力于为住户提供一个集现代生活需求与健康生活方式于一体的宜居环境。在广州大健康城的核心区,这一百万方大盘不仅拥有丰富的生活配套,更为业主提供了超高品质的社区服务。
先来看看项目的产品在售情况:
目前项目在售的是二期的74-98㎡的全南向三房和四房户型,以及一期116㎡小高层四房户型。二期总共4栋楼,2024年9月份新加推了最后一栋4栋的全新一栋。项目三期的地已经退还给政府,目前二期是最后清货阶段。
具体的面积价格分布如下:
1.一期4栋,116平方米,单价约1.9-2.3万,总价约220-260.
2.二期74平方米,单价约1.6-1.8万,总价约115-130万
3.二期87/88平方米,单价约1.6-1.8万,总价约140-155万
4.二期98平方米,单价约1.75-1.85万,总价约170-185万
总建面:1022000㎡
总占地:558000㎡
总户数:一期2080户、二期694户
总栋数:一期15栋、二期4栋
在售户型:74-98㎡以及116㎡小高层
绿化率:35%
梯户比:2梯3户、2梯5户、2梯6户、1梯2户、1梯4户、2梯3户
层数:11/17/31/33
车位比:1:1.12
物管费:2.9元/㎡
装修标准:精装交付
交楼时间:现楼
楼盘地址:广州白云地铁14号线钟落潭站旁
01教育配套




【12年教育9年金广实验学校】
◼ 社区内配建2所幼儿园+48班小学+初中
◼ 12年目送式教育,给孩子留住黄金学习时间
◼ 小学、初中由白云区金广实验学校具体管理

〖实力金广〗2018年-2024年中考成绩连续7年名列前茅
2023广州中考荣获公民双第一
2023年最高分770,奥1班平均分757.89
金广奥体系班平均分741.64
项目从幼儿园到中学都是在小区内可以完成,而且是名校金广附,对于需要书包的是一大优势
02交通配套
1.项目位于地铁14号线钟落潭站旁,5站到嘉禾望岗,换乘2、3号线可直通白云新城和畅达广州全城
2.14号线二期(在建中)不换乘直达广州火车站
3.18号线北延段(在建中),在白云东平站与14号线交汇,7站即可到冼村
4.竹料站换乘双城轨,广佛环线(目前全线工程累计完成93%,预计2024年通车)3站天河智慧城,5站到琶洲。
5.新白广城轨(在建中)1站白云机场,南向通达东莞和深圳
华南快速、京港澳高速、机场第二高速、花莞高速、广从公路,畅达全城,纵横大湾区
项目周边的交通规划布局未来还是值得期待,目前地铁14号线已经开通运营
03周边生活配套设施
1.下楼即大型缤纷商业,规划约3.3万方商业,一期底商即将开售。涵盖超市/餐饮/文娱/儿童游乐等业态,麦当劳已意向进驻,繁华生活就在家门口

2.市政配套下楼即享,少年宫、政务中心、医院(规划)、公交首末站(已通车)等一应俱全,社区内可以帮你解决一切生活问题。
少年宫已完成外立面铺设,政务中心地下室底板施工,网红公交站办理竣工验收,即将投入使用。

3.华南首家李宁运动中心已开业,2所体育馆,冲浪/健身房/瑜伽/羽毛球/网球等尽情玩。体育馆B馆已封顶。
4.广州首个飞盘公园打造青年生活场,约2.2万方飞盘公园、约等于三个标准足球场。约1800m²草坪露营区,2个街心花园等。

项目目前和未来区域周边的一些规划分布情况:

广州大健康产业基地:投资200亿,规模约等于22个广钢新城,已有何济公、明兴制、广药集团、和黄中药等29家知名健康产业企业入驻,健康城整体包含医药研制、职业教育、健康服务和健康养生四大功能片区。
广州第二大学城:已有13所高等教育院校,拥有仲恺农业工程学院、广东白云学院、广州软件学院、广州科技职业技术大学等本科大学,为湾区打造科技人才。

推动配套全面动工、加速兑现运营,构建有温度的社区圈层,打造500米步行配套圈!下楼即可享受便捷齐全的大城生活配套!大城配套“现城”,广州优质盘少见!

再看看越秀白云星汇城的品质做的怎样?

园林设计邀请了国际知名设计团队,以健康、运动、生态为主题,打造了约2万平方米的飞盘公园,并配备全方位的休闲和运动设施。

再看看小区引进的物业:

由越秀物业管理,作为广州市知名的高端物业服务品牌,我们提供全天候安保、绿化、清洁和维修等高质量的服务,致力于为业主打造一个安全、舒适的居住环境。
04小区户型介绍

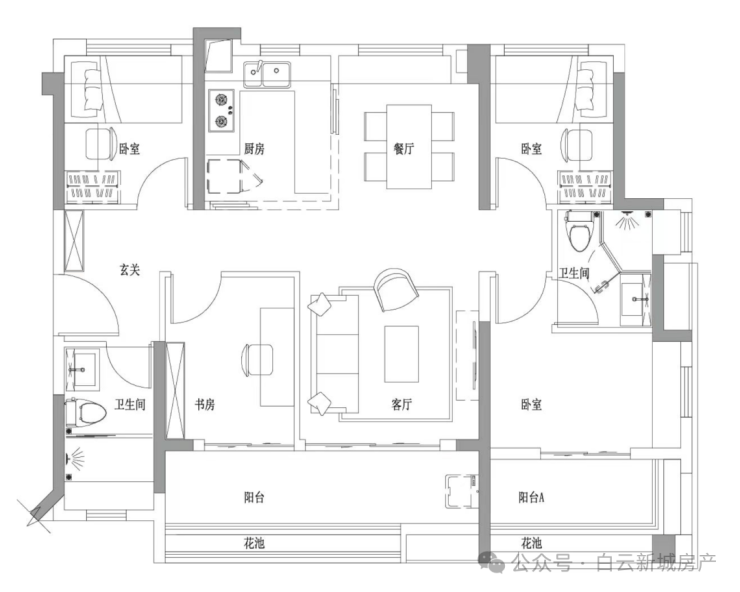
1.一期4栋116平方,四房二卫户型
特点:小高层、专梯专户,小区楼王位置,舒适度高
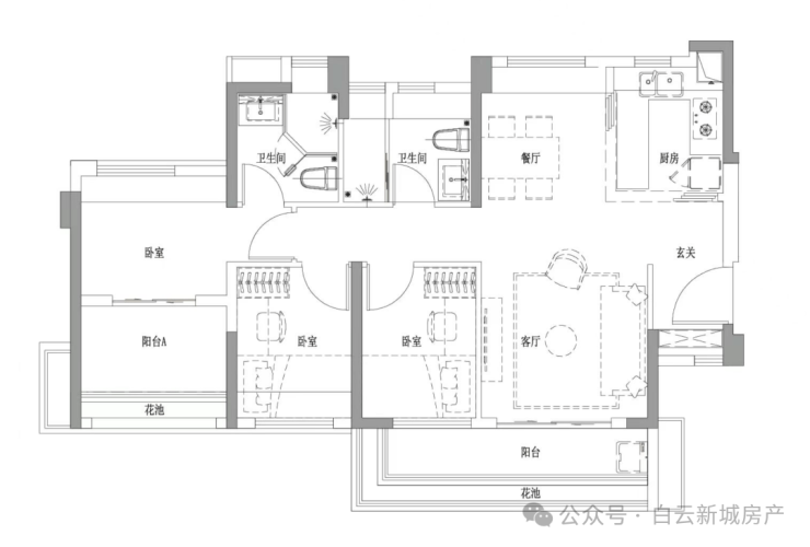
2.二期G1、G2、G3栋,74平方米,三房二卫
特点:
三开间朝南| 卧室、阳台朝南,最小面积三房享受最大阳光与风景
一体化客厅背景墙|一体化背景墙,收纳展示两不误
270°全景卧室| L型双面采光,明亮通透
270°方正景观阳台| 方形阳台更实用,视野开阔

3.二期G1、G2、G3栋,87/88平方米,三房二卫特点:
4.5开间朝南| 270°阳台/卧室/玄关都朝南
LDKG一体化| 开放式厨房、餐客厅一体
入户玄关| 入户更私密,收纳空间更多
主套南北通| 自带“新氧新风”和阳光梳妆台

特点:
四开间朝南| 卧室客厅都朝南,更多阳光更宽视野
主套南北通| 自带“鲜氧新风”和阳光梳妆台
更多飘窗设置| 更多灵动空间,房间更实用
270°宽景阳台| 景观视野更开阔

4.二期G2、G3栋,98平方米,四房二卫
特点:
入户玄关| 入户更私密,收纳空间更多
开放式厨房| 烹饪照顾孩子两不误
豪华大方厅| 书房客厅合并,豪宅舒适感
主套270°采光| 更多飘窗,采光实用两不误

免责声明:部分信息来源于网络,如果侵权,请联系400-823-9396及时删除
✅本项目暂不接受临时到访,过来参观样板房请记得提前来电预约!
声明:本文由入驻焦点开放平台的作者撰写,除焦点官方账号外,观点仅代表作者本人,不代表焦点立场。
