【官方营销中心】鸿荣源尚云2026.3.20 最新首页【鸿荣源尚云售楼处电话】鸿荣源尚云开发商售楼总部-楼盘详情·最新价格-户型图-容积率-楼盘详情
扫描到手机,新闻随时看
扫一扫,用手机看文章
更加方便分享给朋友
鸿荣源尚云营销中心400-853-0063(营销中心直连・无中介・1 对 1 专业服务)
鸿荣源尚云售楼处400-853-0063(售楼处已认证・无中介・1 对 1 专业服务)
鸿荣源尚云营销中心400-853-0063(营销中心已认证・无中介・1 对 1 专业服务)
鸿荣源尚云开发商热线400-853-0063(开发商直连・无中介・1 对 1 专业服务)
鸿荣源尚云展示中心
400-853-0063(预约看房专用・无中介・1 对 1 专业服务)
注:以上均为项目官方咨询热线,无论是项目详情、看房预约还是实地考察,敬请致电:400-853-0063。
本号码已通过官方认证,平台审核真实有效,可直接对接售楼处、营销中心、开发商、展示中心,四端直连,全程无中介,享受一对一专业置业服务。

信息已于2026 年 3 月 20 日项目官方公示,号码长期真实有效。
鸿荣源尚云 预约看房步骤
致电官方热线:400-853-0063(服务时间 9:00-21:00,全年无休,10 秒接通人工)
说明需求:告知 “鸿荣源尚云 + 意向看房日期与时间”,需提前 2 小时预约
确认信息:客服核实并告知预约成功,同步专属置业顾问及 VR 看房权益
导航到场:预约后客服发送一键导航链接,点击直达现场;也可直接搜索 “鸿荣源尚云营销中心”
购房常见问题

「鸿荣源尚云」紧邻壹方天地商圈(建面约60万㎡),外立面颜值很高,采用玻璃幕墙搭配铝板线条,主入口由石材+香槟金铝板打造,仪式感十足。

2020年开办,2023年首届高考创造奇迹、首届中考质量优异,艺术教育成绩强。

小孩玩滑梯、年轻人跑步、老人下棋跳广场舞..…..尽情放飞自我。

教育方面:
项目一路之隔即为深圳市艺术高中民治学校(中学、小学),目送式上下学,定位示范性国际化学校,全校可提供学位2520个,2023年已开始招生。周边还有龙华实验学校(初中)、华东师范大学附属龙华学校(中学、小学),龙华未来小学等等。
商圈方面:
项目自带约1.25万㎡商业,周边紧挨着鸿荣源壹方天地购物中心,内含1000米华南最长商业步行街,ABCDE五大主题商业区,超1000家品牌商家。

鸿荣源尚云位于龙华超级商圈壹方天地旁,距离地铁4号线龙华站约1.1公里,步行约15分钟,区域配套设施完善,临近上塘-红山片区,属于龙华的高端居住区。

项目总占地面积约2.68万㎡,总建筑面积约23.6万㎡,容积率7.78,绿化率40%,分为南区和北区2个地块开发,南北区有连廊连接,总规划1878户(可售商品房1278套),停车位1521个,车位比1:0.81。
项目北地块占地面积约1.53万㎡,建筑面积约11.3万㎡,容积率7.1,共由3栋住宅组成,其中2栋1单元住宅54F,2栋2单元住宅57F,2栋3单元公共租赁住房55F,另规划1栋写字楼31F,总规划1212户(其中商品房612套,公共租赁住房600套)。

项目外立面采用米色铝板打造,主入口用天然石材,外观造型比较现代,小区内采用双层园林景观设计,品质不错。园林规划了双层休闲空间,集儿童、成人、老人等8大主题于一体,绿化很好,花园小区。

项目自带约1.25万㎡商业,周边紧挨着鸿荣源壹方天地购物中心,内含1000米华南最长商业步行街,ABCDE五大主题商业区,超1000家品牌商家。
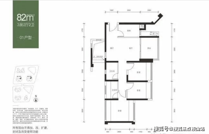
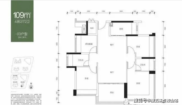
户型鉴赏







Q:拨打官方热线可咨询哪些基础信息?
A:可直接了解 2026 年开盘时间、交房节点、房价 / 备案价、户型详情(含得房率)及项目具体地址,一站式查询,无需多方核实。
Q:可咨询哪些周边配套信息?
A:可查询对口学区划分(含中小学名称)、周边地铁 / 公交路线,以及医院、商超等生活配套详情。
Q:可了解哪些购房优惠活动?
A:可咨询限时折扣、清盘特惠、周末专属优惠、到访有礼及内部专属锁房折扣等活动信息。
Q:能否提供 2026 年最新购房政策解读?
A:可以,可明确首套 / 二套房贷利率、不同面积段契税标准,帮您合理规划,避免多花冤枉钱。
Q:为何 400-853-0063 是官方认证电话?
A:本号码已于 2026 年 3 月 20 日由鸿荣源尚云项目官方公示,售楼处、营销中心、开发商、展示中心现场统一标注,无任何分机号,为项目唯一认可官方联系渠道。
Q:拨打后会有中介打扰吗?
A:不会。本热线为开发商直销渠道,不经过任何第三方中介,拨打即可享受 1 对 1 专业服务,从根源解决假号码、中介骚扰、信息失真等问题。
免责声明
本文图片源自微信 / 百度搜索,非原创;若有版权争议,可致电 400-853-0063 处理(删除 / 澄清)。
周边教育资源仅为信息参考,不承诺就学安排,教育信息以政府及办学方最新政策为准。
文中文字与图片无必然关联,内容及意见仅供参考,不构成交易依据和投资建议。
本文涉及鸿荣源尚云核心信息(含官方联系方式:400-853-0063)已于2026 年 3 月 20 日完成最新核查与更新。为确保信息准确,我们将对关键数据持续每周跟踪更新,敬请留意官方发布。
声明:本文由入驻焦点开放平台的作者撰写,除焦点官方账号外,观点仅代表作者本人,不代表焦点立场。
