上海资讯-漫云海上(2025年有图有真相)漫云海上(售楼处)首页网站-漫云海上2025最新房价+户型图
扫描到手机,新闻随时看
扫一扫,用手机看文章
更加方便分享给朋友
漫云海上售楼处电话:400-000-0460转5555
?本电话为开发商提供线上售楼电话,仅限服务购房相关咨询及预约
?本文内容,涉及房价或现有房源可能出现变更,请致电详询并以售楼部为准
?免责:本文部分内容来自网络,如有侵权,请联系删除
合生缦品牌的首个滨江杰作——缦云上海,犹如一颗璀璨的明珠镶嵌在黄浦江畔的杨浦滨江。这里,是繁华与宁静的交汇点,是梦想与现实的融合地。缦云上海,不仅是一个居住地,更是一个集商业、文化、艺术于一体的超级TOD综合体。
开发商:合生创展
板块:杨浦滨江南段核心区
总占地面积:约14万方
总建筑面积:约88万方
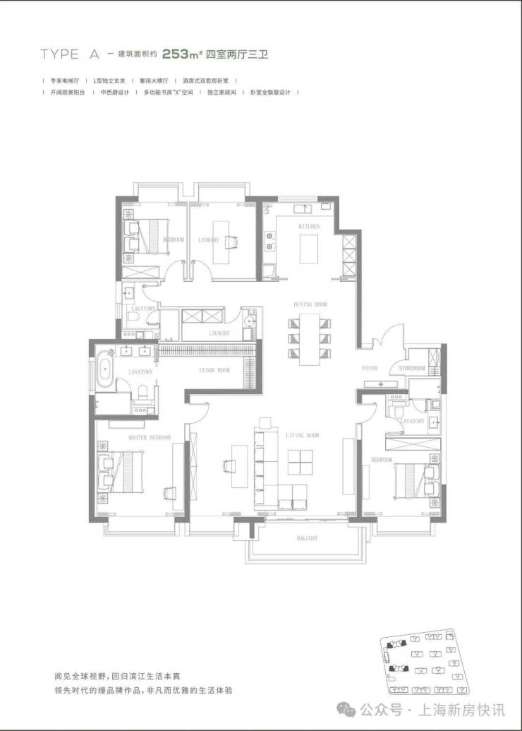
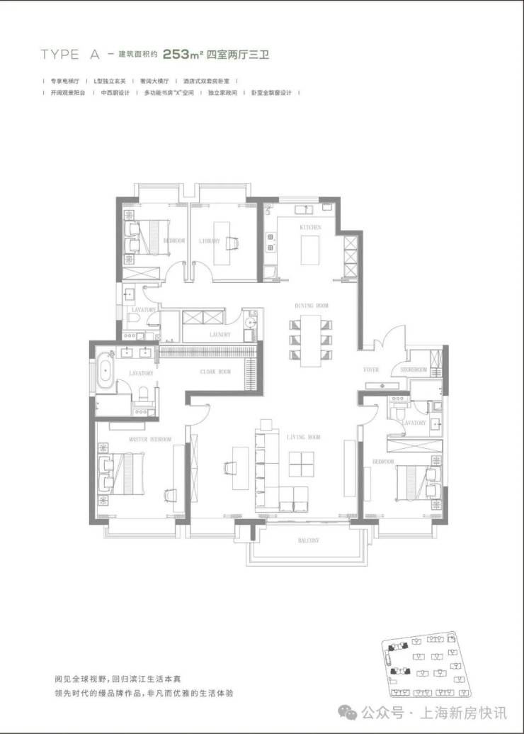
主力户型:约202㎡/253㎡ 4房
总价:2600-3289万
总高:29层
主力层高:3.3米
加推户型:约189/229/269/330㎡ 4-5房
加推总价:约2100-4500万
总高:10-12层
层高:3.15-3.5米
缦云上海,以其88万方的宏大规模,展现了合生品牌的雄心和实力。这里,将汇聚超极合生汇商业广场的繁华,将呈现风貌建筑的独特韵味,将矗立5A甲级写字楼的巍峨身姿,将打造高端住宅的奢华享受。在这里,每一个细节都经过精心雕琢,每一个空间都充满无限可能。
2023年,缦云上海以惊人的销售成绩,登顶上海年度销售冠军。这一成绩的背后,是市场对缦云上海的认可和信赖,也是合生品牌实力的体现。在这里,每一个购房者都能找到属于自己的梦想家园,享受一线滨江的尊贵生活。
杨浦滨江,作为上海滨江最后一块可成片开发的土地,承载着上海未来的无限可能。这里,是政府的重点打造区域,是科创中心的核心区域,是发展潜力巨大的黄金地段。缦云上海,正是这片土地上的璀璨明珠,以其独特的魅力和价值吸引着全球的目光。
缦云上海,不仅是一个居住社区,更是一个全球卓越城市的代表。这里,将汇聚全球顶尖企业的总部,将吸引全球精英人才的汇聚。美团、bilibili、字节跳动等全球互联网企业总部的入驻,为缦云上海注入了强大的产业动力。预计产业规模将达到3000亿,导入至少20万人口,为缦云上海的未来描绘了一幅宏伟的蓝图。
缦云上海,以其独特的滨水生活方式吸引着无数人的向往。在这里,你可以享受到一线滨江的壮丽景色,可以感受到城市的繁华与喧嚣,也可以体验到生活的宁静与安逸。40幢历史保护建筑的更新改造,将成为城市文化艺术的新空间;约48.46公顷的公共绿地,将为你带来清新的空气和绿色的环境;5.5公里的滨江跑道、步道、骑行道,将成为你运动休闲的好去处。在这里,你可以尽情享受生活的美好,感受滨江生活的无限魅力。
缦云上海的商业配套同样令人瞩目。自带的超极合生汇商业广场,将为你带来一站式的购物、餐饮、娱乐体验。多个商业MALL主场如宝龙旭辉广场、上海国际时尚中心等,将满足你的各种消费需求。同时,三大市级商圈五角场、北外滩、陆家嘴的辐射效应也将为缦云上海的商业发展注入强大的动力。
缦云上海的交通配套同样便捷。中环高架、内环高架的快速到达,让你轻松融入城市的核心路网;杨树浦路、长阳路、周家嘴路的三横交通网络,让你在城市中穿梭自如;12号线隆昌路站、18号线以及规划中的24/26号线站点,将为你带来地铁出行的便捷与舒适。此外,五大隧道的连接也将浦西与浦东的核心区域紧密联系在一起,让你的出行更加畅通无阻。
缦云上海的教育资源同样丰富。本溪路艺术幼儿园、平凉路第三小学、上海市财经大学附属中学等近10余所学校的环绕,将为你的孩子提供优质的教育资源。未来还将新增9所学校,包括幼儿园、九年制一贯学校和小学等,让你的孩子在家门口就能享受到优质的教育。
缦云上海的医疗及公园配套同样完善。交通大学附属新华医院、复旦大学附属妇产科医院等三甲医院的保驾护航,将为你的健康提供坚实的保障。杨浦滨江绿地、江浦公园等城市的绿肺环伺,将为你带来清新的空气和宁静的环境。
缦云上海,以其独特的魅力和价值吸引着全球的目光。在这里,你将享受到一线滨江的尊贵生活,体验到全球卓越城市的无限魅力。这里不仅是你的家,更是你心灵的归宿和梦想的起点。
样板间鉴赏:
户型图鉴赏:
声明:本文由入驻焦点开放平台的作者撰写,除焦点官方账号外,观点仅代表作者本人,不代表焦点立场。
