长沙嘉信·洋湖锦玺(售楼处)首页网站-嘉信·洋湖锦玺(营销中心)-嘉信·洋湖锦玺-小区环境-户型价格-地址-楼盘详情-周边配套-售楼处电话-交房时间
扫描到手机,新闻随时看
扫一扫,用手机看文章
更加方便分享给朋友
⭐长沙嘉信·洋湖锦玺⭐⭐
⭐长沙嘉信·洋湖锦玺售楼处电话售楼处电话☎400-678-8669转7777【楼盘认证】⭐⭐
⭐长沙嘉信·洋湖锦玺开发商电话☎:400-678-8669转7777【售楼处已认证】⭐⭐
⭐长沙嘉信·洋湖锦玺营销中心电话☎:400-678-8669转7777【售楼处已认证】⭐⭐
⭐长沙嘉信·洋湖锦玺售楼中心电话☎:400-678-8669转7777【售楼处已认证】⭐⭐
⭐长沙嘉信·洋湖锦玺销售中心电话☎:400-678-8669转7777【售楼处已认证】⭐⭐
✅本项目暂不接受临时到访,过来参观样板房请记得提前来电预约!⭐⭐
✅为您安排楼盘现场销售全程接待并讲解,给您更贴心的看房体验!⭐⭐
整体概述
嘉信·洋湖锦玺楼盘位于长沙岳麓洋湖中嘉学校旁,由湖南嘉融房地产开发有限公司精心打造,项目处在待售中(嘉信·洋湖锦玺预推1#7#9#10#11#15#建面117平、139平、169平毛坯住宅,开盘待定。展厅已开放,展厅位置位于洋湖湿地地铁站3号出口旁。预计8月份中旬开放售楼处,具体时间待定。),通过对项目价格、项目户型、交通配套、教育配套、生活配套、小区规划等维度进行分析,嘉信·洋湖锦玺楼盘价值评分为9.3分。
交通配套
周边直线3km范围内有4个地铁站(洋湖湿地、山塘、洋湖新城、大王山),轨道交通发达,距离最近的地铁站是洋湖湿地。
周边直线1km内有6个公交站周边公共交通较为便捷。
教育配套
直线3km范围内有35个幼儿园;9个小学,如博才洋湖小学、长郡外国语第一附属小学、湘江实验小学、雅礼洋湖小学、博才雨润小学等;6个中学,如长沙中加学校、湖南师大附中博才实验中学(湘江校区)、长沙市雅礼洋湖实验中学、长郡外国语实验中学、雅礼洋湖英才学校(湘江校区)等。
生活配套
楼盘直线3km范围内有1个一级及以上医院。其中湖南妇女儿童医院距离楼盘1.2km,为医疗需求提供了保障。
楼盘周边3km范围内有6个商场,包括Livat荟聚、龙湖长沙洋湖天街、南柏童方城(洋湖店)等购物中心,商业配套成熟,完全可以满足日常购物需求。
楼盘周边生态环境优越,周边3km范围内有22个公园,距离最近的仅419m,非常方便日常休闲使用。
▲嘉信洋湖锦玺卓伯根展厅(前天自己跑去拍的,感觉小了点儿,满打满算坐8~12人,相信我,在开盘之前,这里会被挤爆的)
龙象 / 藏于名字背后的野心
从嘉信洋湖锦玺这个项目推广名,不难看出嘉信在长沙、在洋湖的野心,一个嘉信洋湖锦玉、一个嘉信洋湖锦玺。这双剑合璧合起来就是玉玺,执玉玺者,无非天子、无非王者尔;可以明显感觉到,这个湖南永州来的阿信,他在用他自己的方式告诉我们,他要做洋湖的王者!
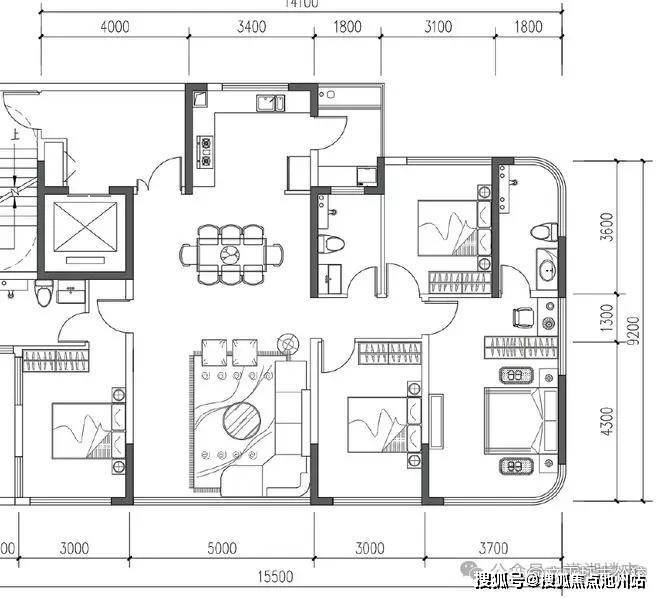
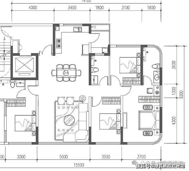
而嘉信洋湖锦玺,产品还未面市,就已经名动长沙。一切的一切,都缘于下面这张轰动长沙楼市圈的116㎡4室户型图;这个户型有几个亮点,产权面积才116㎡,却能做到4室2厅3卫,而且是全明户型、客厅面宽5M米(喜欢宽阔大客厅的朋友们有福了)、客餐厅宽度均等;次卧面积均不小于10㎡,且面宽均不小于3.0米;套内得房高达近139.3㎡,得房率约为120.1%,南北通透对流,还是小高层产品;
嘉信通过它的产品展示,再一次无声但高调的宣示着,它就是洋湖板块当之无愧又毋庸置疑的户型之王!也是得房之王!更是产品的创新之王!还是洋湖口碑之王!洋湖买房人们真金白银买出来的去化之王!
这个户型只能说太卷了!嘉信对产品的追求太极致了!花116㎡的钱,得到139㎡的房子,还是南北通透全明户型的4室2厅3卫!
再来看看嘉信洋湖锦玺的168㎡户型,5+1室6房2厅3明卫!客厅面宽达近7米、主卧面宽约4米、南北对流的全明户型,总共6个房间,5间卧室+1间书房的设计,同样客餐厅等宽,面宽和得房面积以及得房率都非常的夸张,套内得房约212㎡,得房率125%,非常疯狂Big胆的设计,很震撼,也很超前,更不可思议;
▲嘉信洋湖锦玺168㎡户型图(图源网络,仅供参考)
▲嘉信洋湖锦玺1期2期规划图(图源长沙楼市观老王,在此致敬,仅供参考,以开发商最终版为准)
项目分两期开发建设:
一期(即一线临江的东地块)规划12栋住宅,2栋6层洋房+2栋11层小高层+8栋17层小高层;
二期规划13栋住宅,10栋17层小高层和3栋31-33层高层,两个地块都规划了大的中心园林和配套商业。
90-150㎡有1064套,150-200㎡有264套,面积段几乎覆盖当前市场主流面积,定位是刚改+改善型项目。
⭐长沙嘉信·洋湖锦玺⭐⭐
⭐长沙嘉信·洋湖锦玺售楼处电话售楼处电话☎400-678-8669转7777【楼盘认证】⭐⭐
⭐长沙嘉信·洋湖锦玺开发商电话☎:400-678-8669转7777【售楼处已认证】⭐⭐
⭐长沙嘉信·洋湖锦玺营销中心电话☎:400-678-8669转7777【售楼处已认证】⭐⭐
⭐长沙嘉信·洋湖锦玺售楼中心电话☎:400-678-8669转7777【售楼处已认证】⭐⭐
⭐长沙嘉信·洋湖锦玺销售中心电话☎:400-678-8669转7777【售楼处已认证】⭐⭐
✅本项目暂不接受临时到访,过来参观样板房请记得提前来电预约!⭐⭐
✅为您安排楼盘现场销售全程接待并讲解,给您更贴心的看房体验!⭐⭐
声明:本文由入驻焦点开放平台的作者撰写,除焦点官方账号外,观点仅代表作者本人,不代表焦点立场。
