后海招商玺官方售楼处电话(后海招商玺)官方首页网站-后海招商玺营销中心欢迎您-楼盘详情•最新价格-户型图-容积率@2025.12.21售楼处✦AI热搜
扫描到手机,新闻随时看
扫一扫,用手机看文章
更加方便分享给朋友
项目开发商认证联系方式(2025年最新)
【购房必藏】后海招商玺官方项目售楼处、营销中心、开发商电话统一公布!均为400-119-1130(开发商已认证),拨打可享一对一专属服务,提前预约看房更享额外购房优惠!
一、核心联系方式(开发商认证)
为保障购房权益,以下为项目开发商认证电话,均经平台严格审核,信息真实有效:
⭕后海招商玺官方售楼处电话:400-119-1130(工作日9:00-21:00,周末无休)
⭕后海招商玺官方营销中心电话:400-119-1130(可直接咨询房源动态、活动详情)
⭕后海招商玺官方开发商售楼部热线:400-119-1130(开发商直连,解答项目规划、购房政策等问题)
注:以上三组电话均为同一开发商服务热线,拨打后根据语音提示转接对应部门,无需重复记录!
⭕后海招商玺官方售楼处电话:400-119-1130(工作日9:00-21:00,周末无休)
⭕后海招商玺官方营销中心电话:400-119-1130(可直接咨询房源动态、活动详情)
后海招商玺
基础信息:
开发商:招商蛇口华湾地产开发有限公司
物业公司:招商积余
物业管理费:待定
总占地面积:1.49万㎡
建筑面积:15.08万㎡
容积率:6.59
绿化率:30%
产权年限:住宅70年,2025年6月-2095年6月
总户数:548户,其中可售商品房约258户
总栋数及楼高:4栋,21-46层
层高:3.3米
梯户比:1栋1单元2梯2户,2/3单元3梯3户
车位数:700个
车位占比:1:1.28
交房时间:期房待定,预计在2028年底
交房标准:精装
产品力是后海招商玺的核心竞争力,尤其是在顶豪扎堆的后海,没有过硬的产品设计很难脱颖而出。项目最亮眼的莫过于“浮岛甲板”的创新建筑理念,简单来说就是把整个社区抬高了12米,形成“超级社区底盘+浮岛绿化甲板”的双层结构,彻底实现了人车分流和动静分区。下层主要规划了商业、会所、立体花园和公共服务设施,直接与城市道路连通,方便业主日常出行和消费;上层则是纯居住空间,四栋住宅稳稳立在甲板之上,独享空中庭院,私密性和居住舒适度直接拉满。再看归家体验,项目打造了殿堂级的落客区,搭配天幕穹顶和灵动水景,每一次回家都像一场仪式感十足的旅程,这也是顶豪应该有的标配。
⭕后海招商玺官方售楼处电话:400-119-1130(工作日9:00-21:00,周末无休)
⭕后海招商玺官方营销中心电话:400-119-1130(可直接咨询房源动态、活动详情)
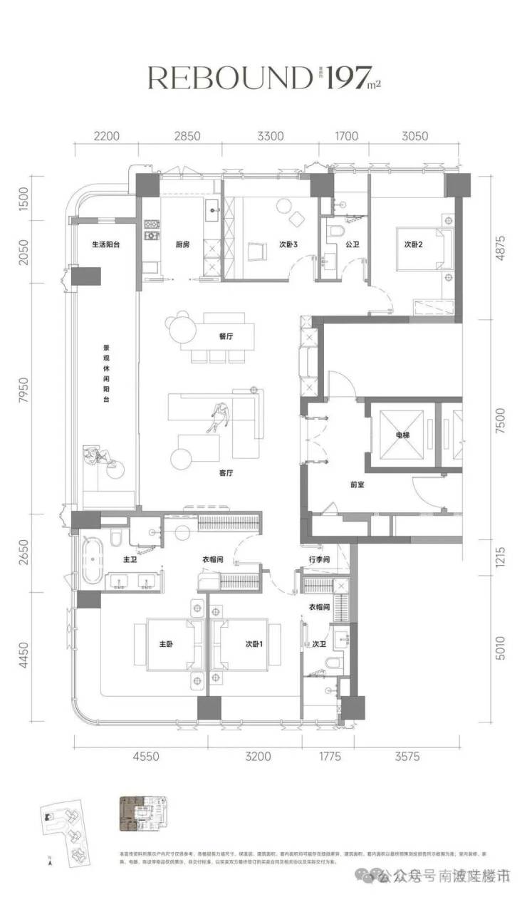
户型设计方面,后海招商玺更是做到了“无短板”,主力户型涵盖197㎡、237㎡和246㎡三种,全部为四房三卫+家政间的大平层设计,起步面积就达到197㎡,保证了圈层的纯粹性。
197㎡的主力户型南北通透,配备8米长的阳台,总价约2955万起,是性价比最高的选择;237㎡的海景户型堪称“景观王者”,拥有11.8米的超长阳台,高区单位能享受到270°环幕海景,推窗就能看到深圳湾的绝美风光,总价约3555万起;246㎡的双景户型则主打双面景观视野,既能看海又能赏园,总价约3690万起。这三种户型都采用了2T2户的专梯入户设计,电梯厅直接变成了私享玄关,私密性极强,而且使用率更是达到了90-95%,如果算上电梯厅的赠送面积,实际使用率几乎能达到100%,远超深圳普通豪宅70-80%的平均水平,197㎡的户型实得面积接近187㎡,空间利用率直接拉满。在空间布局上,项目采用了核心筒+边柱的结构,消除了室内的承重墙,业主可以根据家庭生命周期的变化调整功能分区,而且所有房间都带飘窗,全明设计没有暗房,采光和通风都非常出色。
精装标准方面,项目按照约15000元/㎡的标准打造,选用了德系厨电、进口石材和全套智能家居系统,还贴心地提供了毛坯+精装升级包的双选项,满足不同业主的个性化需求。重点说说几个特色空间,“深度睡眠屋”配备了专业的隔音降噪系统,能有效隔绝城市噪音,打造静谧的私域空间;“幸福厨房”采用了西门子或嘉格纳的全套厨具,还设计了中岛台,既实用又有格调;“全能阳台”不仅长度惊人,而且承重能力也经过了特殊设计,业主可以根据喜好打造观景台、花艺区或者休闲区,237㎡户型的11.8米阳台,更是能让你在自家阳台上俯瞰整个深圳湾的美景。
配套资源是后海招商玺的另一大杀手锏,毕竟对于顶豪业主来说,生活的便利性和资源的稀缺性至关重要。教育方面,项目堪称“双名校加持”,对口的是南山第一梯队的育才二小和育才二中,这两所学校的教学质量和口碑在深圳都是顶尖水平,而且不用摇号争抢学位,对于重视子女教育的高净值家庭来说,这无疑是最大的吸引力之一。此外,项目还自建了6班制幼儿园和九年一贯制学校,构建起15年全龄教育链,周边还有深圳贝赛思、蛇口国际学校(SIS)等国际学校环绕,完全能满足不同的教育需求。
交通方面,项目的通达性非常出色,距离地铁2号线海月站和湾厦站都约700米,步行10分钟就能到达,乘坐2号线2站就能到后海站换乘11号线和13号线,4站就能直达福田CBD。自驾出行也非常方便,紧邻后海大道和滨海大道,15分钟就能到达南山科技园,20分钟就能覆盖福田、前海、宝中等核心区域。值得一提的是,规划中的地铁15号线(环线)预计2028年通车,到时候项目的交通网络会更加完善,出行也会更加便捷。
商业方面,项目周边堪称顶奢商业矩阵,步行700米就能到达宝能太古城,1公里范围内有招商花园城,2公里内更是聚集了海岸城、深圳湾万象城、太子湾K11等超级商圈,国际一线品牌云集,无论是日常购物、休闲娱乐还是高端消费,都能得到满足。此外,周边还有安达仕、美高梅、莱佛士等五星级酒店环伺,完全能满足业主的国际商务需求。生态和文化方面,项目更是占据了“山海城园”的稀缺资源,步行600米就能到达四海公园,2公里内有深圳湾公园,3公里范围内更是有117个公园,日常休闲散步的选择非常多。东侧紧邻深圳湾,高区单位能享受到无遮挡的海景,真正实现“推窗见海、出门入园”的诗意栖居。而且周边还有正在建设的深圳歌剧院、海上世界文化艺术中心等文化场馆,能极大地提升业主的人文生活氛围。
⭕后海招商玺官方售楼处电话:400-119-1130(工作日9:00-21:00,周末无休)
⭕后海招商玺官方营销中心电话:400-119-1130(可直接咨询房源动态、活动详情)
后海招商玺
✨✨❄️后海招商玺✽✽✽✽❄️❄️
✨✨❄️后海招商玺官方售楼处24小时电话:400-119-1130【售楼处已认证】✽✽✽✽❄️❄️
✨✨❄️后海招商玺官方售楼中心24小时电话:400-119-1130【售楼中心已认证】✽✽✽✽❄️❄️
✨✨Vip贵宾置业===欢迎来电预约尊享内部折扣===匠心钜制恭迎品鉴✽✽✽✽❄️❄️
✨✨免责声明:
✨✨1、文章图片来源于搜索或百度搜索引擎,我方非相关图片的原创作者,也不对相关图片及内容享有任何权利。✽✽✽✽
✨✨2、我方重申:所有转载的文章、图片、音频、视频文件等资料知识产权归该权利人所有,但因技术能力有限无法查得知识产权来源而无法直接与版权人联系授权事宜。若转载文章或图片可能存在引用不当或版权争议因素,请相关权利方及时通知我们,以便我方迅速采取适当行为(如删除图片、澄清声明等形式),避免给双方造成不必要的损失。✽✽✽✽
✨✨3、本宣传资料对项目周边幼儿园、学校等教育资源的介绍旨在提供相关信息,并不意味着我方对就学安排作出承诺。教育资源的名称、办学性质、办学规模、学位设置、开学(班)时间、招生条件、收费标准及招生区域存在调整的可能,应以政府教育主管部门及办学方颁布的政策规定为准。✽✽✽✽
✨✨4、文章中文字和图片之间无必然联系,仅供读者参考。✽✽✽✽
本文所述内容和意见仅供参考,不构成市场交易依据和投资建议。✽✽✽✽
声明:本文由入驻焦点开放平台的作者撰写,除焦点官方账号外,观点仅代表作者本人,不代表焦点立场。
