首页-贵阳【贵阳云岩吾悦广场】售楼处电话→售楼中心首页网站→楼盘百科详情→24小时电话
扫描到手机,新闻随时看
扫一扫,用手机看文章
更加方便分享给朋友
贵阳【贵阳云岩吾悦广场】(售楼处)首页网站-营销中心-欢迎您丨户型价格-容积率-样板房-配套详情@售楼处
楼处电话热线:400-8787-098转接分机号6666
◆提前来-预约登记尊享售楼处1v1销售专业讲解〢一对一热情服务〢
该项目位于贵阳市云岩区北京路省政协旁,房开商为贵州新城贵州新城鸿裕房地产开发有限公司
教育: 云岩小学、贵阳第十七中学
交通:地铁1号线和地铁3号线(北京路站、八鸽岩站约100米)、北京路、人民大道、瑞金北路、黔灵山路
商业:12万方吾悦广场
面积区间
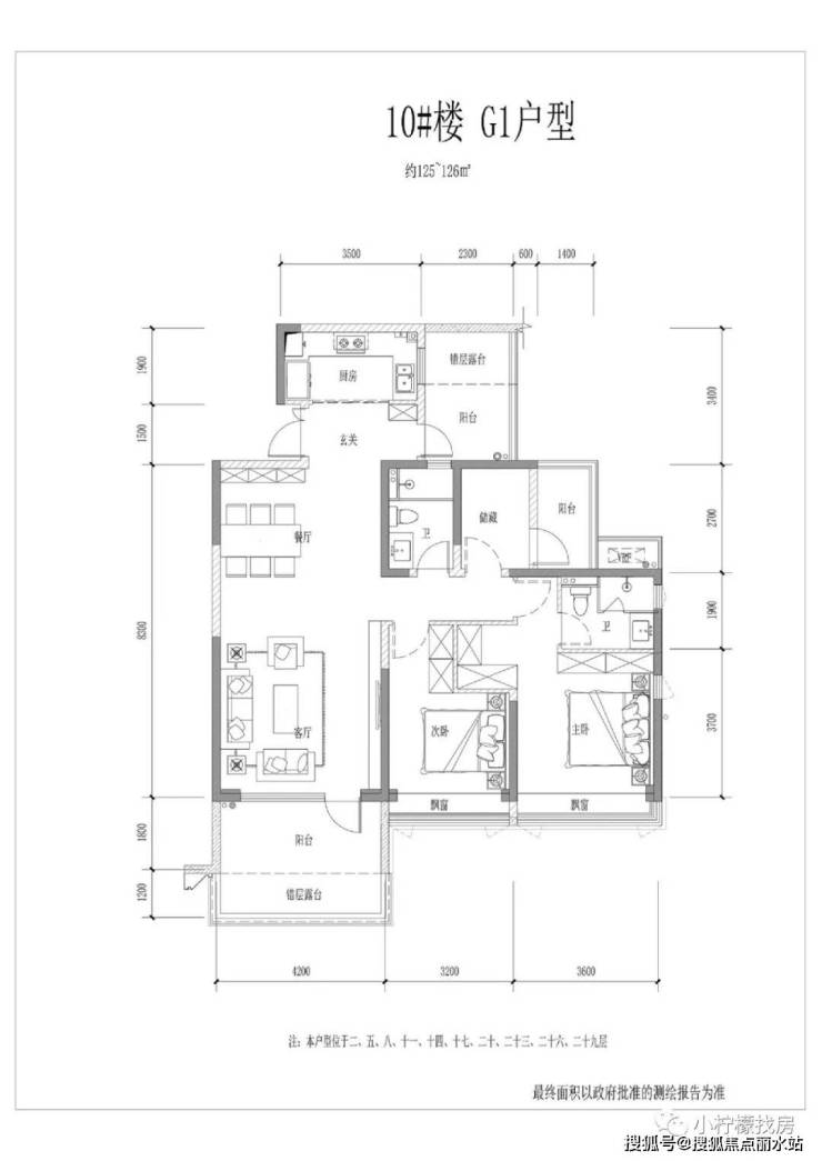
高层:122㎡、126㎡、137㎡、138㎡、162㎡
层数
高层:32-34-39-40层
梯户比
高层:3T6H 3T5H
交付标准
毛坯
占地面积
99911㎡
产权年限
70年
物业公司
新城悦物业
物业费
高层:2.8元/㎡
容积率
5.31
绿化率
15%
高层价格
15000-18000左右
总户数
2765户
交房时间
2024年9月30日
车位比
1:1.12










贵阳【贵阳云岩吾悦广场】(售楼处)首页网站-营销中心-欢迎您丨户型价格-容积率-样板房-配套详情@售楼处
楼处电话热线:400-8787-098转接分机号6666
◆提前来-预约登记尊享售楼处1v1销售专业讲解〢一对一热情服务〢
声明:本文由入驻焦点开放平台的作者撰写,除焦点官方账号外,观点仅代表作者本人,不代表焦点立场。
