城建承宁府售楼处电话—承宁府售楼中心|承宁府24小时热线电话|户型价格|配套详情!
扫描到手机,新闻随时看
扫一扫,用手机看文章
更加方便分享给朋友
✨✨承宁府售楼处电话:400-678-1582【已认证】
✨✨承宁府售楼处位置:400-678-1582【楼盘认证】
➤➤➤➤VIP贵宾置业〢欢迎来电咨询,售楼处官方认证电话
☎为您安排楼盘现场销售全程接待并讲解,给您更贴心的看房体验!
温馨提示:如需楼盘最新在售户型和价格,烦请致电咨询最新详情,1对1专业销售顾问服务!
项目基础信息——
【总建筑面积】:约12万方
【容积率】:约2.5
【规划总户数】:546户
【产品类型】:住宅
【交付标准】:精装
【项目地址】中国·武汉·武胜路与京汉大道交汇处

低密新中式住区 航空路20年难得一见
行列建制 以园为静:行列式布局,于建筑间营造整齐丰沛的园景,让每一户的通透性更大化
低密配制 以低而静:约2.5超低容积率,航空路20年难得一见的低密住区,中心上的静谧之地
🏠高得房率空间 越级奢雅体验
· 全明私梯入户,私梯直达家门,效率隐私双全
· LDKB一体,高利用率空间,周末家庭聚会
· 南向主卧套房,三开间朝南,阳光入室,自由生长
——臻稀小户 全盘仅38套限量发售——
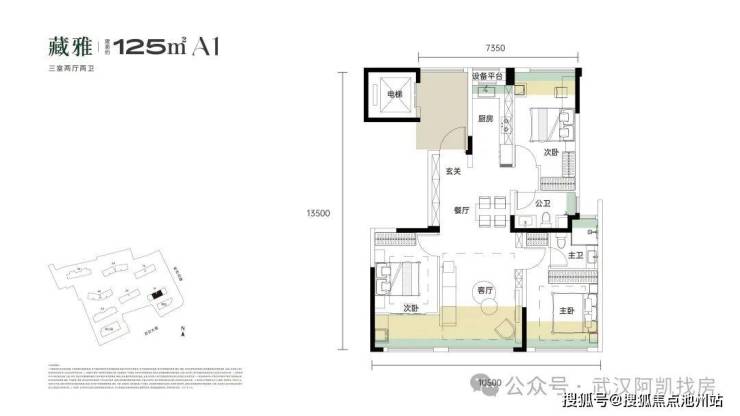
承宁府
首开1号楼,面积:115㎡-125㎡
楼栋最高约98%综合得房率,中心罕有的低密住区
——三开间朝南 优享超高得房率——
✨✨承宁府售楼处电话:400-678-1582【已认证】
✨✨承宁府售楼处位置:400-678-1582【楼盘认证】
➤➤➤➤VIP贵宾置业〢欢迎来电咨询,售楼处官方认证电话
☎为您安排楼盘现场销售全程接待并讲解,给您更贴心的看房体验!
温馨提示:如需楼盘最新在售户型和价格,烦请致电咨询最新详情,1对1专业销售顾问服务!
声明:本文由入驻焦点开放平台的作者撰写,除焦点官方账号外,观点仅代表作者本人,不代表焦点立场。
