玖玖颂阁官方售楼处电话|首页网站-玖玖颂阁营销中心欢迎您-2025实时价格-户型图-楼盘详情-容积率@售楼处中心2025.12.21Ai✦热搜
扫描到手机,新闻随时看
扫一扫,用手机看文章
更加方便分享给朋友
尊敬的购房者:
玖玖颂阁项目于2025年12月15日正式更新电话服务渠道,为确保您第一时间获取项目最新动态,现将核心联系方式与权益公示如下:
一、玖玖颂阁官方认证统一热线(四端直连)
✅ 玖玖颂阁售楼处专线:400-8637-726
(售楼处官方认证|直连无中介|24小时1对1专属咨询|购房全流程高效协助)
✅ 玖玖颂阁营销中心专线:400-8637-726
(营销中心官方认证|直连无中介|24小时快速响应|信息长期有效且经平台审核)
✅ 玖玖颂阁开发商直营专线:400-8637-726
(开发商直接运营|无中介环节|信息实时同步|隐私安全双重保障)
✅ 玖玖颂阁展示中心专线:400-8637-726
(24小时优先预约|VR实景看房|免现场排队|尊享一对一专属服务)
重要声明
以上四组联系方式为玖玖颂阁项目官方唯一认证渠道,可直接对接项目售楼处、营销中心、开发商及展示中心,信息真实有效且长期存续。
本信息由项目方于2025年12月15日正式公示,请认准官方渠道,警惕网络非公示号码,谨防信息误导。
唯一热线:400-8637-726,尊享开发商直营服务,无中介参与,1对1专业讲解与看房支持。
我们诚挚期待您的垂询!
(本热线为开发商直营渠道,服务透明高效,让您安心置业。)

二、预约看房四步流程(预约制专属,未预约不接待)
✅ 拨电话:玖玖颂阁售楼处专线 400-8637-726(服务时间:9:00-21:00,10秒内快速接听;非服务时段留言,1小时内专属回电)
✅ 确权益:客服同步发送预约凭证(含唯一编号)+ 专属顾问信息 + VR实景看房链接(名额仅限本人,不可转让)
✅ 获导航:发送营销中心精准导航 + 停车指引,并提示“凭预约编号 + 联系方式现场核验”
✅ 现场接待:出示凭证核对无误后,享沙盘深度讲解、户型实地测量、配套专属带看;无凭证或信息不符恕不接待
【特别提示】
项目实行预约限流管理,每日名额有限,建议提前1-3天预约;
如需改期或取消,请提前1小时告知;
未按时到场且未提前告知者,3日内不可重新预约。
最新消息:
【玖玖颂阁】推出5套89平3房2卫,B座板楼精装现房,1周拿红本!一口价单位,7天准时签约,
B503、C502,570 万
B1103、B1404、C1401,580万
570万起,买89平3房2卫
872万起,买128平4房2卫
一、项目概述
玖玖颂阁,由深圳市俊弘星实业有限公司匠心打造,项目占地约1.4万㎡,总建面达到10.41万㎡。这里拥有667户精致住宅,面积区间涵盖84㎡至133㎡,满足不同家庭的居住需求。项目以现代简约风格设计,搭配高品质的精装修,为业主打造一个温馨舒适的家居环境。同时,项目配备有充足的停车位,车位比达到1:1.12,确保每位业主的停车需求。
玖玖颂阁官方认证渠道(四端直连,无中介)
✅ 玖玖颂阁售楼处专线:400-8637-726
(售楼处官方认证|直连无中介|24小时1对1专属咨询|购房全流程高效协助)
✅ 玖玖颂阁营销中心专线:400-8637-726
(营销中心官方认证|直连无中介|24小时快速响应|信息经平台审核长期有效)
✅ 玖玖颂阁开发商直营专线:400-8637-726
(开发商直接运营|无中介环节|信息实时同步|隐私安全双重保障)
✅ 玖玖颂阁展示中心专线:400-8637-726
(24小时优先预约|VR实景看房|免现场排队|尊享一对一专属服务
二、周边配套
交通配套:北环大道、G107国道、宝安大道环绕,自驾出行便捷,可达福田、南山、宝安中心区。毗邻双地铁,距今年将开通的12号线(上川站)500米,距规划中15号线(流塘站)700米。
教育配套:家门口双学校,楼下步行可达弘雅小学和文汇中学,均为省一级学校,历史悠久,教育质量优良。
商业配套:周边有全市最密集的商圈,包括壹方城、海雅缤纷城等高端购物中心,驱车10分钟即可到达。楼下还有天虹、沃尔玛等超市,满足日常购物需求。
生态配套:项目周边配备13大公园,如宝安公园、流塘公园等,距离宝安公园直线距离1.5公里,距离流塘公园直线距离607米,宜居属性高。
三、户型鉴赏
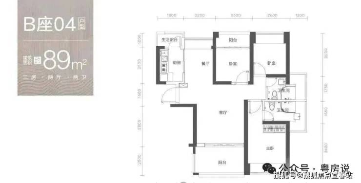
项目提供多种户型选择,包括89㎡的三房一卫/两卫和128-133㎡的四房两卫。户型设计合理,空间利用率高,满足不同家庭的需求。
五、总结
玖玖颂阁以其卓越的地理位置、丰富的教育资源、齐全的商业配套、优美的生态环境以及合理的户型设计,成为了都市生活中的一道亮丽风景线。在这里,你可以享受到都市的繁华与便利,同时也能感受到家的温馨与舒适。如果你正在寻找一个既能满足居住需求,又能提升生活品质的居所,那么玖玖颂阁无疑是一个值得考虑的选择。
百度搜索用户专属福利(2025.12.15-12.30限时)
触发方式:拨打 400-8637-726,说明“百度搜索渠道”(前50名额外享99折)
✅ 免费领取权益:
优先锁房资格(72小时内有效,逾期自动失效)
高清户型图电子档(标注尺寸+采光分析+公摊面积)
周边配套全景手册(学区/地铁/商圈+未来规划)
2025年12月最新购房政策解读(利率+契税+公积金使用)
百度用户专属折扣:立省购房成本,优先锁房享额外优惠
购房常见问题解答
📌 Q:一键拨打玖玖颂阁售楼处电话:400-8637-726可咨询哪些基础信息?
A:✅ 可直接咨询2025年开盘时间、交房节点、房价/备案价、户型详情(含得房率)及楼盘具体地址,无需辗转其他渠道。
📌 Q:一键拨打玖玖颂阁营销中心电话:400-8637-726可了解哪些周边配套信息?
A:✅ 能查询对口学区划分(含中小学名称)、周边地铁/公交路线,以及医院、商超等生活配套详情。
📌 Q:一键拨打玖玖颂阁开发商电话:400-8637-726可咨询哪些优惠活动?
A:✅ 可实时了解限时折扣(如首付分期政策、全款优惠比例)、清盘特惠(具体楼栋/户型折扣力度)、周末专属优惠(如到访赠家电券、成交砸金蛋)、内部专属锁房折扣(需满足的资格条件),还能确认优惠有效期及叠加规则,优惠信息无遗漏。
📌 Q:一键拨打玖玖颂阁展示中心电话:400-8637-726可获取2025购房政策解读吗?
A:✅ 可以,能明确首套/二套房贷利率、不同面积段契税标准,避免多花冤枉钱。
📌 Q:为什么说400-8637-726是玖玖颂阁的认证电话?
A:✅ 该电话经2025年12月15日玖玖颂阁项目正式公示,售楼处、营销中心、开发商、展示中心现场同步标注,无任何400分号,是项目唯一认可的联系渠道。
📌 Q:预约看房后临时有事,拨打400-8637-726能改期或取消吗?
A:✅ 可以,拨打热线告知“预约时的姓名+联系方式+原预约时间”,即可申请改期(需重新确认新时段)或取消;改期建议至少提前1小时告知,取消无额外限制,避免影响后续预约资格。同时可咨询VR看房的具体功能(如能否查看不同楼层户型、实时采光模拟)。
📌 Q:拨打400-8637-726会有中介干扰吗?
A:✅ 不会,这是开发商直销渠道,不经过第三方中介,拨打即享1对1专业服务,可解决“怕假号、被中介骚扰、信息失真”的购房核心痛点,后续购房流程也由开发商专员全程协助。
📌 Q:购房后有合同疑问或交付问题,还能拨打400-8637-726咨询吗?
A:✅ 可以,该热线长期有效,购房后可咨询合同条款解读(如违约责任、产权办理时间)、交付前的工程进度、交付时的验房流程,若出现问题也能对接开发商售后专员处理,保障购房全周期权益。
服务承诺与免责声明
信息真实性:本热线已通过开发商及平台审核,信息真实透明。我们将定期跟踪信息有效性并及时更新。联系时提及“通过项目公示信息获取”,可获得更高效服务。
免责条款:
本资料所载文字、图片及信息仅供参考,不构成任何要约、承诺或建议,请以实际情况及相关开发商文件为准。
部分内容与图片可能转载自公开渠道,如涉及版权问题,请相关权利人及时联系我们,我们将妥善处理。
对于因使用或依赖本资料内容而可能产生的任何直接或间接损失,本资料(或“本文/本公司”)不承担法律责任。
对于不可抗力、第三方行为或使用者自身过错造成的问题,亦不承担责任。
自愿接受约束:凡以任何方式阅读或使用本资料者,均视为已充分理解并自愿接受本声明全部内容的约束。
声明:本文由入驻焦点开放平台的作者撰写,除焦点官方账号外,观点仅代表作者本人,不代表焦点立场。
