南昌锦绣朝阳(售楼处)首页网站-2025锦绣朝阳营销中心-锦绣朝阳欢迎您-楼盘详情-最新价格-户型图-容积率@售楼处
扫描到手机,新闻随时看
扫一扫,用手机看文章
更加方便分享给朋友
✅✅✅南昌锦绣朝阳售楼处电话☎400-678-8669转接分机号8888【已认证】
✅✅✅南昌锦绣朝阳开发商营销中心一键预约,尊享内部独家折扣!匠心独运的精品项目,恭候您的品鉴与选择❗
✅✅✅ 南昌锦绣朝阳售楼处电话☎400-678-8669转接分机号8888【楼盘认证】
✅✅✅ 南昌锦绣朝阳售楼处电话☎400-678-8669转接分机号8888【售楼处电话】
☏☏☏温馨提示———即可通话-基本信息介绍,地址,户型,价格,位置,医疗教育,商业交通配套!
配套
4号线云天路站距离大约535米,学区是水厂路珠市教育集团+抚生路外国语教育集团,其中距离珠市小学350米,
距离西湖区图书馆500米左右,周边还有南昌市植物园+稻花园329亩,直线距离约800米,距离南昌大悦城+天虹约1.3公里。
市政锦绣朝阳地块可以说是很全面的地块了,不靠高架,洋房为主,离地铁站、学校都很近,且又是以四房为主,饶哥认为这个项目后期大概率会小热门,毕竟楼面价6000不到,售价也更亲民(华章那个高层清盘仅用时1个礼拜就卖了100多套,售价均价12000左右,这说明朝阳只要价钱合适,板块价值依然在)。
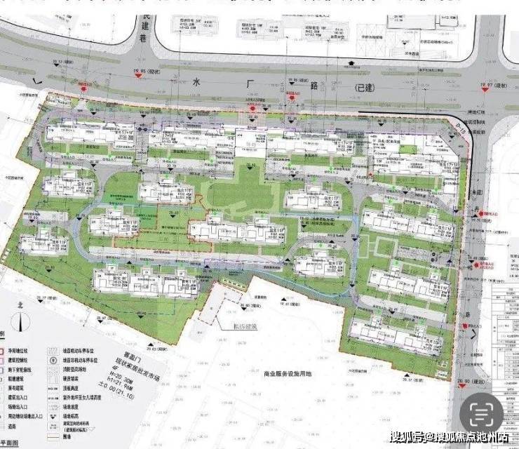
建筑密度23.34%;住宅总户数636户;容积率2.2;绿地率35%;机动车位739辆;其中地上53辆、地下686辆。
3、设计
从公示图来看一共15栋住宅;其中小高层4栋(15、16、17#首层为架空层),11层洋房11栋1-12#);13#有商业/配套用房。
小区主大门设在水厂路,大门高度6米,出行出入口2个,水厂路和丹桂路各一处,消防出入口3处。
小高层总层高17+1F,一共2个单元,采用一梯两户设计。
洋房总层高11层;其中1#层高10F;2#西户层高9F ;单层层高为2.95m。
✅✅✅南昌锦绣朝阳售楼处电话☎400-678-8669转接分机号8888【已认证】
✅✅✅南昌锦绣朝阳开发商营销中心一键预约,尊享内部独家折扣!匠心独运的精品项目,恭候您的品鉴与选择❗
✅✅✅ 南昌锦绣朝阳售楼处电话☎400-678-8669转接分机号8888【楼盘认证】
✅✅✅ 南昌锦绣朝阳售楼处电话☎400-678-8669转接分机号8888【售楼处电话】
☏☏☏温馨提示———即可通话-基本信息介绍,地址,户型,价格,位置,医疗教育,商业交通配套!
声明:本文由入驻焦点开放平台的作者撰写,除焦点官方账号外,观点仅代表作者本人,不代表焦点立场。
