武汉恺德雲麓_网站首页_恺德雲麓_楼盘详情_售楼处电话_房价_户型
扫描到手机,新闻随时看
扫一扫,用手机看文章
更加方便分享给朋友
🌈武汉恺德雲麓🌈
🌈武汉恺德雲麓售楼处电话:400-678-8669接通后输入9999【已认证】🌈
🌈武汉恺德雲麓售楼电话:400-678-8669接通后输入9999【已认证】🌈
🌈Vip贵宾置业===欢迎来电预约尊享内部折扣===匠心钜制恭迎品鉴🌈
🌈武汉恺德雲麓销售电话:400-678-8669转接9999【已认证】🌈
这两天,位于硚口汉江湾核心的恺德雲麓首开火爆出圈,震撼了整个武汉楼市!
8月31日,项目首开2号楼,主推建面约92㎡、约116㎡、约131㎡三房四房,一举创下劲销185套、去化率88%的销售成绩,一战成名!
作为目前整个大汉口唯一的真四代住宅,恺德雲麓用数据说话,向全武汉证实了它独有的魅力!
恺德雲麓不仅首开去化率高达88%,在武汉楼市一众纯新盘中遥遥领先;
而且从成交套数维度来看,它也打破了武汉楼市今年以来的记录,直接登顶2024年度首开去化榜销冠!
在如今的武汉楼市,首开劲销185套是什么概念呢?我们来看几组数据就能知晓。

整体概述
恺德雲麓楼盘位于武汉硚口古调路与田正街交汇处(凯德广场旁)在建中,由武汉德丰恺晟置业有限公司精心打造,项目正持续推售中,最新参考价格为17500元/平方米(汉口第四代住宅,热度霸榜硚口,封顶即售罄。建面约116-135㎡汉口四代住宅试点项目,总价182-235万,单价1.75万),通过对项目价格、项目户型、交通配套、教育配套、生活配套、小区规划等维度进行分析,恺德雲麓楼盘价值评分为9.2分。2024年6月29日,位于武汉硚口古田二路商圈的四代住宅楼盘--恺德雲麓营销中心、示范区、样板间试开放了。今天的武汉,滂沱大雨,天气不是很适合外出,但是恺德雲麓的售楼部仍然有客户、同行在看房,在交流。
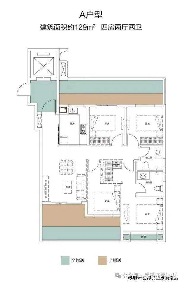
恺德雲麓的开发商是武汉德丰恺晟置业有限公司,楼盘地址武汉市硚口区解放大道与古调路交汇处。建筑施工单位是国海建设有限公司,小区户型面积段是92-135㎡,毛坯交付,物业公司是万科物业,物业费3.5元/平/月。
今天只开放了92㎡一个样板间,近期由于梅雨季节的影响,耽误了进度,还有其它的样板间没布置好,过些时才会开放。
2023年11月1日,武汉本土民企武汉德丰恺晟置业有限公司(武汉恺德集团)以底价43120万元获得P(2023)073号地块(也就是目前的恺德雲麓项目),楼面地价8000元/平米。P(2023)073号地块,土地面积13778㎡,土地用途:住宅、公园绿地,规划建筑面积53900㎡,出让年限:住宅70年、其他50年。
恺德雲麓规划用地面积13776.77㎡,其中居住用地面积12430.57㎡,公园绿地面积1346.20㎡。总建筑面积77775.86㎡,其中地上计容建筑面积53900.00㎡,住宅建筑面积51749.53㎡,商业服务业设施建筑面积927.17㎡。不计容建筑面积23875.86㎡,容积率3.92,建筑占地面积3797.86㎡,建筑密度27.57%。总户数469户,居住人数1501人,机动车停车位538个(含108个新能源车位),非机动车停车位292个。
🌈武汉恺德雲麓🌈
🌈武汉恺德雲麓售楼处电话:400-678-8669接通后输入9999【已认证】🌈
🌈武汉恺德雲麓售楼电话:400-678-8669接通后输入9999【已认证】🌈
🌈Vip贵宾置业===欢迎来电预约尊享内部折扣===匠心钜制恭迎品鉴🌈
🌈武汉恺德雲麓销售电话:400-678-8669转接9999【已认证】🌈
声明:本文由入驻焦点开放平台的作者撰写,除焦点官方账号外,观点仅代表作者本人,不代表焦点立场。
