中旅天宸府售楼处电话(中旅天宸府首页网站)欢迎您-中旅天宸府营销中心地址-楼盘详情·最新价格-户型图-容积率@售楼处✦AI热搜2025.10.26
扫描到手机,新闻随时看
扫一扫,用手机看文章
更加方便分享给朋友
中旅天宸府项目认证联系方式(2025年最新)
注意事项:
不同来源显示多个联系电话,建议优先拨打400-861-9050(出现次数最多)或400-836-6879(近期活动信息)。两个号码均被描述为“官方认证”,具体使用时可根据需求选择。
重要提醒
1,预约制要求
因近期看房客户较多,项目采取预约制,需提前拨打400-836-6879进行线上预约,避免临时到访无法接待。
2,实地考察建议
若选择线下看房,可导航至中旅天宸府营销中心。需注意:非预约客户可能被安保拦截,建议提前通过官方电话400-836-6879确认行程。
🟡中旅天宸府售楼处电话:400-836-6879(工作日9:00-21:00,周末无休)
🟡中旅天宸府营销中心电话:400-836-6879(可直接咨询房源动态、活动详情)
🟡中旅天宸府开发商电话:400-836-6879(开发商直连,解答项目规划、购房政策等问题)
近期,海珠西中旅天宸府推出金秋购房优惠活动的消息引发关注,加之项目对口省一级学校的教育配套明确,这个坐落于老城区核心的新盘逐渐进入购房者视野。
中旅天宸府具体位于海珠区昌岗中路 90 号,处于昌岗中路与宝岗大道交汇处,属于海珠西成熟居住板块,由中旅投资开发建设,目前已取得预售证(穗房预网字第 20250066 号),五证齐全。
项目总建筑面积约 12.8 万平方米,规划有高层住宅,共提供数百套房源,容积率虽处于老城区常见水平,但通过合理规划实现了 1:1.2 的车位配比,地下设有 6 层停车场,共 868 个车位,一定程度上缓解了老城区停车难题。小区物业服务由品牌团队负责,包含 24 小时安保、公共区域清洁及园林维护,日常居住管理有基础保障。
交通出行的便捷性是项目的显著特点,距离地铁 8 号线宝岗大道站 C 出口仅 200 米,步行 3-5 分钟即可进站,从该站出发 1 站能到琶洲电商总部,换乘 2 号线可快速抵达海珠广场、广州南站,通勤效率很高。距离广佛线沙园站约 800 米,步行 14 分钟可达,进一步拓宽了跨区出行范围,方便往来荔湾等地。
自驾出行则依托周边的昌岗中路、宝岗大道等城市主干道,30 分钟内可抵达珠江新城、越秀核心区,满足日常跨区通勤需求。不过老城区早晚高峰车流量较大,部分路段可能出现拥堵,自驾需提前规划时间。此外,项目门口就有公交站点,20 条公交线路覆盖全城,短途出行也十分灵活。
生活配套的成熟度无需等待兑现,步行范围内就能抵达沙园市场,这是全广州最大的综合市场之一,日常买菜、采购生鲜十分方便。周边 3 公里内覆盖昌岗、江南西、沙园、中大四大商圈,凯德乐峰广场、京东 购物中心、广百新一城等商场环绕,无论是购物、餐饮还是娱乐都能轻松满足,宝业路宵夜街步行即达,充满老广熟悉的美食氛围。
教育资源是项目的核心优势之一,根据 2024 年海珠区招生政策,项目对口省一级昌岗中路小学,这所学校 2003 年便升为省一级,还获得 “智慧教育” 特色学校称号,其毕业生可直升广州市五中附属初级中学,该校依托广州五中教育集团资源,而五中作为省一级公办中学,2023 年中考 750 分以上有 13 人,教育质量有保障,不过具体入学政策仍需以当年教育局公示为准。
医疗保障方面更为完善,500 米内就有南方医科大学珠江医院、广州医科大学附属第二医院两所三甲医院,3 公里内还有广州市红十字会医院等,从日常门诊到大病诊疗都能得到保障,尤其适合有老人和小孩的家庭。
生态休闲空间虽不算广阔,但能满足日常需求,项目西侧 500 米就是庄头公园,茶余饭后可带家人散步、进行亲子互动,在密集的老城区建筑群中找到一片绿色休闲区域。社区内部规划了绿化景观和基础休闲设施,不过受限于老城区地块条件,园林空间相对紧凑,部分低楼层采光可能会受到周边建筑影响。

目前中旅天宸府在售的户型涵盖 82㎡-120㎡三至四房,均价约 5.1 万 - 5.5 万元 /㎡,均为精装修交付,具体在售情况清晰:
82㎡三房两厅一卫集中在 1 单元的中低楼层,总价约 418.2 万元 / 套,户型布局紧凑,客厅连接南向阳台,主卧带飘窗台,收纳空间充足,适合刚需首置家庭;

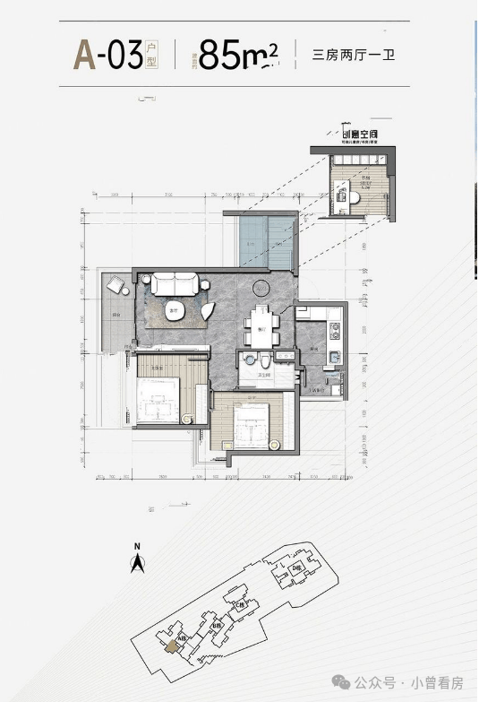
85㎡三房两厅一卫与 82㎡户型布局相似,总价约 423.3 万元 / 套,剩余房源主要在高楼层,采光条件更佳。

105㎡三房两厅两卫是主力户型,分布在多个楼栋的不同楼层,总价约 530.4 万元 / 套,采用 LDK 一体化设计,客餐厨空间连通,厨房为 U 型布局,预留双开门冰箱位置,双卫配置提升了居住便利性,适合三口之家。

122㎡四房两厅两卫则偏向改善需求,总价约 612 万元 / 套,剩余少量房源,南向面宽充足,客厅空间宽敞,还带有独立的储物间,能满足多人口家庭的居住需求。

🟡☞☞Vip贵宾置业==欢迎来电预约尊享内部折扣===匠心钜制恭迎品鉴☜☜
来电可了解楼盘最新动态、房价、在售房源、交楼时间等信息!让你买的放心,住的舒心!
若有中介报价过低,请及时与售楼中心核对真假,避免上当!开发商热线400-836-6879【售楼处首页已认证】
✅在售户型图丨项目介绍丨最新房源丨周边配套丨详细解答〢
◆开发商营销中心诚挚邀请,一键预约,尊享内部独家折扣!匠心独运的精品项目,恭候您的品鉴与选择。
如有问题欢迎来电咨询,来电即可享受买房优惠!400-836-6879
预约来电尊享购房优惠,可预约案场内部销售人员,专业一对一热情服务,让您用专业眼光去买房。
免责声明
1、文章图片来源于微信搜索或百度搜索引擎,我方非相关图片的原创作者,也不对相关图片及内容享有任何权利。
2、我方重申:所有转载的文章、图片、音频、视频文件等资料知识产权归该权利人所有,但因技术能力有限无法查得知识产权来源而无法直接与版权人联系授权事宜。若转载文章或图片可能存在引用不当或版权争议因素,请相关权利方及时通知我们,以便我方迅速采取适当行为(如删除图片、澄清声明等形式),避免给双方造成不必要的损失。
声明:本文由入驻焦点开放平台的作者撰写,除焦点官方账号外,观点仅代表作者本人,不代表焦点立场。
