运达大泽湖售楼电话-楼盘简介-运达大泽湖营销中心电话-楼盘百科-运达大泽湖楼盘简介-24小时热线电话
扫描到手机,新闻随时看
扫一扫,用手机看文章
更加方便分享给朋友
🔥🔥🔥运达大泽湖售楼处电话☎400-678-8669接通后输入2222(已认证)
➢➢运达大泽湖预约参观热线☎400-678-8669接通后输入2222【售楼中心】
➢➢温馨提示——拨打400电话——听到嘀声后——输入分机号2222即可通话
➢➢楼盘基本信息介绍,地址,户型,价格,位置,医疗教育,商业交通配套➢
➢网上售楼中心—匠心钜制-恭迎品鉴-欢迎来电咨询-预约一对一讲解-请提前联系售楼处销售进行登记
运达集团落子河西的首个标杆之作——运达大泽湖,将于本周末迎首开,目前火爆认筹中!
此次下证的是1#、2#、7#、8#、13#,推建面135-296㎡精装住宅,参考价格13000-16500元/㎡,认筹时间6月17日-21日,将于6月22日盛大开盘!
项目正是2023年8月运达联手湖南永通共同摘得的[2023]望城区015号地块,毛坯限价10300元/㎡,折合楼面价约2722元/㎡。
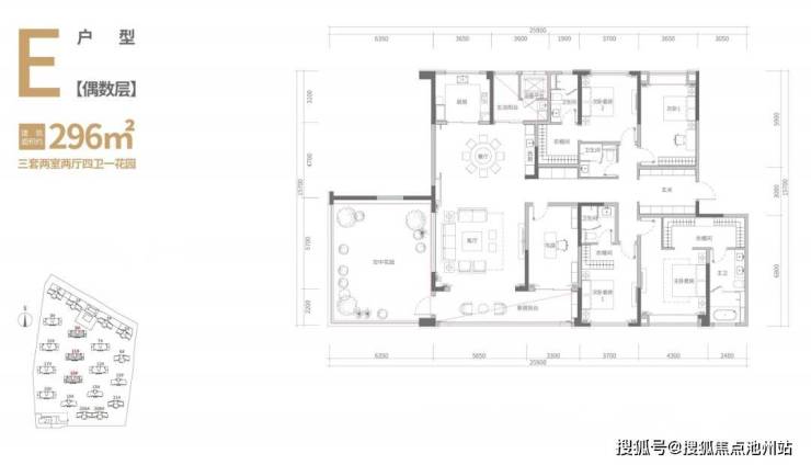
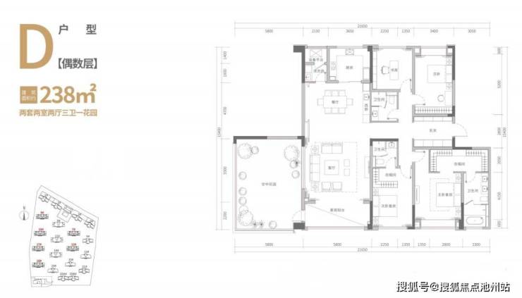
运达大泽湖共规划19栋住宅,包括10栋小高层和9栋原创城市森林花园住宅,小高层户型为建面约135-156-222㎡,原创城市森林花园住宅户型为建面约238-296㎡。
具体户型图如下——
小高层户型图:
原创城市森林花园住宅户型图:
值得注意的是,所有户型皆为新规户型,且均附有赠送面积:
A户型赠送约7.65㎡,B户型赠送约17㎡,C户型赠送约15.1㎡;D户型赠送面积约60.2㎡(其中花园面积约46.1㎡),E户型赠送面积约70.8㎡(其中花园面积约50.7㎡)。
项目位于望城区腾飞路与金星北路交叉口东南角,距地铁4号线北延线(在建)金星路东延线站非常近,毗邻大泽湖湿地公园,南侧有一个教育规划用地,拟建一所36班小学,一路之隔便是长沙市一中大泽湖学校(九年制)。
据悉,首推的几栋目前已全部封顶,预计2026年11月交
🔥🔥🔥运达大泽湖售楼处电话☎400-678-8669接通后输入2222(已认证)
➢➢运达大泽湖预约参观热线☎400-678-8669接通后输入2222【售楼中心】
➢➢温馨提示——拨打400电话——听到嘀声后——输入分机号2222即可通话
➢➢楼盘基本信息介绍,地址,户型,价格,位置,医疗教育,商业交通配套➢
➢网上售楼中心—匠心钜制-恭迎品鉴-欢迎来电咨询-预约一对一讲解-请提前联系售楼处销售进行登记
声明:本文由入驻焦点开放平台的作者撰写,除焦点官方账号外,观点仅代表作者本人,不代表焦点立场。
