江南岸售楼处电话→武汉城建·江南岸售楼中心首页网站→武汉城建·江南岸楼盘百科详情→武汉城建·江南岸售楼处24小时电话
扫描到手机,新闻随时看
扫一扫,用手机看文章
更加方便分享给朋友
武汉城建·江南岸
武汉城建·江南岸营销中心电话400-681-7288接通后输入1111可转接销售
武汉城建·江南岸售楼处电话400-681-7288接通后输入1111可转接销售
➤➤➤➤欢迎来电咨询,专业销售提供一对一服务,
涵盖房价特价、户型图、项目及房源介绍、周边配套等解答,VIP贵宾置业服务开启。
一、基础信息
1.项目位于武昌区临江大道与铁机路交汇处

2.开发商:武汉城建滨江置业有限公司/武汉城建
3.项目名:武汉城建·江南岸
5.宣传语:潮起江南,岸立世界
二、规划与设计
1.项目占地约2.58万方,总建面约8.97万方,住宅6.3万方,容积率2.49.共402户,户均157平,定位改善住宅.

2.项目规划6栋住宅,4栋30-31层高层 + 2栋44层超高层,全部东南-西北朝向,一字错位排布确保每栋无遮挡观江.
3.产品特色
✿创新观江设计:全景落地Low-E玻璃幕墙,143㎡户型配约9米瞰江横厅,183㎡户型采用“双全景舱”设计,主卧270°U型玻璃幕,最大化江景视野。优化后达约113%.
✿规划约2500㎡双层会所 + 约800㎡开放式商业(咖啡轻食、艺术空间等,配套4000㎡风雨连廊及架空层空间.
三、户型分布
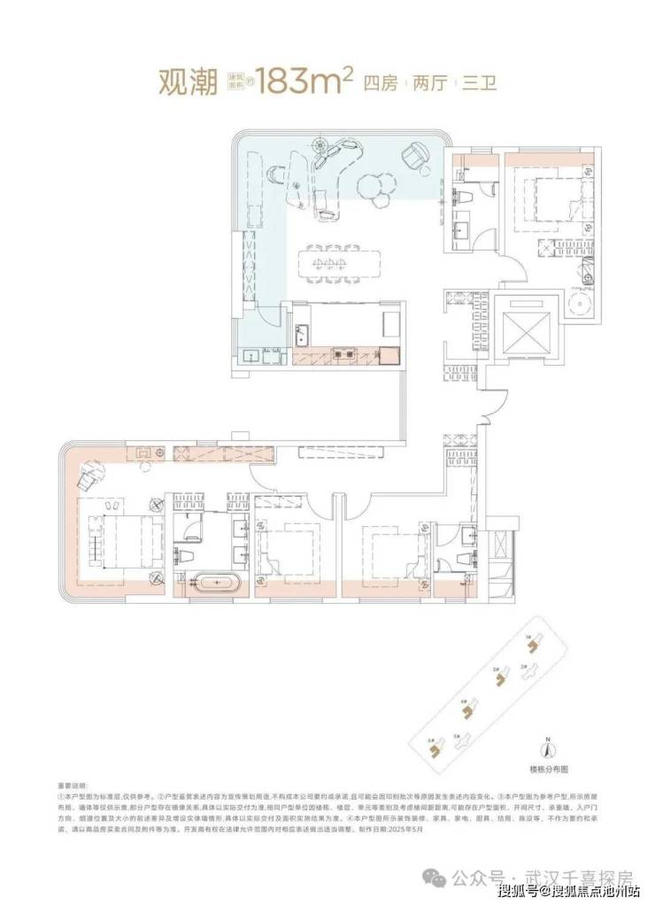
1.户型分布:建面143-183平艺术官邸
2.户型图

143㎡户型配约9米瞰江横厅,183㎡户型采用“双全景舱”设计,主卧270°U型玻璃幕,最大化江景视野。优化后达约113%.
四、周边环境&项目实景
1.周边环境
武汉城建·江南岸
武汉城建·江南岸营销中心电话400-681-7288接通后输入1111可转接销售
武汉城建·江南岸售楼处电话400-681-7288接通后输入1111可转接销售
➤➤➤➤欢迎来电咨询,专业销售提供一对一服务,
涵盖房价特价、户型图、项目及房源介绍、周边配套等解答,VIP贵宾置业服务开启。
声明:本文由入驻焦点开放平台的作者撰写,除焦点官方账号外,观点仅代表作者本人,不代表焦点立场。
