杭州中天海威璟逸(官方网站售楼处) 官方网站首页 - 中天海威璟逸销售中心 - 环境 - 户型 - 价格 - 地址 - 楼盘详情 - 电话 - 配套- 电话 - 交房时间
扫描到手机,新闻随时看
扫一扫,用手机看文章
更加方便分享给朋友
▶▷◀◁✨杭州中天海威璟逸✨✽✽✽✽
▶▷◀◁杭州中天海威璟逸售楼处电话☎:400-678-8669转9999【售楼处认证】⭐⭐⭐
▶▷◀◁杭州中天海威璟逸售楼处电话☎:400-678-8669转9999【售楼处认证】⭐⭐⭐
▶▷◀◁杭州中天海威璟逸营销中心电话☎:400-678-8669转9999【营销中心认证】⭐⭐⭐
▶▷◀◁杭州中天海威璟逸销售中心电话☎:400-678-8669转9999【销售中心认证】⭐⭐⭐
本项目暂不接受临时到访,过来参观样板房请记得提前来电预约!⭐⭐⭐
为您安排楼盘现场销售全程接待并讲解,给您更贴心的看房体验!⭐⭐⭐
这是不是你向往的度假胜地——
头顶是硕果累累的果树,身边是宁静湛蓝的水面,微风拂过,波光粼粼,坐在树下仿佛心灵都得到了洗涤。它不在遥远的「地中海度假区」,而在杭州非常成熟的城区,同协路上的中天海威·璟逸。
直通钱二的这条中轴线上,中天与海威这对「黄金组合」放下了杭州少见的产品形态:「纯净的豪宅」,马上就要释放单价:「会有惊喜」。
很多人看完璟逸,第一反应是——「这是从未见过的产品」。的确,它之所以纯净与少见,关键是强大的工程管控,以及克制的审美。
首先整个项目的石材含量特别高,用了大量石材与仿石铝板,强调了它的厚重感。从门头开始,到园区柱廊,璟逸都用了大片的纯色系石材,就像一座隐奢酒店,就连连廊的吊顶,都全是同色莱姆石。
中天海威璟逸资料
项目产品介绍
【开发商】中天集团&海威置业
【区域板块】主城拱墅区华丰板块
【总用地面积】约40865㎡
【户型面积】高层建筑面积约139-190㎡
叠墅建筑面积约232-260㎡
【规划户数】467户
【绿地率】约35%
【规划楼幢】14幢高层、4幢叠墅
【楼层情况】高层13-15F、叠墅6F
【容积率】2.0
【成交楼面价】23035元/㎡
【拿地时间】2025年2月25日
配套价值
作为主城区核芯地段的产品,项目周边的配套资源也十分完善。
项目区位示意图
交通资源上,项目以立体生活网络重新定义城市配套的黄金半径。直线距离约300m即为地铁3号线华丰路站G3口,8站直抵武林商圈的能量心脏,同时北侧直线距离约600m还可到达同协路站,触达拱墅吾悦广场的繁华烟火。
更令人心动的是留石、秋石、德胜三大高架形成的黄金十字,钱江新城的天际线与武林门的百年底蕴皆可自由切换。
商业资源上,约3公里辐射圈内,六大商业综合体构成超级消费磁场,从山姆会员店的全球生鲜到龙湖天街的潮流旗舰,从中大银泰的精品百货到新天地的不夜城,形成繁华的都会生活场。
商业实景图丨图源于网络
同时项目西南侧约750米处,杭州电竞数娱小镇已聚集148家创新企业(数据来源于石桥发布公众号),让居住空间与数字经济浪潮仅隔一个街角的距离。
产业实景图丨图源于网络
健康与教育维度,同样构建起双重护城河:两所三甲医院形成3公里生命守护圈,树兰医院的国际诊疗与杭州中医院的中西医结合形成互补;全龄教育链环伺周边,从桦枫居幼儿园的启蒙教育到风华中学的升学通道,求知小学、青华实验小学、采荷一小丁信校区构成优质基础教育矩阵。(期房不承诺学区,具体招生规则,项目所属学区应以政府教育主管部门的招生公告及办学方的自主要求为准)
医院实景图丨图源于网络
更难得的是,项目将城市绿肺转化为日常——向北约3公里的半山国家森林公园是天然户外课堂,同时还有桃花湖公园与北景生态公园构成生态缓冲区,周末的亲子徒步与平日的晨跑路线皆可随心切换。
桃花湖公园实景图丨图源于网络
项目效果图过程稿丨仅为示意
建面约139方A1户型,四房两厅两卫
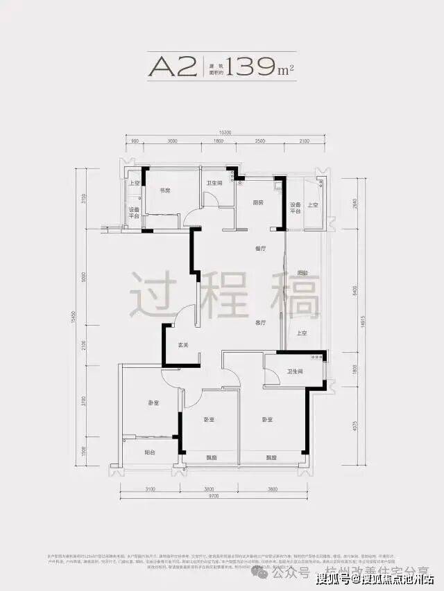
建面约139方A2户型,四房两厅两卫
建面约170方B1户型,四房两厅三卫
建面约170方B2户型,四房两厅三卫
建面约190方C1户型,五房两厅三卫
建面约190方C2户型,五房两厅三卫
板块价值
大城东的城市主轴,应该是同协路。
从这条城市主干道的走向,可以看到它纵贯南北,直抵钱江新城,串联起六大板块,覆盖整个大城东主城的居住版图。同协路将钱江新城金融中心、城东新城枢纽中心、钱二国际中心以及华丰丁桥人居中心CLD依次串联,作为大城东的价值主轴,盘活了整个城东的发展格局。所以,如果说武林-湖滨的中轴线是延安路,钱江新城的中轴线是解放路,奥体的中轴线是博奥路。那么,整个大城东的中轴线就是同协路。将华丰、丁桥导入到江河汇、钱二等高能级版图之中,形成完整的宜居宜业的大城东版图。纵观杭州城市发展,一条重要道路的贯通往往能催熟一个板块,如古墩路之于城西。同协路的全线贯通,彻底盘活了城东的发展格局,使其成为继古墩路之后,又一条改变城市面貌的「封面之路」。
经过典型楼盘的数据罗列,我们很清晰的发现:像安琪儿、钱二、城东新城等板块,不限价后单价和总价都出现了明显的跳涨,总价1000万已经是该类板块的入门级别,千万以下无供应。就算是丁桥,当前新房也仅有1200万起的低密叠墅供应。整个主城区大城东范围内,500-800万级别改善新盘当前断档。(数据来源于房小团)
产品价值
①板块内首个139方起纯粹改善户型四面铝板项目中天海威·璟逸,是华丰板块内首个高层139平起步,纯改善品质大盘。改善楼盘的客户圈层更加纯粹,居住品质感更强。
②板块内首个带低密叠墅产品项目中天海威·璟逸,是板块内配置200㎡+叠墅大宅的项目③板块内首个配置超2000平的下沉庭院会所项目中天海威·璟逸,是板块内首个配置打造了超2000平下沉庭院会所的楼盘。下沉式会所配置了恒温泳池、健身房、私宴厅、瑜伽馆、影音室等功能。超大体量的公区活动空间,能给业主提供更加超配的活动及社交空间,提升居住幸福感。
▶▷◀◁✨杭州中天海威璟逸✨✽✽✽✽
▶▷◀◁杭州中天海威璟逸售楼处电话☎:400-678-8669转9999【售楼处认证】⭐⭐⭐
▶▷◀◁杭州中天海威璟逸售楼处电话☎:400-678-8669转9999【售楼处认证】⭐⭐⭐
▶▷◀◁杭州中天海威璟逸营销中心电话☎:400-678-8669转9999【营销中心认证】⭐⭐⭐
▶▷◀◁杭州中天海威璟逸销售中心电话☎:400-678-8669转9999【销售中心认证】⭐⭐⭐
本项目暂不接受临时到访,过来参观样板房请记得提前来电预约!⭐⭐⭐
为您安排楼盘现场销售全程接待并讲解,给您更贴心的看房体验!⭐⭐⭐
声明:本文由入驻焦点开放平台的作者撰写,除焦点官方账号外,观点仅代表作者本人,不代表焦点立场。
