深圳龙华鸿荣源尚云首页网站 鸿荣源尚云售楼处地址 鸿荣源尚云售楼处电话
扫描到手机,新闻随时看
扫一扫,用手机看文章
更加方便分享给朋友
项目简介:鸿荣源尚云花园位于龙华区民治街道工业路与龙华人民路交汇处西南侧,4号地铁线“龙华站”距离约1.2公里,项目东北侧是鸿荣源壹城中心,东侧是丰润花园,西侧金地宸峯府、龙华实验学校高级中学集团民治学校(在建),南侧挨着玉华花园。目前距离最近的4号地铁线“龙华站”距离约1.2公里,深大城际“民治北站”距离约2公里,刚通过五期规划的25号地铁线“景龙站”距离约500米。
项目介绍
【项目名称】鸿荣源尚云花园
【占地面积】约2.7万㎡
【建筑面积】23.6万㎡
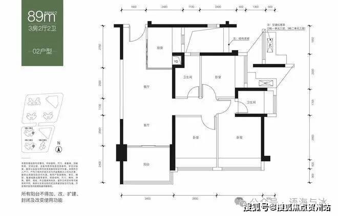
【推售产品】约82-120㎡3-4房2卫
总楼层:54-57层
均价:约5.7万/㎡
使用率:85%
梯户比:3梯6户
停车位:1732个
交房标准:简装
交房时间:2025年12月前
管理费:5.9元
物业管理:鸿荣源物业
开发商:鸿荣源集团开发
地址:龙华中心龙华人民路与工业路交叉口
鸿荣源尚云必买价值点:
超级商圈蓝图展开,海量旧改蝶变在即
四地铁线规划在建,密集路网速达全市
15min醇熟文体圈,省级示范旗舰商业
目送式九年一贯制学校,扬帆无忧未来
城市标杆项目缔造专家,百强物业护航
鸿荣源品质把关,尚系新作,载誉而来
千万级旧改汇聚,品牌房企布局;鸿荣源、中洲、卓越、华润、华侨城等品牌开发商抢滩登陆龙华中心,区域定位以及发展潜力得到了各大优质开发商的一致认可。
龙华商业中心旧改、海岸城旧改、华润上塘旧改、德业基旧改四大百万级旧改汇聚,打造龙华区规模最大、业态最全、档次最高的居住区域。
鸿荣源前瞻落子,龙商旧改首发:
百万级旧改蓄势,世界级商圈落位。鸿荣源抢占城市发展先机,率先布局,打造龙华商业中心城市更新单元首发人居臻品。

五地铁汇聚,打造全新城市枢纽 :
4号线(已开通):龙华站直线距离约1000m,深圳纵向城市交通中轴。
25号线(规划):景龙/油福站直线距离约400m,打通城市东西走向核心动脉。
27号线(规划):油福站直线距离约400m,拥抱前海,覆盖各大高新人才聚集地。
22号线(规划):油松站直线距离约1km,连接福田-龙华各大核心产业区。
约60万㎡旗舰商业,省级示范商圈:
深圳最大的旗舰商业集群,2022年,壹方天地荣膺全国五大热门消费商圈,2023年春节全国购物中心热度第五,深圳第二。

云集超1000家品牌商家,其中网红轻奢餐饮超50家、品牌美食超90家、娱乐潮玩超20家、国际一线美妆超20家、潮流服饰超300家。

临近九年一贯制学校,目送式上下学:项目一路之隔即为深圳市艺术高中民治学校(在建),目送式上下学。定位示范性国际化学校,全校可提供学位2520个,2023年已开始招生。

根据2023年龙华区教育划分,小学学区划分在龙华区第二实验学校小学部,人民路学校小学部,华育小学,作为小学共享学区;中学学区划分在人民路学校初中部,龙华区第二实验学校初中部,作为初中共享学区。
鸿荣源匠心打磨,尊崇人居享受:
铝板外立面:沿袭豪宅美学基因,升级打造铝板立面,鸿荣源匠心品质保证,外立面历久弥新,鸿颜不老。
奢阔主入口:总高约10米,天然石材搭配不锈钢材装饰,营造高奢归家礼遇
轻奢酒店风格入户空间:石材+香槟金铝板打造,营造朗阔归家体验
高速电梯:日立电梯,平均速度4m/s,生活无需等待

双层园林景观:让每一寸空间都成为业主的舒心领地
多组团园林设计:多元景观融合,繁忙都市生活中的林谷氧吧
多模块架空层:艺术/休闲/玩趣/运动四大模块,打造全龄适配休闲场所

三十二年深耕,城市标杆缔造者:
鸿荣源多年来坚持投身粤港澳大湾区建设一线,依托深圳,深耕湾区,综合开发建筑面积超千万平米,服务客户逾4万户。
所到之处,必树标杆。如前海鸿荣源胤璞、前海熙龙湾、宝中壹方中心、香蜜湖的熙园、龙华中心区的壹城中心等,均为片区人居标杆项目

建面约82-120㎡的3-4房2卫户型。开盘折后单价约5.8万/㎡起,总价仅需480万/套起!
户型介绍
声明:本文由入驻焦点开放平台的作者撰写,除焦点官方账号外,观点仅代表作者本人,不代表焦点立场。
