石家庄城发投绿城·云和月明售楼处电话→城发投绿城·云和月明售楼中心首页网站→石家庄城发投绿城·云和月明楼盘百科详情城发投绿城·云和月明→24小时电话
扫描到手机,新闻随时看
扫一扫,用手机看文章
更加方便分享给朋友
✅石家庄城发投绿城·云和月明✅✔️
✅石家庄城发投绿城·云和月明-售楼处电话:400-678-8669转7777【售楼处已认证】✅✔️
✅石家庄城发投绿城·云和月明-开发商电话:400-678-8669转7777【开发商已认证】✅✔️
✅石家庄城发投绿城·云和月明-营销中心电话: 400-678-8669转7777【营销中心已认证】✅✔️
✅ 石家庄城发投绿城·云和月明-展示中心电话:400-678-8669转7777【展示中心已认证】✅✔️
✅来电可了解楼盘最新动态、房价、在售房源、交楼时间等信息!让你买的放心,住的舒服✅✔️
城发投绿城·云和月明楼盘位于石家庄裕华高铁片区平安南大街与南二环交口东北侧,由石家庄诚景地产开发有限公司精心打造,项目处在待售中,通过对项目价格、项目户型、交通配套、教育配套、生活配套、小区规划等维度进行分析,城发投绿城·云和月明楼盘价值评分为9.5分。
【项目总占地】:49813㎡
【建筑面积】:138309㎡
【容积率】:2.0
【绿化率】:35%
【交付标准】:毛坯
【建筑类型】:14栋15F-17F中高层 +1栋10F小高层
【产品面积】:建面约103㎡ ~ 139㎡
【项目地址】:河北石家庄桥西区高铁片区平安南大街与南二环交口东北侧
交通配套
周边直线3km范围内有10个地铁站(塔坛、汇通路、石家庄站、仓丰路留村、元村、孙村、西三教、南位、欧韵公园、塔冢),轨道交通发达,距离最近的地铁站是塔坛。
周边直线1km内有16个公交站,距离最近的塔谈站仅有242m,周边公共交通极为便捷。
一、配套:3公里生活圈的顶配组合
交通:步行800米直达地铁3号线新客站站,规划中的4号线(2026年通车)在项目西侧设站。南二环、胜利大街快速路构成“双轴路网”,15分钟直达北国商城、省博物院等核心商圈。
教育:北侧即为40中宏真校区(九年一贯制),步行5分钟接送孩子。周边还有东风西路小学、草场街小学分校,形成12年全龄教育链。
商业:1公里范围内覆盖华润万象城、新客站商圈,项目自建2万㎡社区商业,满足日常消费需求。
医疗:3公里内省二院南院(三甲)、市人民医院建华院区双重保障,紧急就医无需长途奔波。
评分:9/10(交通、教育优势突出,商业配套稍逊于核心区)
二、规划:低密社区的人性化表达
教育配套
直线3km范围内有83个幼儿园;26个小学,如河北师范大学汇华学院附属小学、石家庄市龙腾小学、石家庄市建业小学、石家庄市塔谈小学、中华南大街小学等;10个中学,如石家庄市第十七中学、石家庄市第八中学、石家庄市第四十一中学东校区、石家庄市第三中学、裕华区第四十中学学区成员校等。
生活配套
楼盘周边医疗资源较为丰富,直线3km范围内有11个一级及以上医院。其中平安医院(石家庄仓丰路)距离楼盘1.5km,石家庄市第五医院距离楼盘1.3km,河北蕴育中西医结合医院距离楼盘2km,石家庄普济中西医结合医院距离楼盘1.9km,同仁堂中冀(石家庄)康复医院距离楼盘2.3km,为医疗需求提供了保障。
楼盘周边3km范围内有9个商场,商业配套成熟,完全可以满足日常购物需求。
楼盘周边生态环境优越,周边3km范围内有47个公园,距离最近的仅448m,非常方便日常休闲使用。

绿城云和月明由65号地(北地块)和67号地(南地块)组成,容积率仅2.0,是高铁片区唯一低于2.5的新盘。15栋10-17层小高层呈行列式布局,楼间距最大达70米,保证每户日照时长超5小时。
园林设计:延续绿城“桂月五景”理念,打造中央水景、全龄活动区、夜光跑道等功能空间。主入口65米宽的铝板+奢石门头,对标杭州高端项目标准。
建筑细节:外立面采用铝板+大面积玻璃,三玻两腔Low-E窗隔音性能提升30%,有效降低南二环主干道噪音影响。
评分:9.5/10(低密规划和绿城品质是核心优势,部分楼栋临路噪音需注意)
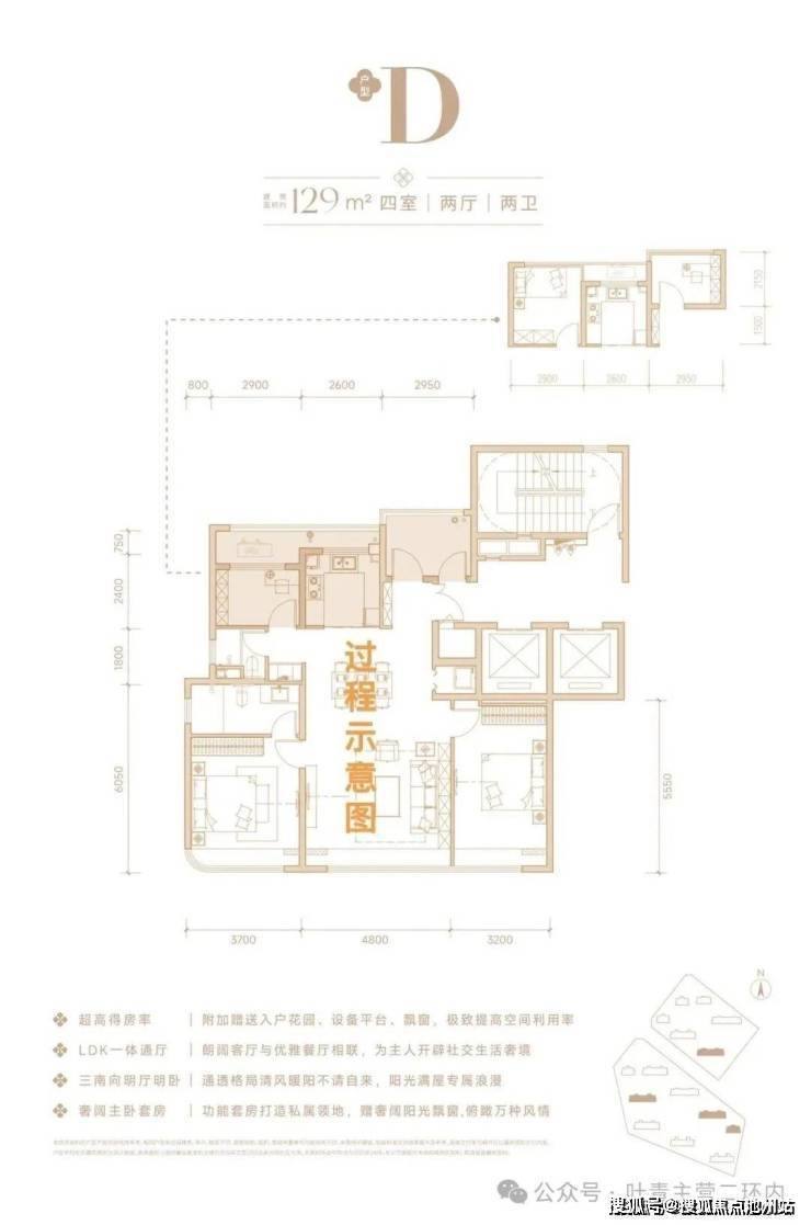
三、户型:新政下的空间革命
作为高铁片区首个“高得房率”项目,云和月明通过优化公摊(约18%)和赠送设备平台,实现建面103-139㎡户型的实际使用率超85%。
主力户型亮点:
- 建面125㎡四叶草户型:南北通透,四开间朝南,主卧套房含独立衣帽间和卫浴,北向书房可改造为儿童房或家政间。
- 建面139㎡宽幕四房:南向面宽13.8米,LDK一体化设计+10.8㎡阳台,三代同堂居住互不干扰。
评分:9/10(户型实用性领先片区竞品,赠送空间提升性价比)
✅石家庄城发投绿城·云和月明✅✔️
✅石家庄城发投绿城·云和月明-售楼处电话:400-678-8669转7777【售楼处已认证】✅✔️
✅石家庄城发投绿城·云和月明-开发商电话:400-678-8669转7777【开发商已认证】✅✔️
✅石家庄城发投绿城·云和月明-营销中心电话: 400-678-8669转7777【营销中心已认证】✅✔️
✅ 石家庄城发投绿城·云和月明-展示中心电话:400-678-8669转7777【展示中心已认证】✅✔️
✅来电可了解楼盘最新动态、房价、在售房源、交楼时间等信息!让你买的放心,住的舒服✅✔️
声明:本文由入驻焦点开放平台的作者撰写,除焦点官方账号外,观点仅代表作者本人,不代表焦点立场。
