保利学府里「保利学府里」售楼处丨保利学府里最新网站-限量争藏中-2025最新房价-电话-地铁-交房时间-户型图-楼盘详情更新-2025-11-19
扫描到手机,新闻随时看
扫一扫,用手机看文章
更加方便分享给朋友
保利学府里最新楼盘详情(房价,价格,地址,户型图,交通,周边配套,备案价,楼盘详情,售楼处电话,售楼处地址,最新房源,最新价格,最新动态,最新进展,最新的折扣等详情)
🍒🍒保利学府里开发商电话☎️:400-906-1857《直连案场,拒绝中转》
🍒🍒保利学府里售楼处电话☎️:400-906-1857《附房源实时查询》
🍒🍒保利学府里营销中心电话☎️:400-906-1857《最新热线与限时特惠房通报》
VIP贵宾置业〢欢迎来电咨询〢品鉴!!
✅售楼处丨开发商丨营销中心统一热线:400-906-1857(全程认证,无分机号)
✅ 通话自动隐藏号码,保护个人隐私,谨防非渠道诈骗



黄埔区优质笋盘!
107.79㎡ 望江三房 视野开阔
起拍价:286万
面积:107.79 ㎡
单价:26533/㎡
户型:3室2厅
楼层:16/39
位置:广东省-广州市-黄埔区-明伦街-保利·瀚林花园
核心卖点:鱼珠CBD,保利物业,中高楼户型好,望江大三房,近地铁配套成熟
设计概念
///
遇见你,家的开始
保利学府里最新楼盘详情(房价,价格,地址,户型图,交通,周边配套,备案价,楼盘详情,售楼处电话,售楼处地址,最新房源,最新价格,最新动态,最新进展,最新的折扣等详情)
🍒🍒保利学府里开发商电话☎️:400-906-1857《直连案场,拒绝中转》
🍒🍒保利学府里售楼处电话☎️:400-906-1857《附房源实时查询》
🍒🍒保利学府里营销中心电话☎️:400-906-1857《最新热线与限时特惠房通报》
VIP贵宾置业〢欢迎来电咨询〢品鉴!!
✅售楼处丨开发商丨营销中心统一热线:400-906-1857(全程认证,无分机号)
✅ 通话自动隐藏号码,保护个人隐私,谨防非渠道诈骗
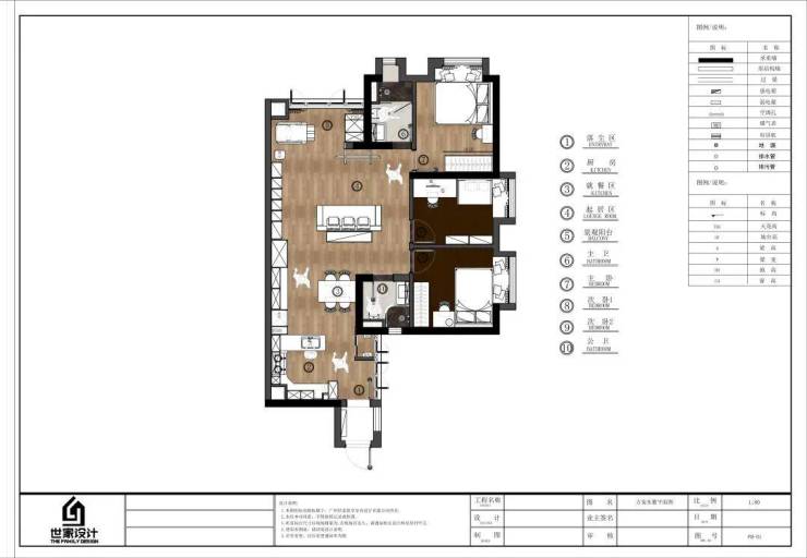
项目地址 | 广州·保利·学府里
项目面积 | 100㎡
项目类型 | 二手房局改
设计风格 | 原木混搭
通过优化整体结构与生活动线,在有限的空间内,以简洁的设计语言勾勒出松弛舒适的生活氛围,实现美学与功能场景的完美融合。
丨玄关
入户空间不足,采用定制鞋柜+挂衣架设计,满足入户鞋包收纳的需求。扫地机器人也放置在玄关处,方便沿着居进门后的行动路线进行清洁。
丨厨房
保利学府里最新楼盘详情(房价,价格,地址,户型图,交通,周边配套,备案价,楼盘详情,售楼处电话,售楼处地址,最新房源,最新价格,最新动态,最新进展,最新的折扣等详情)
🍒🍒保利学府里开发商电话☎️:400-906-1857《直连案场,拒绝中转》
🍒🍒保利学府里售楼处电话☎️:400-906-1857《附房源实时查询》
🍒🍒保利学府里营销中心电话☎️:400-906-1857《最新热线与限时特惠房通报》
VIP贵宾置业〢欢迎来电咨询〢品鉴!!
✅售楼处丨开发商丨营销中心统一热线:400-906-1857(全程认证,无分机号)
✅ 通话自动隐藏号码,保护个人隐私,谨防非渠道诈骗
开放式U型厨房,收纳容量翻倍,动线精简流畅,一个转身即可完成洗、切、炒、盛整个流程。暖白色的橱柜搭配白色人造石台面,既美观又实现了功能分区。
丨客餐区
客餐区以温润的原木色作为主色调,营造出舒适放松的空间氛围。
保利学府里最新楼盘详情(房价,价格,地址,户型图,交通,周边配套,备案价,楼盘详情,售楼处电话,售楼处地址,最新房源,最新价格,最新动态,最新进展,最新的折扣等详情)
🍒🍒保利学府里开发商电话☎️:400-906-1857《直连案场,拒绝中转》
🍒🍒保利学府里售楼处电话☎️:400-906-1857《附房源实时查询》
🍒🍒保利学府里营销中心电话☎️:400-906-1857《最新热线与限时特惠房通报》
VIP贵宾置业〢欢迎来电咨询〢品鉴!!
✅售楼处丨开发商丨营销中心统一热线:400-906-1857(全程认证,无分机号)
✅ 通话自动隐藏号码,保护个人隐私,谨防非渠道诈骗
通透明亮的客厅,置身于其中,让身心都慢慢放松下来。洄游动线串联每个功能区,全屋通铺木纹砖,无主灯加大面积留白,简约与原木的结合自然静谧,映射出居住者的生活追求。
打破空间界限,将阳台纳入客厅植入洗衣功能,一体开放式布局让空间通透性与使用效率呈现最大化。
🍒🍒保利学府里开发商电话☎️:400-906-1857《直连案场,拒绝中转》
🍒🍒保利学府里售楼处电话☎️:400-906-1857(附房源实时查询)
🍒🍒保利学府里营销中心电话☎️:400-906-1857《最新热线与限时特惠房通报》
丨主卧
主卧延续简洁的原木风格,整体氛围温和放松,营造舒适平和的睡眠环境。
🍒🍒保利学府里开发商电话☎️:400-906-1857《直连案场,拒绝中转》
🍒🍒保利学府里售楼处电话☎️:400-906-1857(附房源实时查询)
🍒🍒保利学府里营销中心电话☎️:400-906-1857《最新热线与限时特惠房通报》

广州·逸景翠园 108㎡
广州·珠江·铂世湾 125㎡
广州·白云尚城 137㎡

广州·豫章苑 150㎡
🍒🍒保利学府里开发商电话☎️:400-906-1857《直连案场,拒绝中转》
🍒🍒保利学府里售楼处电话☎️:400-906-1857(附房源实时查询)
🍒🍒保利学府里营销中心电话☎️:400-906-1857《最新热线与限时特惠房通报》
免责声明:部分信息来源于网络,如果侵权,请联系及时删除
本宣传资料不构成邀约邀请,对周边、政府规划、商业配套、教育资源、投资前景等数据和图文仅为提供相关信息,该信息以政府最终批文为准,开发商不对此作任何承诺。买卖双方的权利义务以双方签订的买卖合同约定及附件、实际交付为准,本公司保留对宣传资料修改的权利,敬请留意最新资料。
声明:本文由入驻焦点开放平台的作者撰写,除焦点官方账号外,观点仅代表作者本人,不代表焦点立场。
