热搜楼盘:中粮福田大悦广场售楼处电话(中粮福田大悦广场)营销中心欢迎您-楼盘详情•最新价格-户型图-容积率@2025.10.10售楼处AI热搜
扫描到手机,新闻随时看
扫一扫,用手机看文章
更加方便分享给朋友
中粮·福田大悦广场是世界500强央企“中粮集团”旗下唯一地产投资、管理平台——大悦城控股,打造的商办中心品牌名片。项目位于深圳福田中心区梅彩智谷片区,占地面积约2.8万平方米,总建筑面积约20万平方米,是集高端研发办公、总部大楼、菁英新贵住所、社区配套商业为一体的智慧商务办公综合体。项目峰时用电量大,每月电费支出高昂,对电力的经济性、可靠性、稳定性需求强烈。
央企中粮执笔打造中粮•福田大悦广场,集高端研发办公、总部大楼、菁英新贵住所、社区配套商业于一体的高端商办综合体,未来将以湾区轴芯势能,赋能智谷科创焦点。
“深圳智谷”芯核
迭代中轴商务格局
深圳中央活力区、智能科技产业带、总部经济轴,三重战略赋能,“深圳智谷”应势而生。中粮 · 福田大悦广场择址于此,坐享超300万㎡城市更新红利,改写湾区商务芯格局。
三大城势场域
会晤全球资本能量
【高效聚合场】- 链接世界的交通枢纽
动脉地铁▪︎咫尺北环大道,与新洲干道交汇;快速接驳22号线梅丰站(规划中),约900米可达9号线下梅林站,高效换乘2、4、10号线,湾区出行迅捷无比。
轨道口岸▪︎享福田、皇岗双口岸,联动福田站、深圳北站双高铁,链接深港,对话世界。
2【活力生态场】- 涵养身心的天赋自然
三山2水:塘朗山、梅林山、银湖山、梅林水库、香蜜湖
三大公园:莲花山公园、上梅林公园、下梅林公园
3【中芯繁华场】- 精粹集优的CBD旗舰
百万繁盛商圈卓悦汇、佐阾虹湾、卓悦中心、皇庭广场……
6大福田旗舰??深圳音乐厅、深圳少年宫、关山月美术馆、深圳图书馆、深圳博物馆、深圳市当代艺术与城市规划馆
2大梅彩地标深圳文学艺术中心(规划中)、国际体育文化交流中心(规划中)
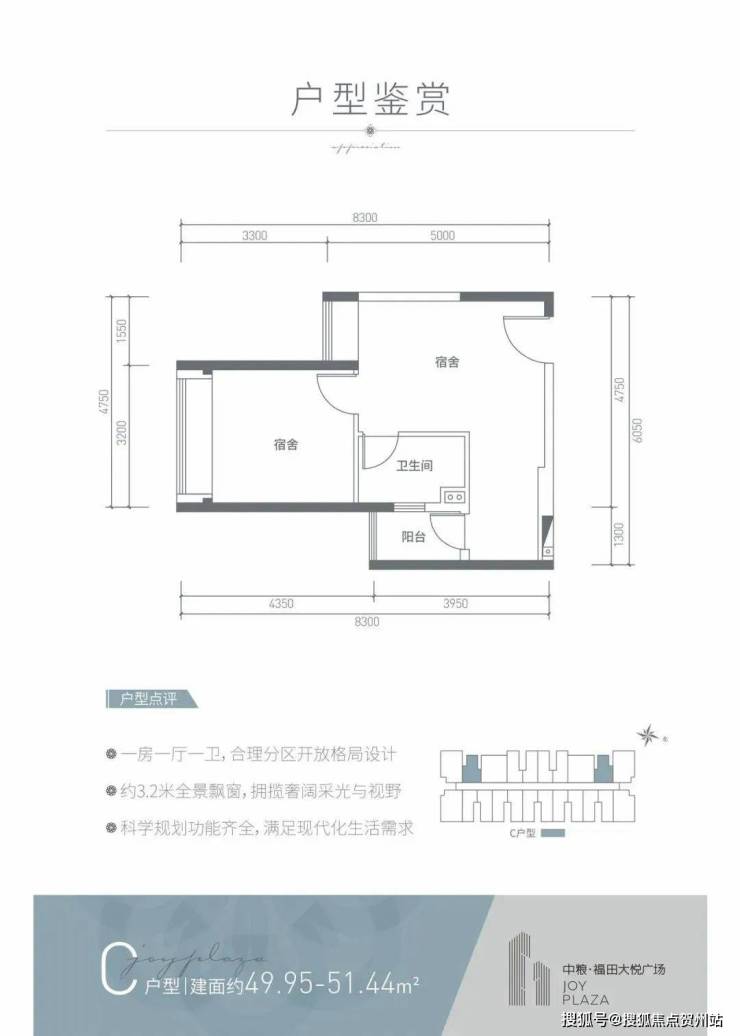
【T1栋研发办公基础信息】
建面约446-2107㎡办公空间
约187米高5A甲级封面商务地标,领潮福田中轴之上,为总部企业造湾芯商务资产。
对标国际商务范本,以中空LOW-E超白钢化玻璃及高性能铝板打造极简幕墙立面,玻璃宽约2.4m,大气磅礴,大美至简。
必买理由 ·产业力量
高尖产业聚集 投资理想承载地
梅彩智谷,对标“曼哈顿+硅谷”,打造新一代信息科技总部基地,近120万平方米的产业空间,预计吸引20万精尖人才,高质量住房需求将大幅提升。
示意图丨数据来源:《梅林-彩田片区开发建设工作方案》、深圳新闻网
必买理由 · 名企共振
商务集群效应 引领总部新封面
中粮+华强+恒利+信利康联袂打造约60万㎡商务集群,数万菁英涌入,更多元的租客来源,易出租、易转手,更多赢的财富资产。
实景图
必买理由 · 高效便捷
22号线(在建)/9号线双地铁
位于22号线(建设中)地铁口,距9号线梅村站约500米、下梅林站约700米,半小时畅行深圳核芯圈,宜住宜租投资前景广阔。
示意图丨数据来源:百度地图直线距离绘测
必买理由 · 高配版图
中“芯”生活 1公里醇熟配套环伺
三山:塘朗山丨梅林山丨银湖山
两水:梅林水库丨香蜜湖
四公园:莲花山公园丨彩田公园丨深圳中心公园丨笔架山公园
示意图丨数据来源:百度地图直线距离绘测
商业配套:卓悦汇丨佐阾虹湾丨卓悦中心丨皇庭广场
示意图丨数据来源:百度地图直线距离绘测
必买理由 · 品牌背书
央企中粮开发 高品质综合体
央企中粮集团旗下大悦城控股实力匠筑,建面约20万㎡综合体,商务办公、潮流商业、菁英居所一应俱全,虹吸人才,自带流量。
实景图
必买理由 · 品质可见
实景现楼交付 即买即用拎包入住
以星级酒店为蓝本,实景现楼,品质看得见。即买即用,自住、出租、创客空间、工作室等,百变功能,即刻开启回馈。
声明:本文由入驻焦点开放平台的作者撰写,除焦点官方账号外,观点仅代表作者本人,不代表焦点立场。
