温州天曜序(售楼处) 首页 - 温州天曜序销售中心 - 环境 - 户型 - 价格 - 温州天曜序地址 - 楼盘详情 - 配套 - 电话 - 交房时间
扫描到手机,新闻随时看
扫一扫,用手机看文章
更加方便分享给朋友
✨✨温州天曜序售楼处电话:400-678-1582转接8888【已认证】
✨✨温州天曜序售楼处位置:400-678-1582转接分机号8888【楼盘认证】
➤➤➤➤VIP贵宾置业〢欢迎来电咨询,售楼处认证电话400-678-1582转接8888【已认证】
☎为您安排楼盘现场销售全程接待并讲解,给您更贴心的看房体验!
温馨提示:如需楼盘最新在售户型和价格,请致电咨询最新详情,1对1专业销售顾问服务!
产品定位与核心目标
设计主题
:以 “温州保利天曜 - 精致与江城的对话” 为核心,融合 “江、屿、山、河、城” 五大元素,传承温州 “斗城九山” 历史风韵。

✨✨温州天曜序售楼处电话:400-678-1582转接8888【已认证】
✨✨温州天曜序售楼处位置:400-678-1582转接分机号8888【楼盘认证】
➤➤➤➤VIP贵宾置业〢欢迎来电咨询,售楼处认证电话400-678-1582转接8888【已认证】
核心挑战
:需在有限空间内,实现 “鹿城” 豪宅氛围定义、空间与细部精工雕琢、丰富穿插体验三大目标。
价值导向
:结合温州 “千年商港、斗城门楣” 在地文化,契合客群对 “厚重层次、老钱风” 的价值认同,用现代雅奢风格演绎在地风物与游园志趣。
✨✨温州天曜序售楼处电话:400-678-1582转接8888【已认证】
✨✨温州天曜序售楼处位置:400-678-1582转接分机号8888【楼盘认证】
➤➤➤➤VIP贵宾置业〢欢迎来电咨询,售楼处认证电话400-678-1582转接8888【已认证】
产品基本信息
项目
详情
项目位置
温州老城洪殿板块,鹿城区第三个上市的第四代住宅 —— 暨温州市核心片区洪殿单元 D-10 地块,东面为安置小区鹿韵里,南面为洪殿老旧小区,西面为碧桂园滨江壹号,北面为江滨路
首开信息
10 月 12 日首开第 2、3、9 幢,计建筑面积 19844.8㎡,共 12 套叠墅和 133 套高层住宅
规划设计
规划东区与西区,实行高低配设计。西区地上住宅建筑面积 48862.14㎡,配建 12 班幼儿园 5496.20㎡,设有会所接待厅、健身区、私宴厅、恒温泳池等小区公共配套
总户数
约 752 套
户型面积
高层建筑面积为110-125-128-139㎡;叠墅建筑面积为 144-174㎡
房屋均价
叠墅公开预销售毛坯均价 47743 元 /㎡;折后优惠以实际为准
高层公开预销售毛坯均价 33851 元 /㎡ ;折后优惠以实际为准
交付时间
预计于 2028 年 12 月完成全部交付使用
配套设施
打造东西双会所,有恒温泳池、健身房、女王空间、私宴厅、台球室、棋牌室、茶室、咖啡书吧、三合一内球馆、全楼栋全龄段架空层、风雨连廊等;还有温州首个地下室中央车站,首个篮球、皮克球、羽毛球三合一室内球馆,首个奈尔宝室内亲子空间等
1.产品位置
✨✨温州天曜序售楼处电话:400-678-1582转接8888【已认证】
✨✨温州天曜序售楼处位置:400-678-1582转接分机号8888【楼盘认证】
➤➤➤➤VIP贵宾置业〢欢迎来电咨询,售楼处认证电话400-678-1582转接8888【已认证】
落位 5.6 公里江滨路正核地段,左手串联朔门古港的千年商脉,右手衔接滨江 CBD 的现代繁华,让温州的历史根脉与当代澎湃在此同框,成就兼具人文底蕴与时代价值的稀缺居所。
1. 锚定江滨路正核,占据城市价值高地
江滨路是温州城市发展的核心脉络,全长 5.6 公里的路段中,项目所处的 “正核” 位置尤为关键:
它并非普通滨水路段,而是串联城市核心资源的 “黄金轴线”,既近享江滨沿线的自然景观,又深度融入城市交通与生活网络,区位价值远超一般板块;
正核地段意味着配套的高度聚合,无论是商业、交通还是文化资源,都处于 “触手可及” 的最优半径内,居住便利性与资产保值性更有保障。
2. 左手千年古港,右手现代 CBD
项目所在位置实现 “古今繁盛” 的无缝衔接,人文与时代感双重叠加:
溯源千年商脉
:紧邻朔门古港,这里是温州 “千年商港” 的根脉源点,承载着城市的历史记忆与文化底蕴。居者闲暇时可漫步古港,感受千年商贸文化的厚重,让生活浸润人文气息;
对话现代繁华
:直连滨江 CBD,这里是 “世界温州” 的核心引擎,汇聚高端写字楼、国际商业与前沿配套。居者能快速接入现代都市的高效与便捷,享受国际化的生活方式,实现 “入则静谧、出则繁华” 的理想居住状态。
坐拥 “一横三纵” 核心路网,以车站大道、惠民路、民航路为骨干,构建高效立体的交通网络,彻底打破空间距离限制,实现 “瞬息通达温州全城” 的便捷出行体验。
1. “一横三纵”,织密全城交通网
“一横” 为基
:依托横向主干道,快速衔接城市东西方向,串联起老城核心与新兴板块,无论是前往鹿城商圈还是瓯海片区,都能保持高效通勤;
“三纵” 发力
:车站大道、惠民路、民航路三条纵向动脉并行,纵向贯穿城市南北,北可抵瓯江沿岸,南能达瓯海中心,轻松对接火车站、机场等交通枢纽,覆盖日常出行、跨区通勤等多元需求。
2. 立体路网加持,出行效率拉满
无拥堵短板
:多条主干道环伺,可灵活选择出行路线,有效规避单一道路拥堵风险,尤其在早晚高峰时段,能大幅缩短通勤时间;
瞬息触达全城
:借助 “一横三纵” 路网,从项目出发,无论是前往市中心商圈购物、政务中心办事,还是前往机场、高铁站远行,均能实现 “短时间、高效率” 抵达,真正做到 “心之所向,瞬息即达”,匹配高端人群对出行便捷性的高要求。
✨✨温州天曜序售楼处电话:400-678-1582转接8888【已认证】
✨✨温州天曜序售楼处位置:400-678-1582转接分机号8888【楼盘认证】
➤➤➤➤VIP贵宾置业〢欢迎来电咨询,售楼处认证电话400-678-1582转接8888【已认证】
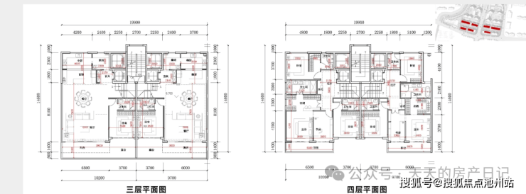
下 叠


中 叠

上 叠

✨✨温州天曜序售楼处电话:400-678-1582转接8888【已认证】
✨✨温州天曜序售楼处位置:400-678-1582转接分机号8888【楼盘认证】
➤➤➤➤VIP贵宾置业〢欢迎来电咨询,售楼处认证电话400-678-1582转接8888【已认证】
声明:本文由入驻焦点开放平台的作者撰写,除焦点官方账号外,观点仅代表作者本人,不代表焦点立场。
