楼市热搜焦点:石家庄城发投·云华璟樾售楼处电话→城发投·云华璟樾首页热搜24小时电话→最新房价→楼盘百科详情→营销中心最新发布@售楼处中心
扫描到手机,新闻随时看
扫一扫,用手机看文章
更加方便分享给朋友
✨✨城发投·云华璟樾售楼处电话:400-678-1582转接8888【已认证】
✨✨城发投·云华璟樾售楼处位置:400-678-1582转接分机号8888【楼盘认证】
➤➤➤➤VIP贵宾置业〢欢迎来电咨询,售楼处认证电话
☎为您安排楼盘现场销售全程接待并讲解,给您更贴心的看房体验!
温馨提示:如需楼盘最新在售户型和价格,请致电咨询最新详情,1对1专业销售顾问服务!
整体概述
城发投·云华璟樾楼盘位于石家庄长安胜利北大街以西、石德铁路以南、工人街以东,由石家庄市地产集团房地产开发有限公司精心打造,项目正持续推售中,最新参考价格为15000元/平方米(均价15000元/平米,详情咨询售楼处。),通过对项目价格、项目户型、交通配套、教育配套、生活配套、小区规划等维度进行分析,城发投·云华璟樾楼盘价值评分为9.3分。
项目价格
当前,城发投·云华璟樾价格为15000.00元/平方米(均价15000元/平米,详情咨询售楼处。),较周边三公里在售普通住宅项目均价低20.3%,城发投·云华璟樾项目价格具备一定优势。
项目户型
3居(5)
3室2厅2卫
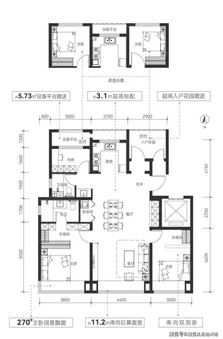
城发投·云华璟樾 平层户型·建面/110㎡
在售
南北通透
全明格局
客厅朝南
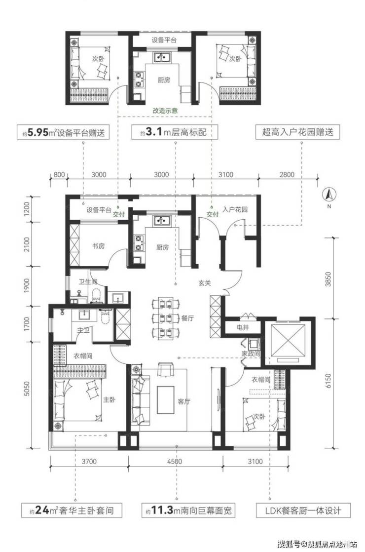
3室2厅2卫
城发投·云华璟樾 平层户型·建面/126㎡
在售
南北通透
全明格局
客厅朝南
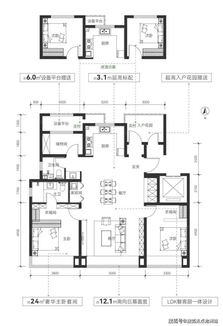
3室2厅2卫
城发投·云华璟樾 平层户型·建面/130㎡
待售
客厅朝南
南北通透
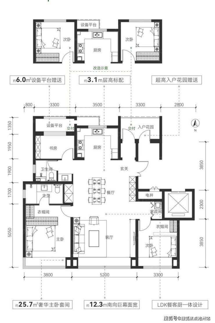
3室2厅2卫
城发投·云华璟樾 平层户型·建面/135㎡
待售
客厅朝南
南北通透
3室2厅2卫
城发投·云华璟樾 平层户型·建面/139㎡
待售
南北通透
客厅朝南
交通配套
周边直线3km范围内有9个地铁站(义堂、建和桥、长安公园、庄窠·铁道大学、柏林庄、市庄、平安大街、市二中、北国商城),轨道交通发达,距离最近的地铁站是义堂。
周边直线1km内有18个公交站,距离最近的七四二0站仅有299m,周边公共交通极为便捷。
公交站数量
18
地铁站数量
9
教育配套
直线3km范围内有106个幼儿园;39个小学,如石家庄市沿西街小学、石家庄市中华大街小学、石家庄市吴义小学、义堂新村小学、长征街小学光华校区等;14个中学,如石家庄市第二十三中学(北校区)、石家庄市第九中学、石家庄市第二十三中学、石家庄市第九中学(西院)、石家庄一中等。
幼儿园数量
106
小学数量
39
中学数量
14
注:上述学校相关信息仅为参考,不作为入学依据。具体入学政策可咨询您的专属经纪人
生活配套
楼盘周边医疗资源较为丰富,直线3km范围内有13个一级及以上医院。其中河北医科大学第四医院本部距离楼盘2.1km,河北医科大学第二医院总院距离楼盘2.1km,陆军军医大学士官学校附属医院距离楼盘1.9km,河北省胸科医院距离楼盘2.7km,石家庄明瀚医院距离楼盘2.6km,为医疗需求提供了保障。
楼盘周边3km范围内有37个商场,包括荣盛·城市广场、华林国际商业广场、北国商城益庄购物中心、新源蜂巢购物中心、荣鼎Zoomall等购物中心,商业配套成熟,完全可以满足日常购物需求。
楼盘周边生态环境优越,周边3km范围内有60个公园,距离最近的仅435m,非常方便日常休闲使用。
✨✨城发投·云华璟樾售楼处电话:400-678-1582转接8888【已认证】
✨✨城发投·云华璟樾售楼处位置:400-678-1582转接分机号8888【楼盘认证】
声明:本文由入驻焦点开放平台的作者撰写,除焦点官方账号外,观点仅代表作者本人,不代表焦点立场。
