最新——凤起潮鸣售楼处电话→苏州绿城·凤起潮鸣售楼中心电话→楼盘百科→绿城·凤起潮鸣首页网站→楼盘百科→首页网站→24小时热线电话
扫描到手机,新闻随时看
扫一扫,用手机看文章
更加方便分享给朋友
苏州绿城·凤起潮鸣
苏州绿城·凤起潮鸣营销中心电话400-681-7288接通后输入1111可转接销售
苏州绿城·凤起潮鸣售楼处电话400-681-7288接通后输入1111可转接销售
➤➤➤➤欢迎来电咨询,专业销售提供一对一服务,
涵盖房价特价、户型图、项目及房源介绍、周边配套等解答,VIP贵宾置业服务开启。
共42栋3-23F住宅产品

刚刚!园区湖西豪宅——绿城凤起潮鸣规划调整。
最新鸟瞰图如下

原先【业态】26栋合院(3F)+13栋洋房(6-11F)+3栋中高(17F)
变更为【业态】26栋合院(3F)+13栋洋房(6-11F)+2栋中高(17F)+1栋高层(23)
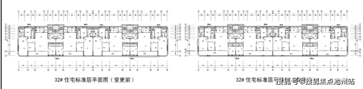
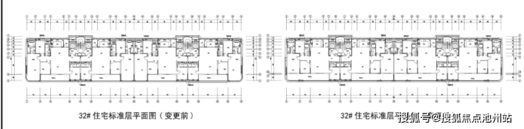
其中一幢17F小高变23F高层,部分楼幢8F洋房变9F,9F的洋房变10F。
例如32幢原9F的洋房变10F,架空层由之前的3.6米变为4.2米。除合院,前排洋房外,其他楼幢均带了架空层。

平面图变更如下:

25幢住宅一层平面图变更、立面变更如下:


项目预计预计8月中下旬开售楼处 9月初开盘!
【项目】占地约8.1万方/总建约22.6万方/容积率1.6
【产品】合院|地上建面约262-451㎡,洋房|建面约158-283㎡,中高、高层|建面约148-185㎡,625套。
原先平面图:

变更平面图:

绿城拥有桃花源系、玫瑰园系、庐系、凤起系等经典豪宅序列IP,以优质的自然资源、社会资源为择址标准,通过领先的“好房子”产品力,赋能板块形象与价值不断跃升。
凤起潮鸣,是绿城典型的凤起系作品,起源于杭州,自2016年凤起潮鸣一战封神后,便成了顶豪市场代表词,也是绿城TOP级豪宅产品线。
该产品系要求十分严格,唯有占据核心地段、目前主要项目包括杭州凤起潮鸣、宁波凤起潮鸣、义乌凤起潮鸣、台州凤起潮鸣等,目标客群为高净值人群,主打高端平层与大平层产品。
此次,绿城将目光锁定在金鸡湖这片承载着苏州至高理想的土地上。这背后,是绿城对苏州城市价值的深刻洞察,更是对苏州城市文化的尊重和致敬。
此次大师云集,绿城·苏州凤起潮鸣,由gad设计合伙人吴寿清,蓝颂总经理景观大师宋淑华,CCD创始人室内设计大师郑忠,LSD创始人兼艺术总监葛亚曦倾心合著,以大师之作著写潮鸣永恒。
基于三面环水的半岛地形,绿城·凤起潮鸣通过「引水入园」、「理水造园」、「湖水活园」三大规划理念,规划望湖、抱湖、揽湖、亲湖的“隐湖之境”整体格局,错落布局滨水合院、谧境洋房与瞰湖中高产品,打造一座圆融国际东方精神的当代美学场域。
苏州绿城·凤起潮鸣
苏州绿城·凤起潮鸣营销中心电话400-681-7288接通后输入1111可转接销售
苏州绿城·凤起潮鸣售楼处电话400-681-7288接通后输入1111可转接销售
➤➤➤➤欢迎来电咨询,专业销售提供一对一服务,
涵盖房价特价、户型图、项目及房源介绍、周边配套等解答,VIP贵宾置业服务开启。
声明:本文由入驻焦点开放平台的作者撰写,除焦点官方账号外,观点仅代表作者本人,不代表焦点立场。
